查看完整案例

收藏

下载

翻译
Architects:ERRE arquitectura
Area :12 m²
Year :2017
Photographs :Daniel Rueda
Manufacturers : Danpal, Junckers, Mondo, PAMESA CERAMICA, OrsalDanpal
Project Supervisor : Ismael Padilla
Facility Coordinator : Adolfo Ortiz
Engineering : Adypau
City : València
Country : Spain
L'Alqueria del Basket solves the need to create a space that shelters the academy of the Valencia Basket team. It was necessary a sports complex of great scope where new generations could play in the best conditions.
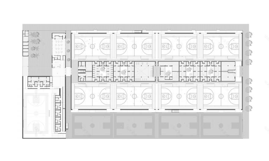
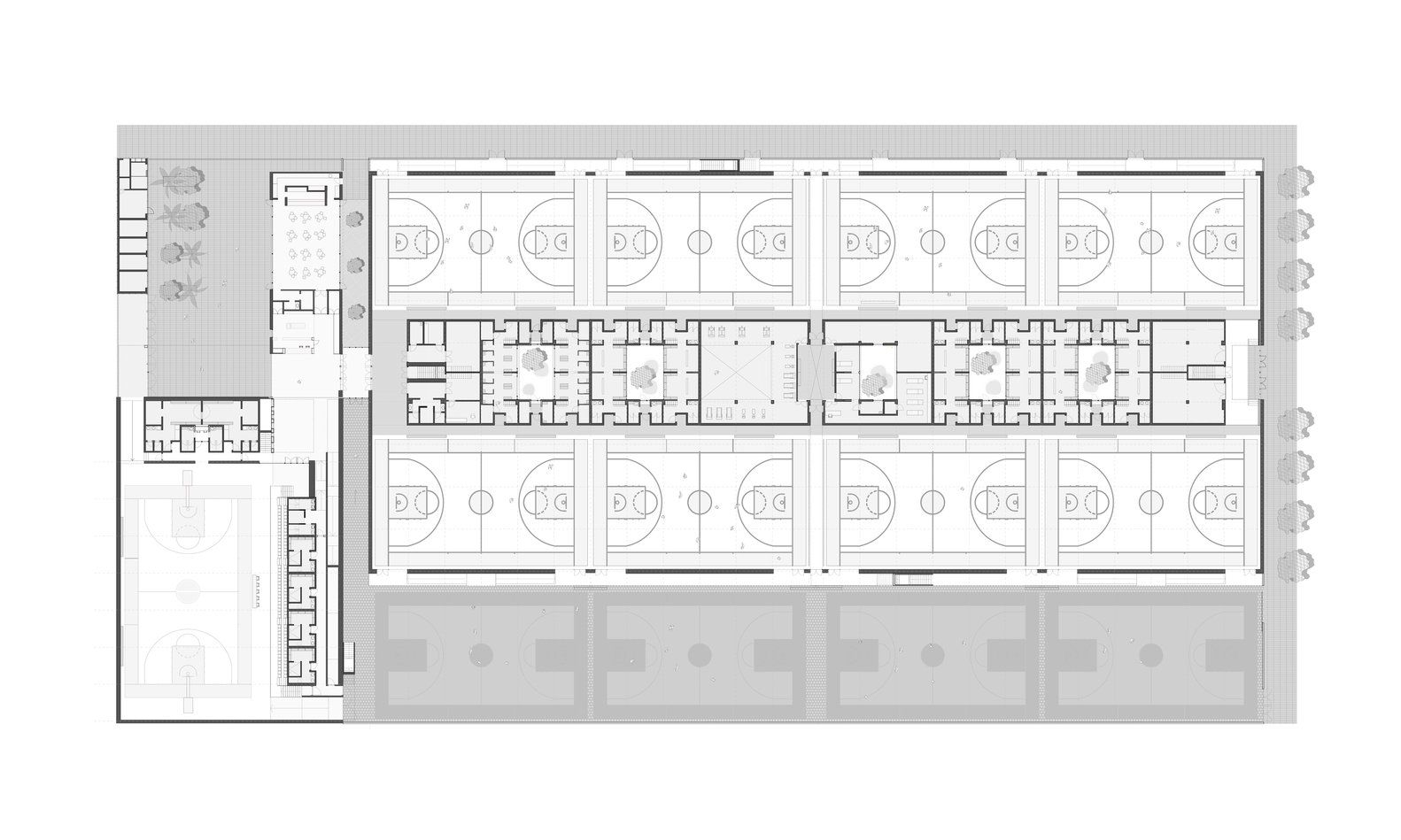
The project is located next to La Fuente de San Luís, the current stadium of the club, and its area is roughly 15,000 square meters. The program is divided into two volumes and is composed by a total of 13 courts: 9 indoor and 4 outdoor.
The first volume contains the main court where the main games and the training sessions take place. The second one contains 8 courts designed for training purposes. These courts can be used simultaneously and become independent by an automated curtains system.
The basketball courts are distributed around a central axis which has two levels: — The lower level houses services such as locker rooms for both teams on each court, gym, nursing area and rooms for physiotherapy.— The upper level is dedicated to teaching, but it also contains areas designed for family members who want to enjoy the game of their kids.
These spaces have natural lighting and crossed views thanks to a patios-succession design. During the project’s construction, the concepts of durability, comfort and lighting have been prioritised from the very beginning by using suitable materials such as concrete, steel, wood and polycarbonate.
After all, the main objective was to create a space where children have the best conditions to play and learn.
▼项目更多图片
客服
消息
收藏
下载
最近






















