查看完整案例

收藏

下载

翻译
Architects:derksen | windt architecten
Area :213 m²
Year :2019
Photographs :René de Wit
Lead Architects :Jeroen Derksen, David Windt
City : Capelle aan den IJssel
Country : The Netherlands
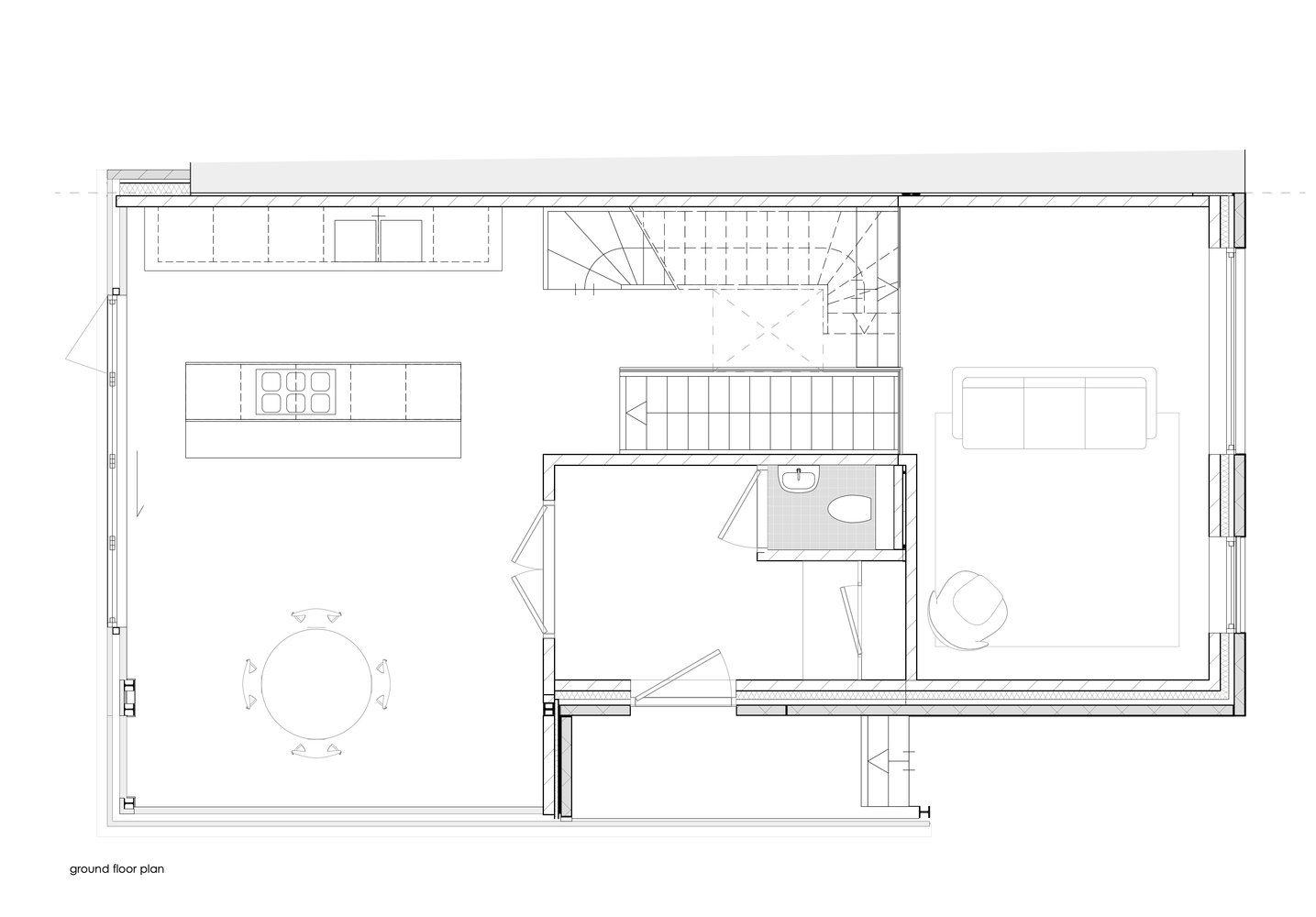
Surprising spaces and beautiful use of materials show that so much more can be done with a typical Dutch terraced house. For the new construction of this corner-house, derksen | windt architects made a design, which turns out to be a powerful sequence of ever-changing spaces. And it is realised in a very nice combination of robust and light materials. This has resulted in a house with a spatial quality that is normally only seen in luxury villas or museums.
The house is located in a residential area in Capelle aan den IJssel, surrounded by typical houses as they were so often built in the second half of the last century, and actually still are being realised in a variant thereof. Characteristic adjoining houses with two floors, an attic under a sloping tiled roof, and a brick facade.
derksen | windt architecten, however, continued to put the dot on the horizon: it had to become the most beautiful terraced house in the Netherlands, of a quality that generally cannot be achieved within this typology.
The house was designed from the experience of the spaces. These zones that change in height are connected as openly as possible. From kitchen to basement and sitting room, and from the entrance to the attic. The transitions between zones can be felt by height differences, positions of windows, view to the outside, and changing material. This has resulted in a house with staggered floors, wrapped in a robust façade material, all within the characteristic building envelope.
The facade is a beautifully detailed fair-faced concrete facade. A stone-like material was a requirement from the municipality, which normally results in brick. But here the result shows that more can be done. The love for Japanese and Swiss architecture (long cherished by the architects) was the inspiration for concrete facades which give a sense of texture, of refinement. This has also worked here, when one is at the house, one wants to touch the facade.
The house has a ground heat exchanger, integrated solar panels as a roof, all within a very well insulated shell. The weight of the facade has been compensated by innovative wooden floors. In this way, the clients have a robust and maintenance-free house for the future, which is also sustainable in all areas possible.
▼项目更多图片
客服
消息
收藏
下载
最近


























