查看完整案例

收藏

下载

翻译
Architects:Oficina Bravo
Area :56 m²
Year :2021
Photographs :Carlos Molina
Lead Architect :Sebastián Bravo
Design Team : Catalina Cárcamo, Sergio Reyes
Design : Simón Sepúlveda
Clients : Felix Café
City : Providencia
Country : Chile
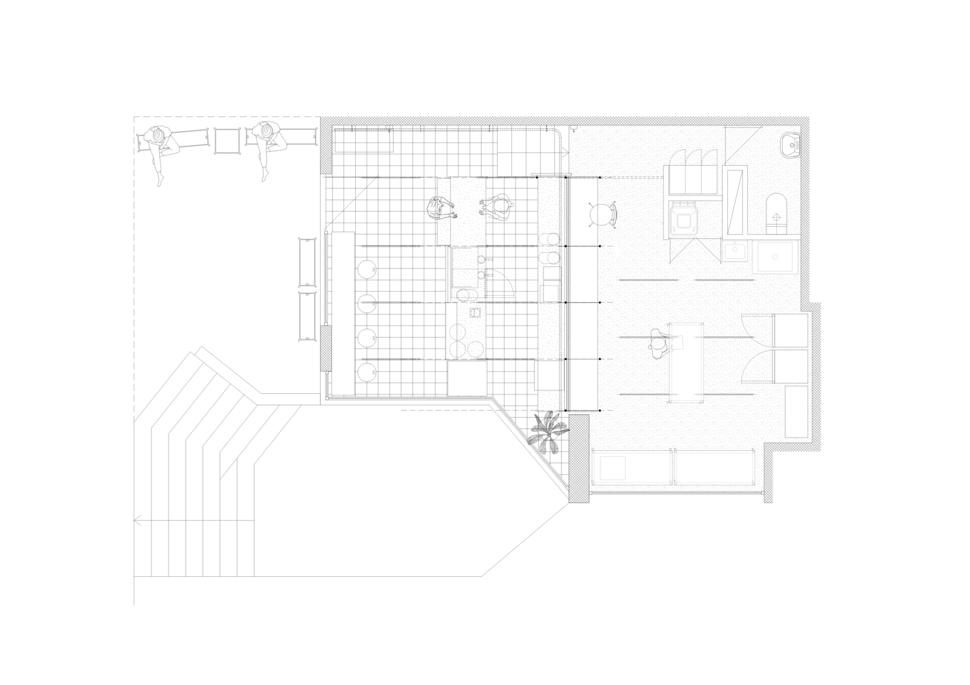
FELIX is a small specialty coffee shop in Providencia, Santiago. The shop is located in a staggered space that for the last 30 years had been used as a laundromat.
After emptying the space —exposing both levels of the shop— we projected a single piece of furniture, a semi-transparent metal shelf to organize the space. This shelf serves both as storage space, a visual separator between the public area and the kitchen, as well as the coffee bar. The counter, also in blue metal, has a detachable section that is designed to fit perfectly in the access door, enabling it to operate as a window shop when needed.
The consistent use of a limited number of materials including thin metal profiles painted in a striking cobalt blue, armored glass, and a custom-designed tile helps generate a simple yet memorable visual language.
▼项目更多图片
客服
消息
收藏
下载
最近




























