查看完整案例

收藏

下载

翻译
Architects:ARA Studio
Area :82 m²
Year :2020
Photographs :Tristan Salim, Hermawan Dasmanto, Veronica Paskalia, Hasina Zikriya H.
Lead Architect :Hermawan Dasmanto
Team Member : Moses Matthew Hendrawan
General Contractor : Trijaya Makmur Kontraktor
City : Kecamatan Dukuhpakis
Country : Indonesia
A “contradicting design phenomenon” against its typology. Located in a dense shophouse complex, southern part of Surabaya City, ARA Studio Office is only 2.3 x 12 meters in depth as its existing building which is an unusual size for a shophouse in Surabaya. It is situated a few blocks from the complex entrance, where visitors and workers have to enter a straight narrow alley in between two rows of 3 story – shophouses with few setbacks between buildings. Additionally, service equipment and building accessories such as outdoor air conditionings, signages and canopies protruding from their facade becomes a stereotype design typology amongst these shophouses to gain maximum indoor space while on the other hand interfering public space.
In order to avoid public interference, ARA Studio Office aims to disappear which is in contrast to the occurring phenomenon where other shophouse facade extends and are covered with colors, by using black texture paint to become mute and creating a setback on the building’s façade to provide more space for service items camouflaged by vegetation. Responding to the site’s context, this design acts as a pause in between both and opposite sides of the neighboring shophouse facades.
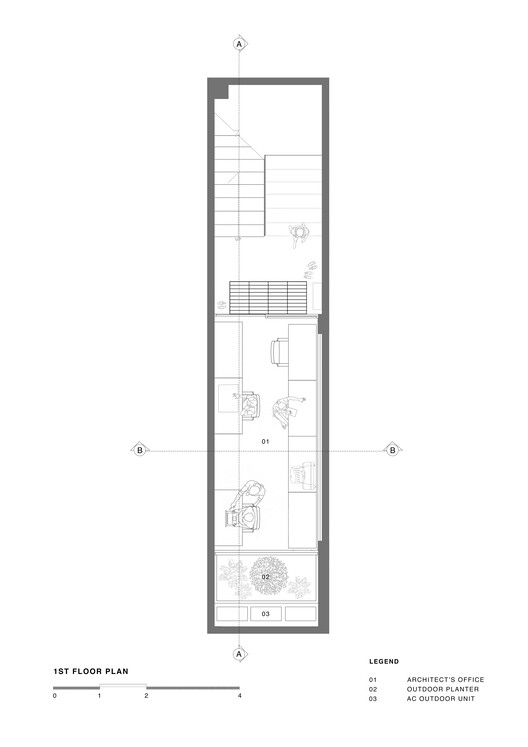
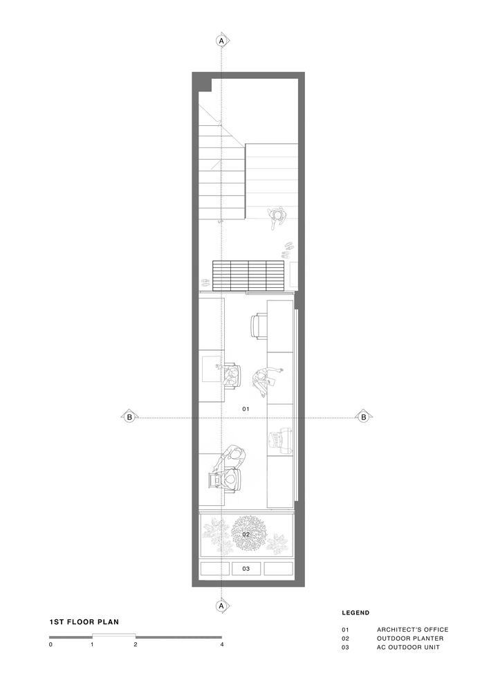
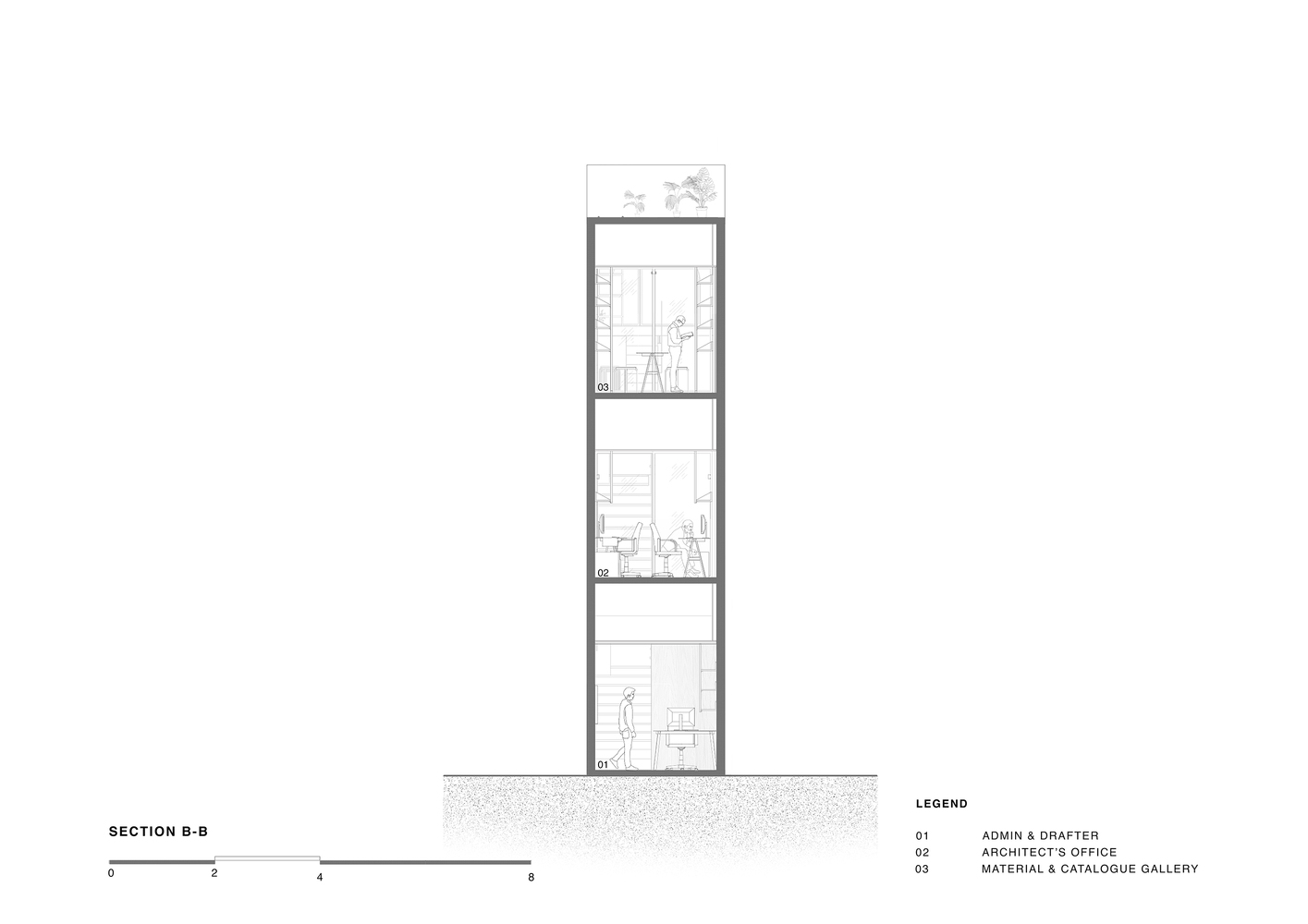
ARA Studio Office is meant to accommodate the needs of an architect studio so it is important to achieve enough space that responds to its functional needs despite its horizontal and vertical constraints. Its main program is to create activity pockets for their staffs and space for circulation without interfering with their working space. Therefore, the previous typical floor plan is transformed into an irregular zoning to fit its needs as a studio.
The entrance starts from the ground floor where its space is divided perpendicular from the alley’s axis to create a streamlined circulation on the left side and working space on the right side. Moving on to the second and third floor, the circulation is defined vertically by its continuous stairs at the backside and activity pockets located at the frontside facing the neighboring shophouse. Regardless of its limited space, voids with metal grating are placed as a transition between stair circulation and activity pockets to achieve interactive connection between each floor.
Along with its environmental needs to be a comfortable working space, cross ventilation becomes the key point to provide enough air flow. It is designed to take advantage of the existing situation which is located on one side of the shophouse alley where micro airflow can pass through the office building increasing its ecological performance. This response is attempted by giving large openings to the front of the building with layer of greeneries as a framed transitional view from the office to the neighboring shophouse. As well as openings on the backside of the office which has an open space area that is wide enough without any building obstructions, so that wind can pass through and provide cross ventilation throughout the building.
▼项目更多图片
客服
消息
收藏
下载
最近


































