查看完整案例

收藏

下载

翻译
Architects:Albor Arquitectos
Area :205 m²
Year :2020
Photographs :Laurian Ghinitoiu
Manufacturers : AutoDesk, Enscape, CARBONE S.A., Cemento PORTLAND P-250 y P-350, Enscape 3D, Mapegrout Rápido, Mortero Cola CERMIK PLUS, Mármoles Centro, Pacivante cementicio WIN PAN, Pinturas SPECTRUMAutoDesk
Lead Architects :Albor Arquitectos
Design Team : Carlos Manuel González Baute, Alain Rodríguez Sosa, Camilo José Cabrera Pérez, Merlyn González García Clientes
Engineering : Rafael Montaña Alonso
City : Havana
Country : Cuba
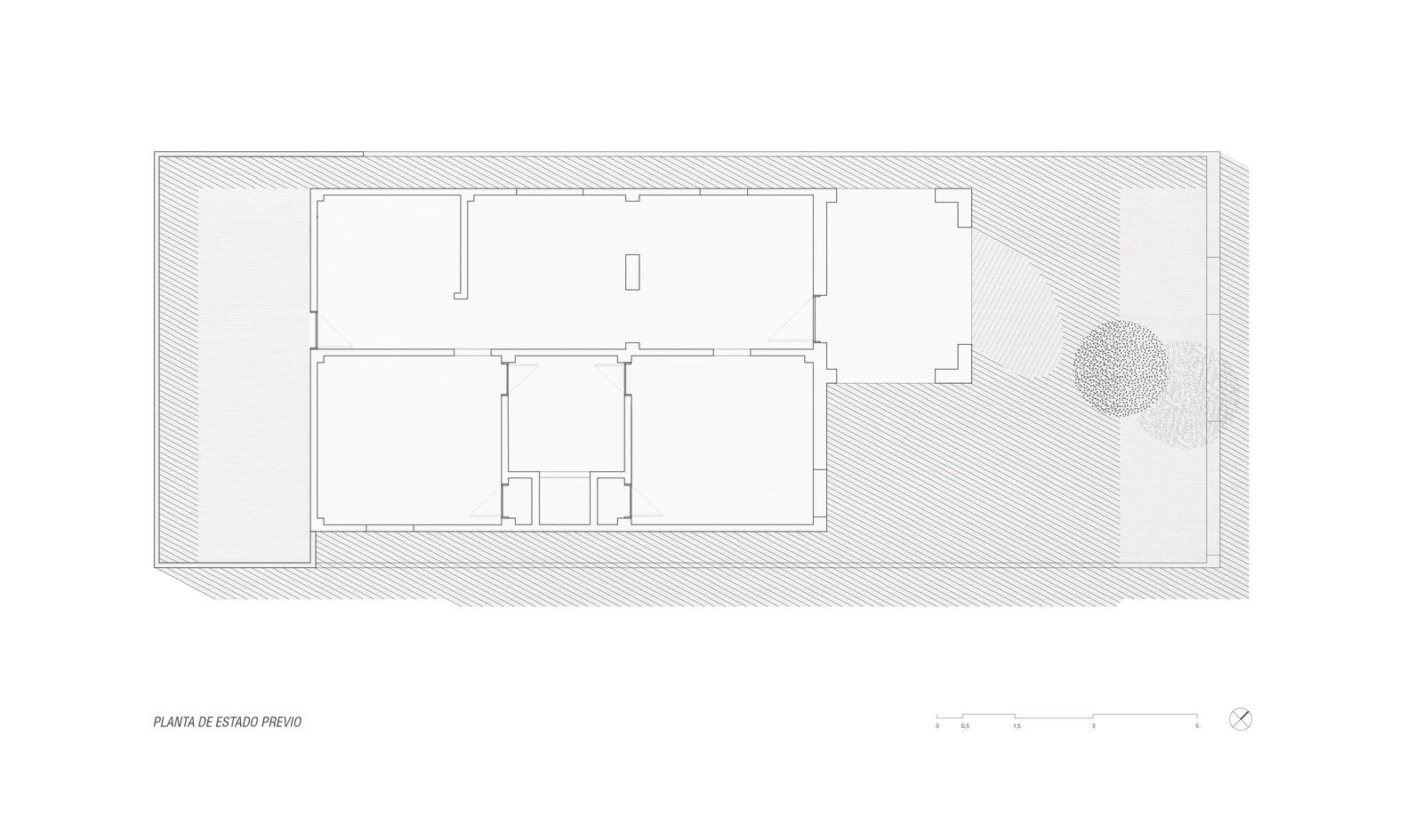
The existing house is a serialized character modest construction of isolated typology, conformed by one level, a porch made up of arches and a front garden. It is part of an urbanization built in the 1930s for workers of a military structure that formerly existed near the site.
In the project we interpret the use of the arch as an architectural element wielded, at that time, to relate the house with tradition. In the new work, the intention was to celebrate this gesture: the arch prevails and is amplified as a unifying element of architectural questions.
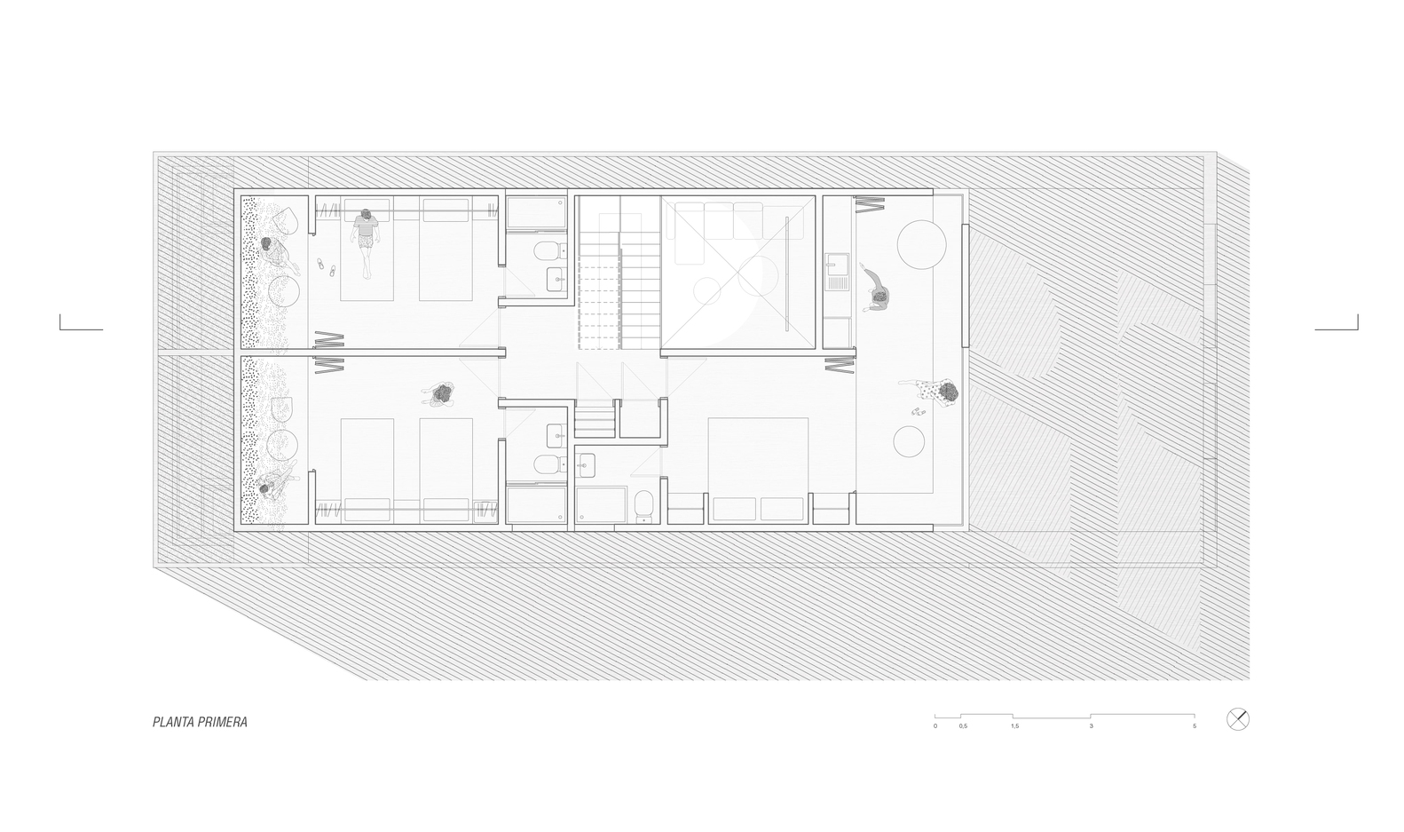
The program - a hostel with five rooms for rent, bar and terrace - determined in the first instance the re-functionalization of the existing distribution and the expansion into two upper levels. The distribution and design of the different spaces are the result of the use of the existent built structure, as well as the need to turn the spaces inside in order to increase privacy and environmental comfort.
A triple interior height, crowned by a skylight in the shape of a vertical vault, allows the entry of light and work as heat exchange, and also contain the circulation axis that connects the public areas of the living room and the garden on the ground floor with the terrace on the second level.
At the rear of the building, four rented rooms were located, both on the ground floor and on the first level so that, through an inverted staircase, they could open onto small interior courtyards. A fifth room, designed to be leased for longer terms, was located on the front line of the second level. In this room the relationship with the outside was the fundamental criterion, the space is defined by a covered terrace with a minimal kitchen and living area that are only separated from the bedroom by a folding closure. The volumes arranged on the façade provide privacy, sift the sunning and regulate the entry of rain into the kitchen area.
In the finishes, the volume is unified with the almost general use of the white color that, together with the glass used in carpentry and railings, and the polished gray marble tiles of the pavements, seeks the openness of the spaces through the exaltation of the natural light.
▼项目更多图片
客服
消息
收藏
下载
最近




















































