查看完整案例

收藏

下载

翻译
Architects:Paralelo Colectivo
Area :215 m²
Year :2020
Lead Architects :Rodrigo Ballina Benites, Valentin Ayala, Luciano Del Valle
City : La Plata
Country : Argentina
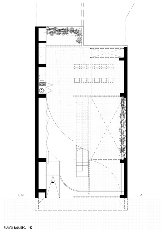
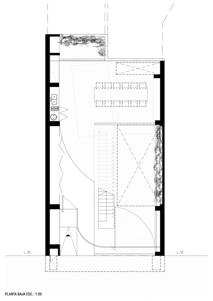
This project consisted of the development of a set of four apartments grouped together on a plot located on the edge of the historic center of the city of La Plata. The small piece of land measuring 8 meters wide by 17 meters deep, required a very synthetic and orderly approach to be able to meet the surface requirement of the client without losing a good spatiality and fluid continuity of the space, as well as natural lighting.
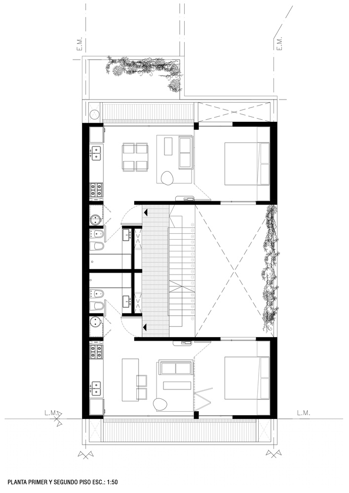
The project is made up of two blocks of two apartments each, one per floor. They are linked by a lightweight connecting element, a permeable metal structure that solves stairs and aerial walkways, and at the same time creates the accesses for each of the units.
The ground floor was conceived as a continuity of the public space, with the extension of the same sidewalk flooring inside the building, breaking with the formal barriers of the municipal line, even if only symbolically. At the same time, the semi-covered area generated by the second block of flats was thought of as a meeting place for neighbours with the idea of regenerating a neighbourhood environment. A space where club meetings and family reunions can be held, equipped with a grill and service areas to function as an outdoor barbecue area that the neighbours can use collectively and alternately. During the night the ground floor will house the cars of the complex.
The reinforced concrete structure of the building can be seen in all its material expression and is only accompanied by a permeable metal skin on the facade, hanging over the municipal line. Over time this frame can be invaded by the vegetation planted in the hanging pots on each of the balconies of the apartments.
The balconies both on the street and on the backside of the buildings were thought of as a frank extension of the interior space of the houses so that when the glass doors are open it becomes part of the total usable surface of the homes.
The concept of “Casas Boulevard” intends to materialize the idea, that a group of apartments, in addition to complying with the functional requirements of each unit, can also be understood as houses, in all the breadth of the definition.
▼项目更多图片
客服
消息
收藏
下载
最近





































