查看完整案例

收藏

下载

翻译
Architects:LR Arquitectura
Area :2669 ft²
Year :2020
Photographs :Horacio Virissimo
Manufacturers : Chaos Group, Adobe Systems Incorporated, Autodeks, CASTEL, Electrica Variedades, Ferrosa, Teka, Trimble Navigation, Vidriería Lázaro Cárdenas, Viveros DENMAYAChaos Group
Lead Architects :Carlos Teodoro Rodriguez-Laura, Eduardo Lassala Orozco
Design Team : Marisol Favela, Miriam Ortiz
Structure : TADE
City : Guadalajara
Country : Mexico
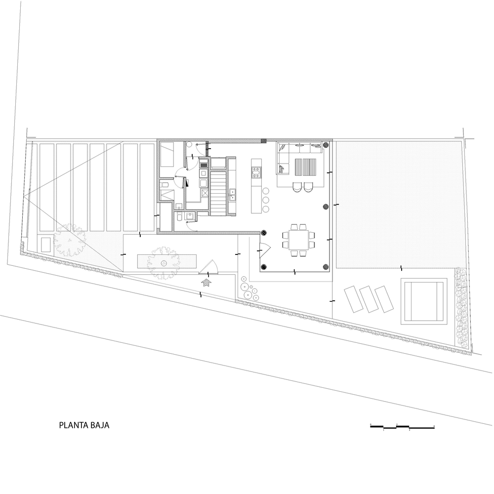
The project centers on providing suitable conditions so that, through flexible spaces, the needs of a family will be satisfied throughout its development.
Composed of two elements, the volumes are clearly presented. They display a constant duality through contrasts between their materials, textures, and proportions.
With a touch of lightness, the posterior element is suspended to reveal the social spaces and to allow them to extend into the garden. Private and service spaces are kept within the volumes.
In summary, the project is conceived as more than just two elements that contain needs. It strives to be a constant in the growth of its residents, to transcend in the different stages of life of the family members as a witness that remains unchanged through time.
▼项目更多图片
客服
消息
收藏
下载
最近
































