查看完整案例

收藏

下载

翻译
Architects:NOTAN OFFICE
Area :275 m²
Year :2020
Photographs :NICOLAS DELAROCHE
Manufacturers : AutoDesk, EQUITONE, Eternit, Adobe, Robert McNeel & Associates, ThermowoodAutoDesk
Lead Architects :NOTAN OFFICE
Engineering :Forme et structure
City : Bruselas
Country : Belgium
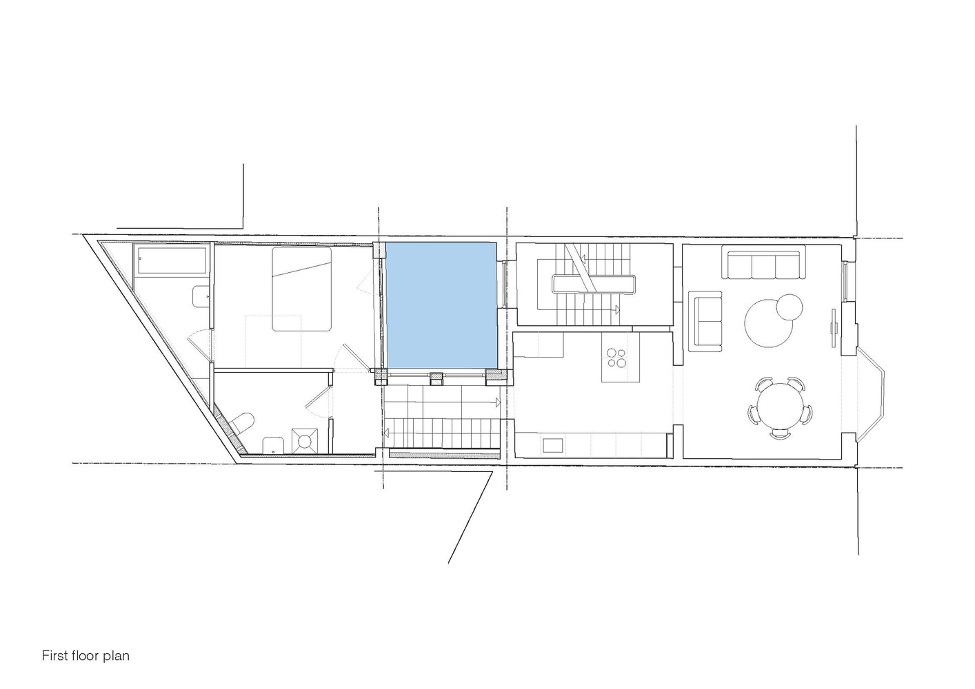
Urban transition and new orientations. The project adds two floors on an existing volume and reorganize entirely the plan with a creation of a patio, transforming an urban house into a two apartment construction, a duplex on the two first floors and a triplex above it.
Situated between a high and a low building, the project become an opportunity to link the two different scales of the street. The roof extension becomes a way to finish the street with creations of terraces and new orientations instead of a blind wall.
The transition between the different heights of the neighboring constructions is progressive.
▼项目更多图片
客服
消息
收藏
下载
最近

























