查看完整案例


收藏

下载

翻译
Architects:Siqueira + Azul Arquitetura
Area :425 m²
Year :2020
Photographs :André Nazareth
Lead Architect :Lia Siqueira + Felipe Siqueira
Engineering :Laer Engenharia
Landscape : Alexandra Marcondes Martins
City : Rio de Janeiro
Country : Brazil
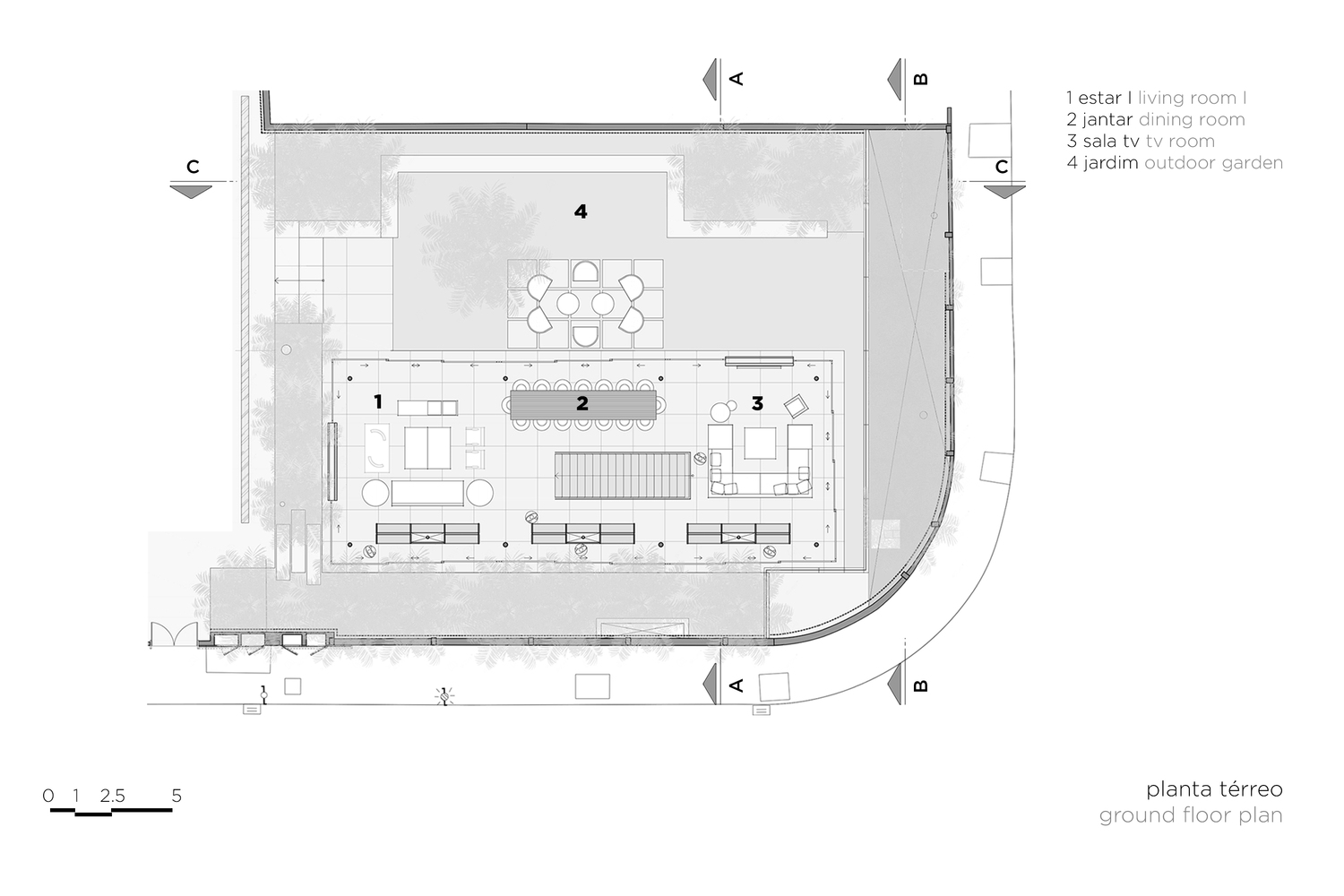
The concept of the annex derived from its purpose, to serve as an extension and house a large collection of books. The architecture design emerges through axes of pathways which are determined by the use of its space, in an expressive floating horizontal plane.
The use of a metallic grid structure composed of slender and lighter pieces creates a linear characteristic. The mobility offered by the sliding doors allows for the integration of the architecture with its surroundings, opening space for cross ventilation and natural lighting.
Beauty can be found in the fluidity between the interior and exterior. Nature and the environment do not serve strictly as a backdrop but surround the architectural design within. We sought to enhance the openings to the outside, the orientation towards the widest view, it allows for a perceptual appreciation of an iconic vision of Rio de Janeiro.
The presence of wood on the bookshelves seeks to enhance the horizontal planes and reinforce the library as a prominent element. The general use of compositions made by natural and organic materials aimed to inspire a welcoming environment.
▼项目更多图片
客服
消息
收藏
下载
最近



















