查看完整案例

收藏

下载

翻译
Architects:Yemail Arquitectura
Area :359 m²
Year :2019
Lead Architects :Antonio Yemail
Clients : Proyecto Binario
Engineering : Pedro González
Landscaping : Alejandra Herrera Molano, Andrés Felipe Pardo Fuquen
Collaborators : Antonio Yemail, Juan Camilo Anzola, Eduardo Sandoval
City : Bogotá
Country : Colombia
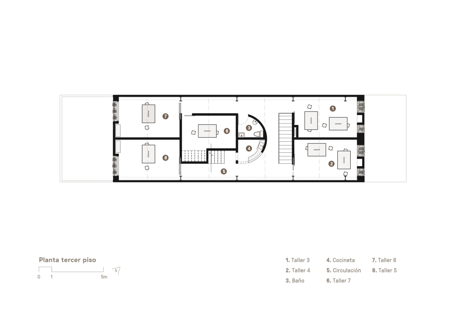
Binario is a cultural project that mixes workshop spaces, a store, terraces and a flexible space that, in the words of Alejandra Molano and Andrés Felipe Pardo, the minds behind the whole project, houses creative practices such as visual arts, design, music and theatre in small formats.
It is also a 4-level architectural exercise imagined and built by several hands and minds between 2018 and 2020, with a nopal grey metallic structure and clay masonry in various formats. In its origin, the question about the scale and the constructive tradition of the neighbourhood coexist, a tribute to the small buildings of the first Bogotana modernity, with the intention of harmoniously assembling different uses and the possibility of understanding the front garden as an active limit equipped for interaction with the street.
▼项目更多图片
客服
消息
收藏
下载
最近





























































