知末
知末
创作上传
VIP
收藏下载
登录 | 注册有礼

隐秘之境 · Le Hideout

2018/12/04 12:40:37
查看完整案例
微信扫一扫
收藏
下载
翻译
Architects:Ménard Dworkind architecture & design
Area :650 ft²
Year :2018
Lead Architects :David Dworkind, Guillaume Ménard, Stephane Gaulin-Brown
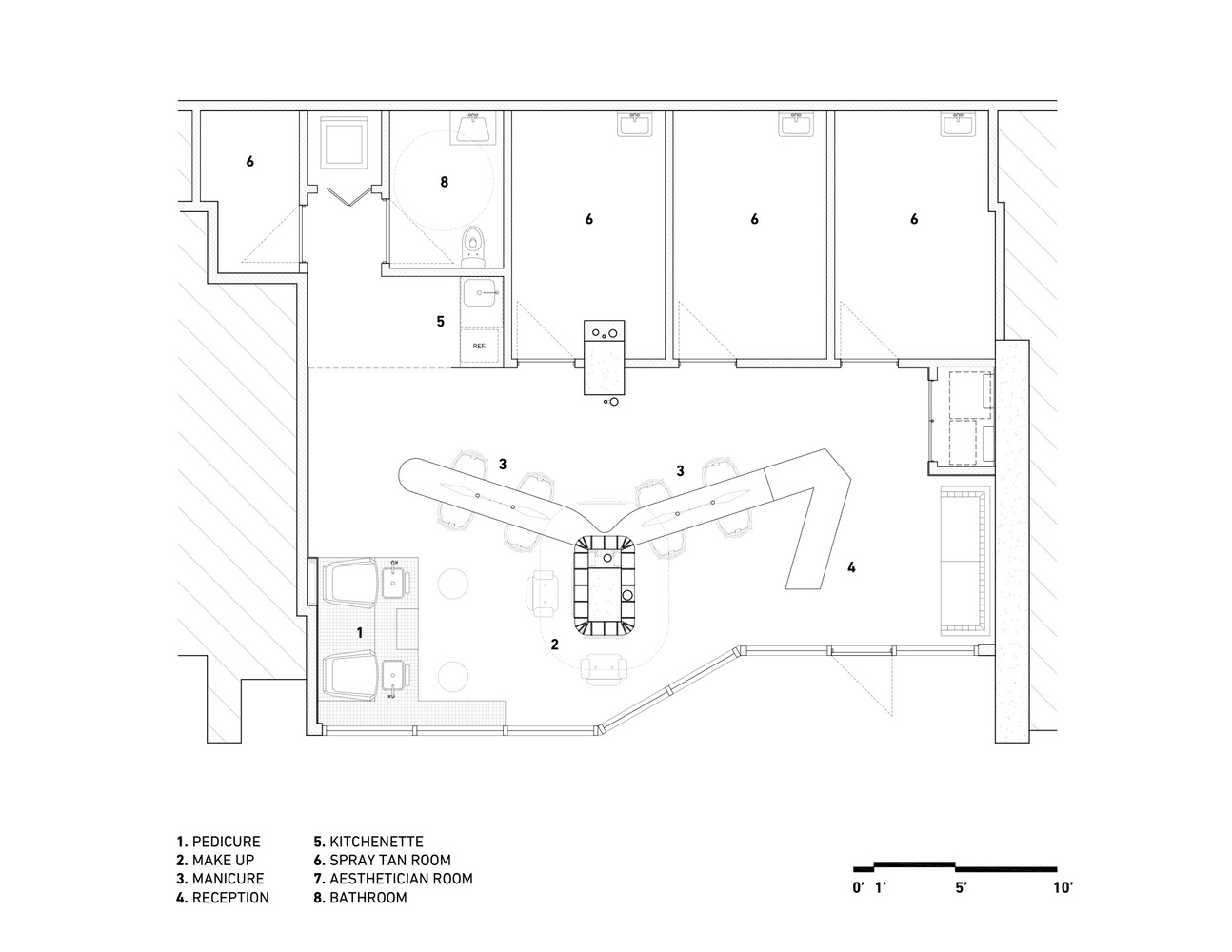
隐秘之境 · Le Hideout-4
▼项目更多图片
隐秘之境 · Le Hideout-6
隐秘之境 · Le Hideout-7
隐秘之境 · Le Hideout-8
隐秘之境 · Le Hideout-9
隐秘之境 · Le Hideout-10
隐秘之境 · Le Hideout-11
隐秘之境 · Le Hideout-12
隐秘之境 · Le Hideout-13
隐秘之境 · Le Hideout-14
隐秘之境 · Le Hideout-15
隐秘之境 · Le Hideout-16
隐秘之境 · Le Hideout-17
隐秘之境 · Le Hideout-18
隐秘之境 · Le Hideout-19
隐秘之境 · Le Hideout-20
隐秘之境 · Le Hideout-21
隐秘之境 · Le Hideout-22
南京喵熊网络科技有限公司 苏ICP备18050492号-4知末 © 2018—2020 . All photos and trademark graphics are copyrighted by their owners.增值电信业务经营许可证(ICP)苏B2-20201444苏公网安备 32011302321234号
客服
消息
收藏
下载
最近