查看完整案例

收藏

下载

翻译
Architects:REISARCHITETTURA
Area :4800 m²
Year :2018
Photographs :Alessandra Bello
Manufacturers : Fiandre, Hormann, Porcelaingres GmbH, ReckliFiandre
Lead Architects :Arch. Nicola Isetta, Arch. Paola Rebellato
Client : CE.VI.V Srl
City : Ponte Della Priula
Country : Italy
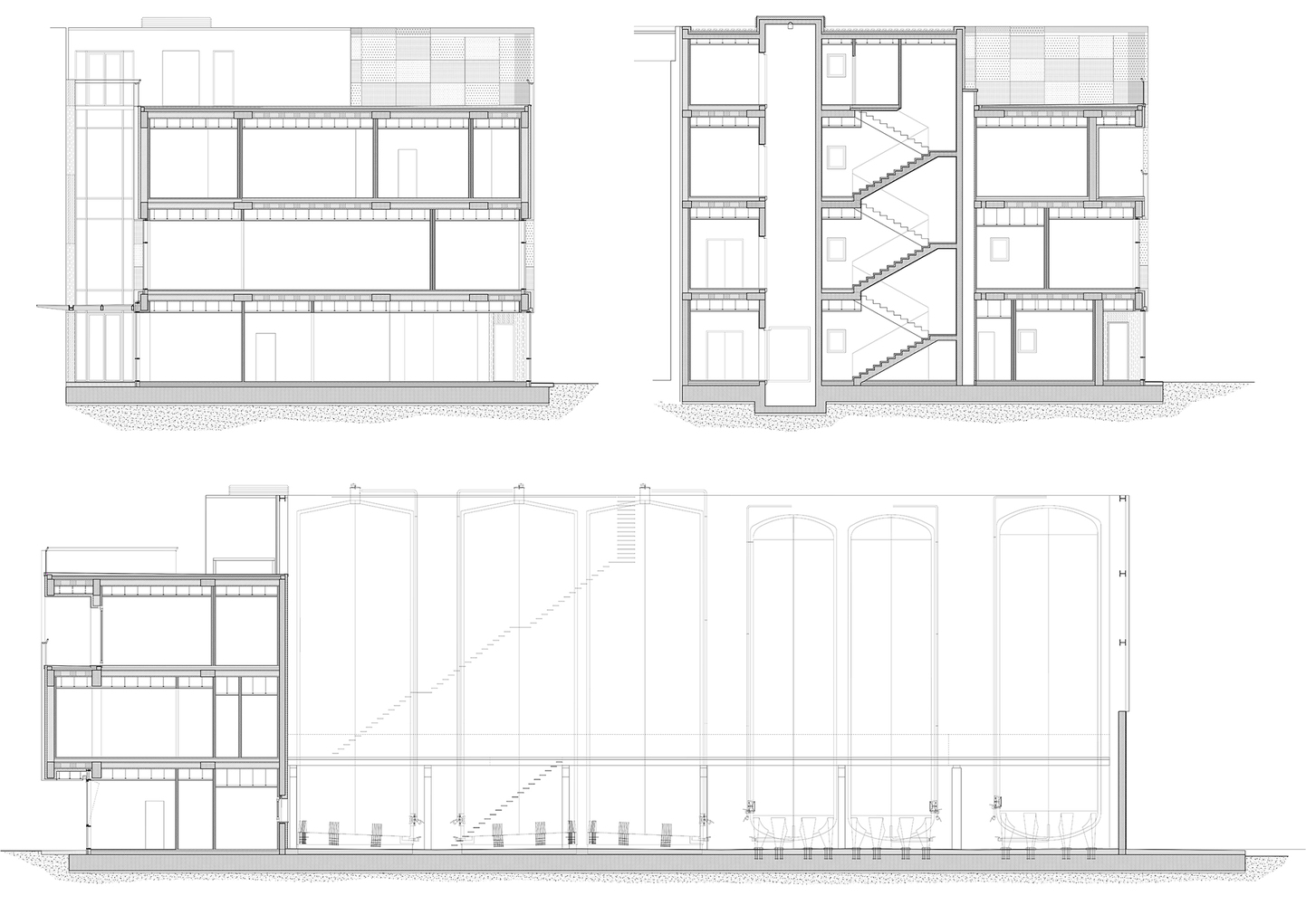
The project involves the enlargement of CEVIV winery in Susegana (Treviso) in two phases. The first provides a new office building and an open-air platform for 20 wine-tanks and autoclaves, the second another platform for 24 new tanks. The project main idea is to have the facade of the office's block and the enclosure of the platforms with the same cladding, in order to have a “volume” with a unique treatment.
The solution we chose is a cladding with green-colored perforated aluminum sheets to recall the logo of the firm. The perforated panels allow slight see-through playing with transparency and light. The holes of the perforated panels have different sizes making the facade vibrant and multi-hued. The base of the platforms is a solid concrete wall poured on foam matrix resulting in a striped texture like a cut stone in the cave. The office's block has three floors plus a terrace on the roof.
The glazed ground floor has a step back from the higher floors which are cantilever on south and west side. A glazed atrium with lift connects to the existing winery, from here you gain access to all the office's floors, to the existing warehouse and to the new wine-tanks platform. On the ground floor, there is a reception and a laboratory, on the first floor an open-space office and a closed master-office, while on the second floor there is a small tasting room and an apartment for the keeper.
▼项目更多图片
客服
消息
收藏
下载
最近





























