查看完整案例


收藏

下载

翻译
Architects:W&R GROUP
Area :1338 m²
Year :2016
Photographs :Yijie Hu
Structural Design : Xiawei Du, Wei Chen
Electricity Design : Hui Liu, Mengqian Liu
Construction Design : Jingtao Jia, Tian Ye
Ventilation Design : Haixiao Sun, Jin Yin
Water Design : Gang Yu, Wei Hu
Type : Culture Building,Activitiy Center
Architect In Charge : Jinwei Xu
Project Team : Micron Architecture Office
Project Pre Design Team : Zhao Lifeng, Cao Xu, Wang Hongjie
City : Yangpu Qu
Country : China
The project is located in Beiyuan Life Park, Fudan University Handan Campus. The original building is a two-story student shower room. South of it is the Yangpu District. East side the nursing home. The northwest is the student restaurant. West of the student apartments, the northeast side of the park close to the garbage dump.
With the improvement of sanitation facilities in the student residences in the park, the bathroom is currently out of use. In order to be able to recycle waste building, the school decided to renovate the building into a student communication center.
For privacy reasons, the building exterior is illuminated and ventilated with only a few lateral high-windows. The entire building is like an enclosed and lonely box. Sunlight, rain, trees and passersby's eyes are cut off by the solid wall with no communication.
The surrounding environment seems to have ignored its existence, especially as its function slowly fades. When we are going to open the façade where it has never been opened, the first thing to think about when a dialogue is suddenly initiated in an otherwise closed relationship is how to establish a new relationship with the surrounding environment. In any case, we hope that through a medium, we can ease the relationship between such a sudden change.
We incorporated the open space between the south side and the nursing home, the open space between the east side and the refuse collection site, and the open space between the west and the road into our design area, setting the wall as the boundary and forming a filter between walls and indoor buildings, which not only extends the indoor space to the outdoors, but also reduces the influence of the external environment on the privacy of the interiors.
We hope to bring as much as possible courtyard views and greens to the interior, so we used a lot of floor-to-ceiling windows on the first floor of the façade. The height of the second floor has no protection of the wall, thus the window-opening cannot seem to be so willful. It is necessary to meet the indoor lighting, ventilation and landscape requirements, but also reduce the impact on the external environment.
The level of the scattered, the size of the hole, as the main window form the second floor of the outer walls, like a frame, to capture the outdoor landscape, standing in the light and shadow of the room, like being in a collection landscape Art Museum in general. As the night approaches, the room is filled with warm light, revealing from the scattered window, the entire building was like magnificent like a light container. The fuzzy boundaries of the indoor and outdoor integration, subtle and harmonious, are her new relationship with the environment.
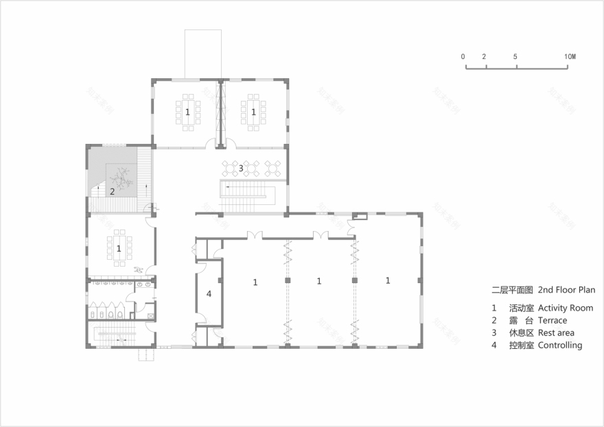
The new function is mainly the unitized activity room. We hope to leave as much lighting as possible to the activity room, and as much deep interior space as possible for the traffic space. The two main floors at the main entrance of the north side of the original building did not improve the interior space and lighting much. Instead, they are very incompatible with this small volume of building space and the stairway has a better lighting.
So we moved the stairs to the south in the middle of the building and designed a skylight ceiling to improve the lighting in the room. At the same time the hall pick-empty two-storied floor, set into the activity room. Due to the increase in floor space and the increase in floor space, we were able to offset this area by adding a two-story patio and an outdoor staircase to the two-story rooftop terrace was added to the patio.
This new spatial relationship has basically taken shape. A main traffic lane connects each room space in series and leads to a rooftop terrace, where each room can enjoy day lighting, natural ventilation, and outdoor views.
▼项目更多图片
客服
消息
收藏
下载
最近




























































