查看完整案例


收藏

下载

翻译
Architects:Architectural Design & Research Institute of Scut
Year :2016
Photographs :Li Yao, Changheng Zhang
Planning Team : Yudan Pan, Mai Zhirui, Sun Yan, Weili Qiu, Linxi Liu, Yuanken Wu, Zhiyong Zhang, Ruowen Liao
Architect Of Teaching Area : Yudan Pan, Weili Qiu, Guannan Huan, Linxi Liu, Fei Li, Zhong Chen, Menghao Luo, Riming Zhong
Architect Of Living Area : Zhirui Mai, Yan Sun, Kaixin LiLinxin Liu, Menghao Luo
Architect Of Sport Area : Zhirui Mai, Changheng Zhang, Jingshao Liang、Jianquan Zeng, Zhiyong Zhang, Yuanken Wu, Ling Wu
Landscape Design : Zhingsheng Guo, Zhong Yan, Siyun Chen, Caixia Feng
Structural Engineer : Xiao Jie, Zhijian Huang, Xuehong Yu, Shengli Zhong, Zhigang Pan, Xiaofeng Chen, Yang Zheng
Mep Engineer : Qihai Wang, Pujie Wang, Wangyang Geng, Weibing Chen
Interior Design : Yan Zheng, Jingshao Liang, Junyu Liang, Jun Ma, Fei Li, Zhong Chen
Design Principals : Jingtang He, Weihong Guo
City : Taizhou
Country : China
Context Taizhou has housed numerous schools and academies since ancient times. The renowned Anding Academy was built right on the old campus of Taizhou High School, which is also a century-old prestigious school in China stemmed from Taizhou Academy founded on the site where Hu Yuan, a famous educator in Song dynasty, lectured his students. There is still a hall on the old campus in memory of Hu Yuan, further enhancing the cultural atmosphere of the school.
Based on the study of the culture and history of Taizhou and Taizhou High School, the design intends to bring back the refreshing and elegant study atmosphere referencing the spaces of traditional “schools and academies” in Taizhou and showcase the profound cultural heritage and regional characteristics of the School on the new campus. In the meantime, the campus planning also employ new design ideas and modern campus features based on the tradition and context of the School to reappear the charm of Anding Academy.
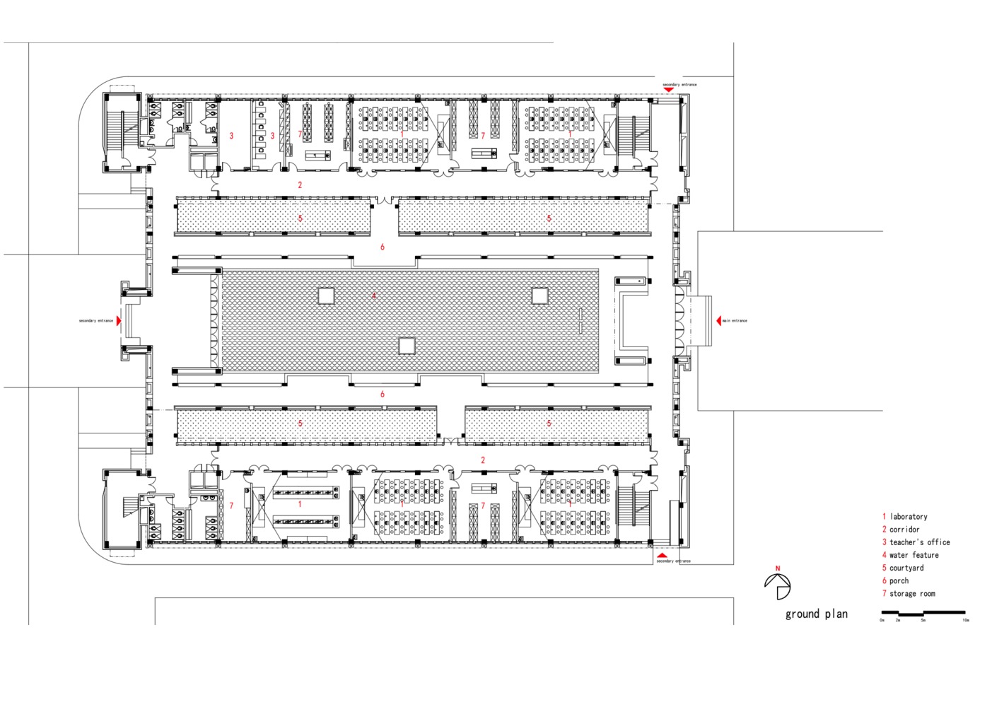
Tasteful yards The design takes the yards of traditional schools and academies in Taizhou as the basic elements for space structure organization and employs a south-north academic axis and an east-west cultural axis to define the overall spatial layout of the new campus. Each space is designed with related cultural visual focus and cultural theme. By incorporating well-arranged garden spaces into main academy spaces of rituality on the main axis, the design creates well-proportioned spaces placed one inside another, conveying the spirit of valuing education and advocating Confucianism and Taoism. By planning the teaching area and office area as a whole, a number of yards themed on grace, rites, Confucianism, reason, respect of masters, traditional Chinese culture, and gratitude for the source of benefit are created, with profound hierarchies and big depth. These interconnected yards are interspersed with various natural elements and at some positions pavilions and terraces to foster a tranquil and graceful ambience. The design also proposes an ecological green axis running through the campus and water yards to represent the all-embracing and unceasing humanistic spirit of Taizhou High School.
Water CharmTaizhou is famous for water culture, and water is regarded as the soul in the design of Taizhou High School’s new campus. In the whole campus three water features are provided, namely the Siyuan Yard, Chinese Classics Quadrangle, and Ginkgo Lake. The three water features are different in style but same in atmosphere – a strong cultural atmosphere. The waterscape of Siyuan Yard is regular and modern with a quiet atmosphere, creating an environment for meditation; the waterscape of Chinese Classics Quadrangle is traditional and exquisite, creating an environment of gracefulness; the waterscape of Ginkgo Lake is generous, creating an environment of deepness. The tranquil and restraining space of water settles the atmosphere and tone of the whole campus. Reflections are created by water, which makes the campus open and vivid. Water is the origin of life. The space is spiritual because of the introduction of water.
ShapingThe buildings are upright, elegant, simple and restraining, and the details of the buildings are exquisite and beautiful. The design of the buildings is rational and neat. The comparison between the simple shapes and the details reflects the magnificence of the buildings. From fenestration in the facades to the texture of the details, consistent architectural language and motif are used.
The traditional cultural elements, including window papercuts and seal characters, are reconstructed to highlight the buildings, injecting cultural spirit and traditional implications into the building. The main façade materials are mainly the grey-toned building materials like stones and tiles which are set off by the partially used wood and other materials of warm tones. The architectural hue is slate grey, creating a quiet and elegant atmosphere of learning; the wooden ornaments render the rustic breath of books. The building form tries to present the traditional implication through modern techniques. The exquisite and elegant style represents an organic combination of modernity and tradition, as well as the culture and modernity of the campus.
▼项目更多图片
客服
消息
收藏
下载
最近










































