查看完整案例

收藏

下载

翻译
Architects:Parramon + Tahull Arquitectes
Area :120 m²
Year :2021
Photographs :Judith Casas Sayós
Manufacturers : JUNG, Irsap, Aleluia Cerâmicas, FARO Barcelona, FURNIPART, Fabresa, PINAR MIRÓ, Roca, Schluter, WISAPLYWOODJUNG
Construction : Fórneas Guida SL
City : Barcelona
Country : Spain
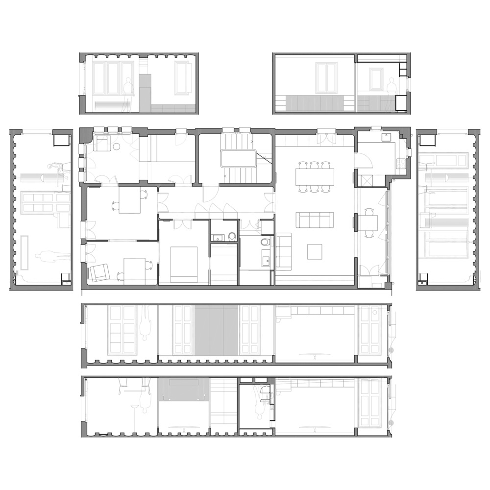
We sought to create a calm and sober atmosphere, with natural materials, keeping a low building budget. As the family program of the flat is just for two persons we could provide open spaces, avoiding rigidity, and bring natural light everywhere.
The apartment had been previously reformed with few criteria, so first we had to remove the previous layers in order to discover the original elements (such as floors, and ceilings) to recover the original atmosphere. The living room opens to the gallery space, previously closed and partially occupied by the bathroom. Spaces are expanded and permeabilized, generating a greater visual amplitude. Most of the original hydraulic pavements have been preserved and recovered, which take center stage due to their intense colors, in contrast to the white of the walls and ceilings. Where it has not been possible, white marble and porcelain stoneware are used.
All new elements are exposed wood (birch plywood for the custom furniture and pine wood for the windows). On the other hand, the existing woodwork (interior and exterior) has been painted white, allowing a clear view of the new and the pre-existing. All materials are natural and sustainable (marble, mosaic, wood). No artificial air conditioning is used, only cross ventilation and ceiling fans.
▼项目更多图片
客服
消息
收藏
下载
最近



























