查看完整案例

收藏

下载

翻译
Architects:Bokey Grant
Area :86 m²
Year :2020
Photographs :Clinton Weaver
City : Sydney
Country : Australia
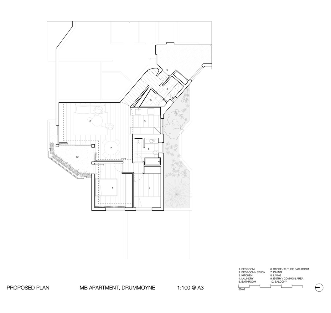
MB apartment within the 1960’s blonde brick complex is named after clients Mary and Ben. It belonged to their grandmother who had survived WW2 Germany and relocated to Australia, purchasing this unit as an investment property which was rented and unmaintained for 35 years. The clients inherited it and wanted to modify it into their first home.
The new work aspired to transform the existing logic of the apartment with a series of small surgical interventions completely reimagining spatial experience on a tight budget. The original unit had a quality of feeling like space carved out mass, the brutal yellow brick form. The new interventions are an extension of this idea, further carving and honing the space giving them solidity and a calm sense of enclosure. The period of the existing complex is drawn from, the textured ceiling is continued down to a datum bulkhead celebrating the threshold between spaces. The selection of materials like the terrazzo and brown marble & blackout timber throughout.
The existing two-bedroom plan suffered from an oversized south-facing kitchen with no connection to the main living space or its harbour views. It had no sense of arrival at its entry and the perimeter ceilings had structural bulkheads from the apartment above which confused the logic of the spaces.
While the interventions are small, the impact is transformative for the 86m2 space. This additional carving of space was more efficient and also resulted in the addition of a future second bathroom which in the meantime is used for storage of the clients' huge amount of musical instrument storage. We opened up a small opening upon entry to create a key drop, light & view shaft further into and through the apartment to enhance the sense of space and connection beyond the envelope all helping making space feel larger than its measured size.
Client Ben works long shift work as a specialist and we proposed the sliding wall behind the dining area to be able to close off the bedrooms and bathroom from the main spaces so there can be some additional layers of quiet when sleeping. It also works in reverse when Ben or Mary are practising or recording music.
The introduced bulkheads carry the original ceiling texture making the ceiling hat feel taller than they are but also ensures that transitioning between spaces is a substantial, conscious experience, they also hide slab set downs from poor construction legacy from the original building
The loose brief was to reinvent the space and bring it more into line with the clients' tastes for their first home. The budget was both driving and limiting factor which helped us determine the final delivered scope of works which was beyond what the clients thought possible.
Air conditioning was installed for respiratory sensitive clients in Sydneys pollution. Sustainability was limited to the selection of materials & recycling due to the project's nature, we used Local hardwood flooring, veneers and terrazzo, and energy / water-efficient products.
▼项目更多图片
客服
消息
收藏
下载
最近






























