查看完整案例

收藏

下载

翻译
Architects:Architectus S/S
Area :43147 m²
Year :2017
Lead Architect :Elton Timbó, Alexandre Landim, Ricardo Saboia, Mariana Furlani
Technical Support : Bruno Lobo, Kathia Roman, Gerson Amaral, Romulo Santos (profissionais da Architectus), Leonardo de Lacerda (arquiteto da Fiocruz)
Environmental Certification : Fundação Vanzolini / CTE
Construction : CG Construções
City : Precabura
Country : Brazil
Being part of the Fundação Oswaldo Cruz expansion plans, the Fiocruz Ceara Campus is a key equipment of the Industrial and Technological Health Hub (ITHH), located on the municipality of Eusébio in the metropolitan region of Fortaleza.
The main objective of the Campus is to expand research laboratory areas related to the development and innovation of pharmaceuticals drugs, health equipment and materials, in addition to the development of scientific research directed to the environmental and epidemiological reality of the region and the dissemination of knowledge through post-graduate courses.
Located on a plot of 103,683.00 sqm, with 18,550.00sqm of built area and 43,147.00sqm of urbanized area, the project is composed by the Teaching and Management Building, Research and Laboratory Building, Infrastructure Building, Service Building, Auditorium, Services Kiosks, Security Cabins, Amphitheater, Bicycle Rack, Main Square and Parking Lots. The buildings were arranged lengthwise on the plot in order to maximize solar orientation and natural ventilation and also to organize pedestrian flows and building accesses.
The project and the construction works have received the Brazilian environmental certification AQUA-HQE (High Environmental Quality), granted by the Fundação Vanzolini and defined as a project management process that aims for environmental quality on new constructions. The Fiocruz Ceara Campus is one of the first institutional complexes to receive this certification in Brazil and several energy simulations were carried out in order to obtain the final results.
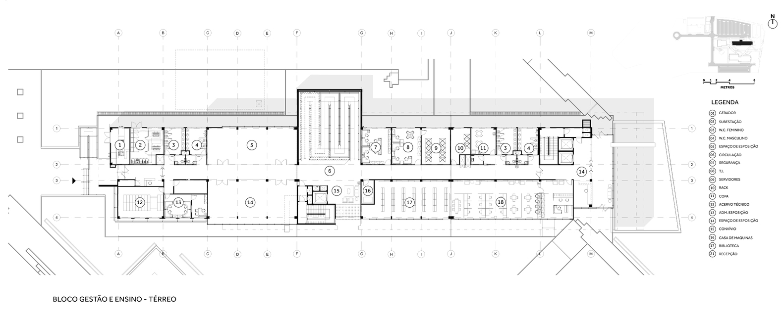
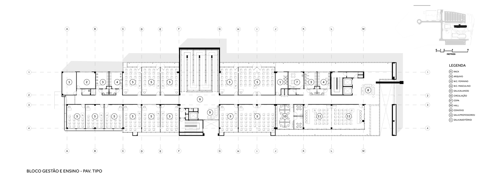
Teaching and Management BuildingThe Teaching and Management Building was designed to host administrative and educational activities. It is composed by offices, scientific areas, classrooms, library, exhibition rooms and technical areas distributed over four pavements. The project aimed to provide natural lighting and ventilation to all circulation areas.
Other sustainable initiatives are also part of this project: rooms with temperature control and automated lighting systems, a roof system designed to receive solar cells and to promote the reuse of rainwater on toilets and the application of high-performance thermal glazing and brise soleils on the external façades. Complete accessibility is guaranteed throughout the building by ramps and elevators.
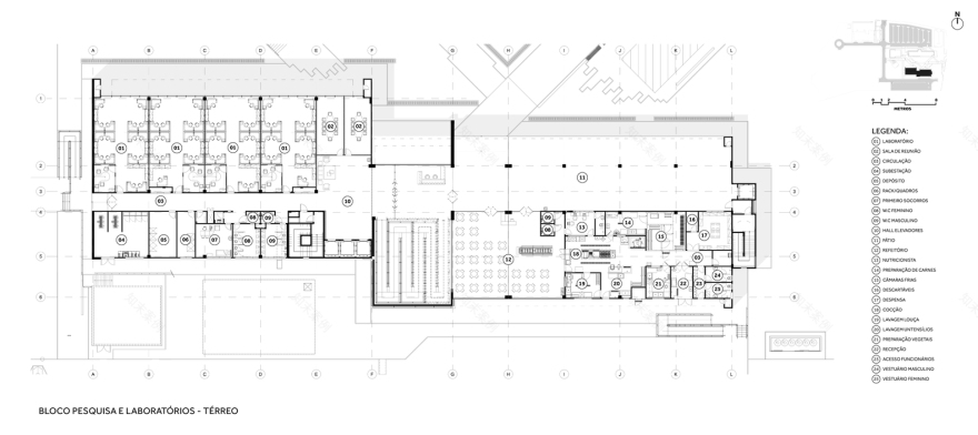
Research and Laboratory BuildingThe Research and Laboratory Building hosts the main laboratories for the manipulation of biological material on Campus. There are 26 laboratories with various biosafety levels (BL1, BL2 and BL3) and a series of supporting areas. The building was designed to guarantee maximum security of the manipulated agents and the researchers through an automated pressure system and an access control system.
The internal areas have an automated system dedicated to temperature and lighting control, and a few laboratories also have an air renovation system provided with absolute filtration, strictly following biosafety regulations. By providing natural lighting and ventilation on the circulation areas, it was possible to reduce overall energy costs. Located on the ground floor, the Restaurant can serve up to 600 meals per shift and its food manipulation processes, internal flows, acoustic treatment and air renovation system were designed within local regulations.
AuditoriumThe Auditorium was designed to host large conferences and it can function independently from other buildings on Campus. Designed as a functional space, the building has certain levels of acoustic isolation and a capacity for 300 spectators on a staggered audience. Accesses on different levels and specific finishing guaranteed complete accessibility and conformity to audio-visual regulations, besides perfect sound propagation which enables the realization of conferences without electrical amplifiers.
Main SquareLocated between the Research and the Management buildings, the Main Square has a central axis that directs visitors form the main security cabin to the Auditorium, with diagonal paths that connect buildings and other minor structures such as the service kiosks, the amphitheater and the interior parking lot. The landscape design incorporated native species and adapted ones and was combined with an automated irrigation system that promotes low water consumption and easy maintenance of the green areas.
Service and Support AreasThe Infrastructure Building has a 12-meter-high warehouse with temperature and humidity control systems, a lighting system working via natural light diffusion (solatube), thermo-acoustic façades and roofing system.
The Service Building is composed by maintenance workshops that serve the main buildings and other support areas on Campus.
Green InfrastructureThe term “green infrastructure” is usually employed as a reference to practices of rainwater management that mimic natural and ecological processes as opposed to traditional engineering solutions, named “gray infrastructure”. The green infrastructure strategies promote the retention of rainwater, reducing the effects of storms and torrents, retaining diffuse pollution and increasing soil infiltration, which contributes to the recharge of subterranean waters.
The proposal for the Fiocruz Ceará Campus is based on the retention of superficial waters by applying draining pavements on exterior areas and creating rain gardens, bioswales and a pluvial lagoon to partially receive the collected waters. Another solution applied to some buildings on campus was the construction of green roofs to store rainwater, decreasing the superficial runoff and alleviating the demand on the drainage system.
Construction Works ManagementAs a guideline, the Fundação Oswaldo Cruz usually employs a company to monitor, supervise and manage their construction works. For the construction phase of the Fiocruz Ceará Campus, Architectus was the winner of the public bid.
The management process consisted of monitoring pre-established deadlines for the construction phase, meeting cost demands, guaranteeing the desired quality and performance standards, making sure that the environmental certification guidelines were being properly followed, and supervising the execution of all projects according to specifications. During the construction phase, Architectus kept on site a group of professionals from diverse backgrounds and organized periodical visits with the project architects and engineers.
Also included as part of the management scope were:- Project analysis;- Building site planning;- Development of the physical-financial planning for the construction phase;- Analysis of material acquisition and service contracting;- Monitoring and control of the work executed by the construction company (quality, costs and overall schedule);- Monitoring of the Execution phase of the environmental certification AQUA-HQE.
▼项目更多图片
客服
消息
收藏
下载
最近






















































