查看完整案例

收藏

下载

翻译
Architects:Ponomarenko Bureau
Area :86 m²
Year :2021
Photographs :Ivan Avdeenko
Design : Volodymyr Ponomarenko
City : Kharkiv
Country : Ukraine
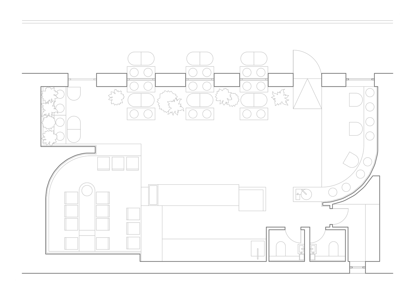
23a is a city coffee shop that is located on one of the historical streets of Kharkiv near Kharkiv Theater of Opera and Ballet
During the daytime, it is a coffee shop with craft drinks, light meals, desserts, but in the evening it turns into a party place with wine and a bar ambiance.
Our client wanted us to create a very comfortable and cozy space with various types of usage. On 86 m2 we placed 38 seats with a free layout and the opportunity for future growth. The place is divided into different zones: a table for a big company, an adaptive central zone, and the entrance zone with a good view of the inside interior.
Furniture is modular so it can be easily rebuilt and changes according to a function of a space.The most essential adaptive elements are tables and benches that help visually change the space. The plants also provide the opportunity for different scenarios and furniture placement.
We were looking for a budget solution that would make the project special. The key element is metal processed with a rainbow zinc coating which creates a unique effect with the light materials. It was challenging to find a suitable coating so, after a large number of experiments, we chose a film as a coverage.
The thing that differentiates the project is that we stepped away from brands and thus developed a clear space. The project instantly became recognizable in the city and received a lot of positive feedback.
▼项目更多图片
客服
消息
收藏
下载
最近








































