查看完整案例

收藏

下载

翻译
Architects:Cottet Iachetti Arquitectos
Area :26910 ft²
Year :2021
Photographs :Javier Agustin Rojas
Architects In Charge : Carlos Cottet, Victoria Iachetti
Collaborators : Cristian Jaume, Melina Cocordano, Renán Rivas
Executive Documentation And Construction Management : Santiago Carrera
Developer : Compañía de Inversión y Desarrollo
Landscaping Project : Laura Trotti
Sanitary Facilities Advisor : KPL Arquitectos
Lighting Advisor : Pablo Pizarro
Structural Calculation : José Zaldua, Rodrigo Saura
Program : Edificio de viviendas y estudios profesionales
City : Chacarita
Country : Argentina
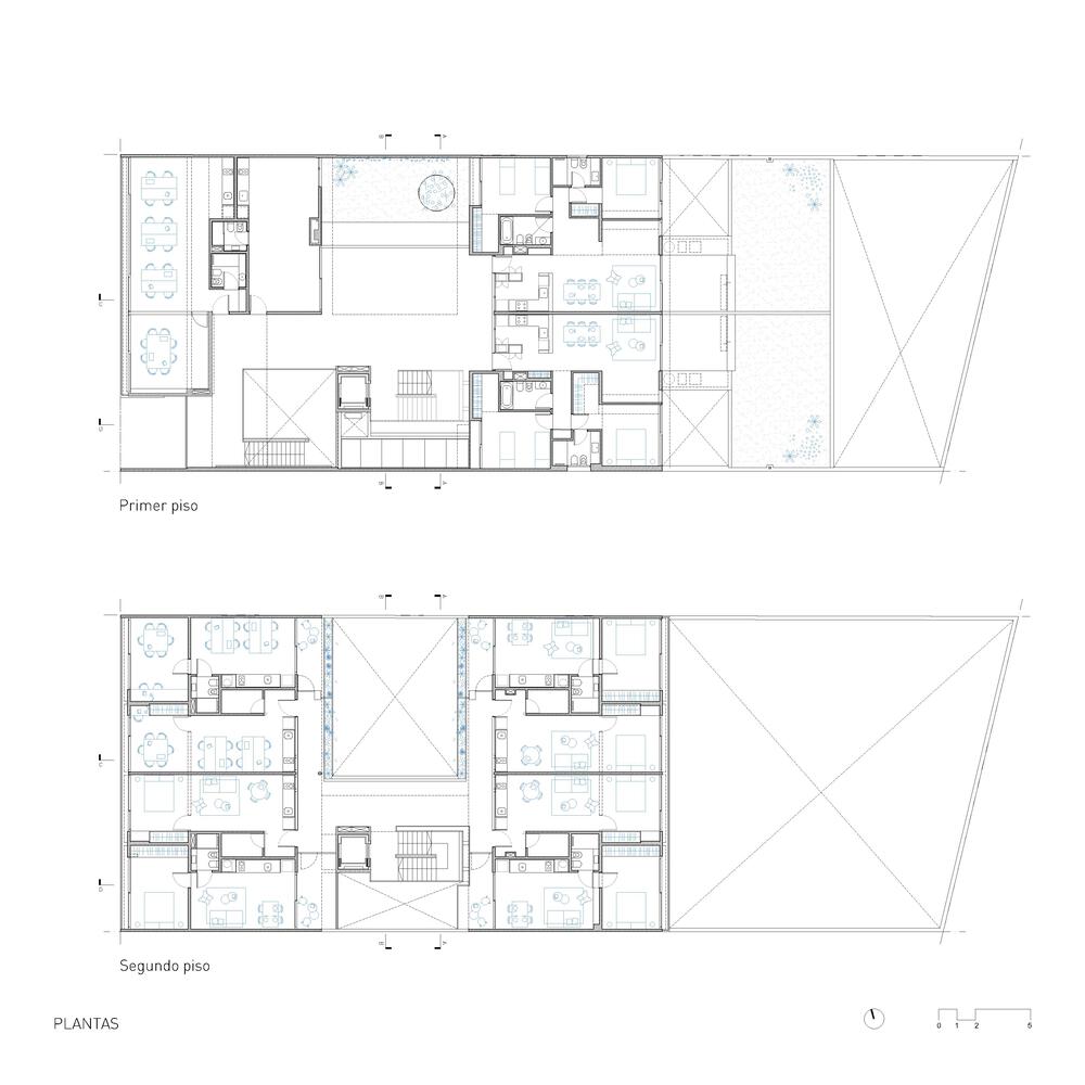
La Vecindad Santos Dumont housing building is located on a double lot in the center of the block in the neighborhood of Chacarita, Buenos Aires. It is a residential building with a wide variety of typologies and large private and common outdoor spaces that, together with section strategies, resolve and define the use of the complex.
The entrance hall on the ground floor, the central courtyard on the first floor, and the stairs together with the different flower beds generate the paths in the form of an architectural walk that characterize the way of inhabiting the complex.
The building is built in exposed reinforced concrete, plaster, aluminum carpentry, and granite cladding made in situ for the circulatory walls in the common areas, ironwork in solid sections painted white and wooden details appear in the entrance hall.
This work is the result and continuity of the studio's work in relation to collective housing systems, in low and medium fabric areas, and its reflection on the relationship between the urban landscape and the forms of contemporary living.
Starting from the volumetric and typological work, spatiality, materiality, and light in their relationship and caliber are the 3 axes that define this work.
▼项目更多图片
客服
消息
收藏
下载
最近



























































