查看完整案例

收藏

下载

翻译
Architects:Maaps Architects
Area :2571 m²
Year :2021
Photographs :Jongoh Kim
Lead Architects :Sungmin Kim, Samyeol You, Myeongsu Ha
Design Team : Hyoin Lee Somi Kang Eunyoung Ko Junyoung Choi Jooyoul Pyo
City : Yeongdeungpo-gu
Country : South Korea
Among the new real estate consumption trends, there is the neologism called ‘Young-kkel Generation’ which means that young people borrow money from banks and their entire family members as much as possible desperately to buy their own house. ‘Yeong-kkel generation’ is an expression of anxiety created by the young generation’s fear that they cannot buy their own houses in the future due to a sharp rise in house prices. This situation is getting so serious.
In South Korea, The 'architectural space' is recognized only as 'real estate for commercial profit' nowadays. In the concept of real estate, which is assessed by mechanical measurement, ‘architectural space for living’ has no meaning. As a result of the competitive social climate, these kinds of social trends are naturally transplanted into urban space and creating a dreary city landscape. This is why urban architecture became expressionless and isolated in silence.
But, the scenery of traditional villages where we played in our childhood, was shown and communicated through the wall of each house. This kind of 'restricted interference' like low walls surrounding the yard should be an essential element of urban architecture. However, in a vertical city, there can be no such yards. So, we just hope thin balconies of our building will serve that role as a yard and walls in the village. Tri_poly is the story of an architectural process to restore those lost features of our life.
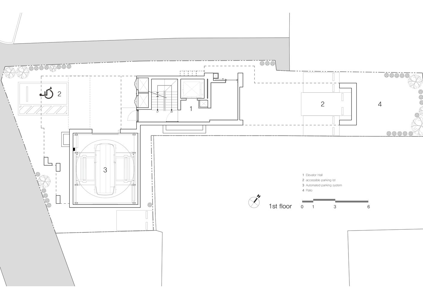
Poly1) Connecting three different functions (Functional_poly) Tri_poly is a multi-purpose building that consists of three architectural functions together.
Neighborhood living facilities, officials (dual-purpose buildings used for commercial and residential purposes in Korea), and multi-household houses are stacked from below. We have conceived a concept that harmonizes three functions through a common element: the balcony. However, under the current law, balconies cannot be installed in officials. Tri_poly is the result of the idea of a solution to the installation of terraces at officials complying with the current law using its unique triangular structure and linking three functions and programs into one architecture.
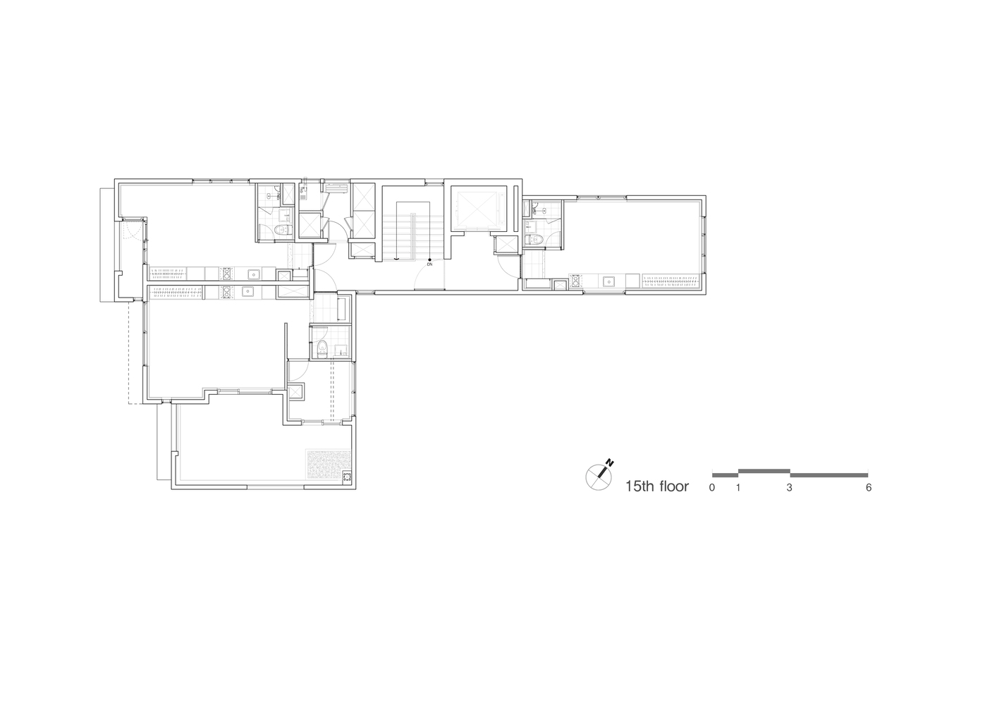
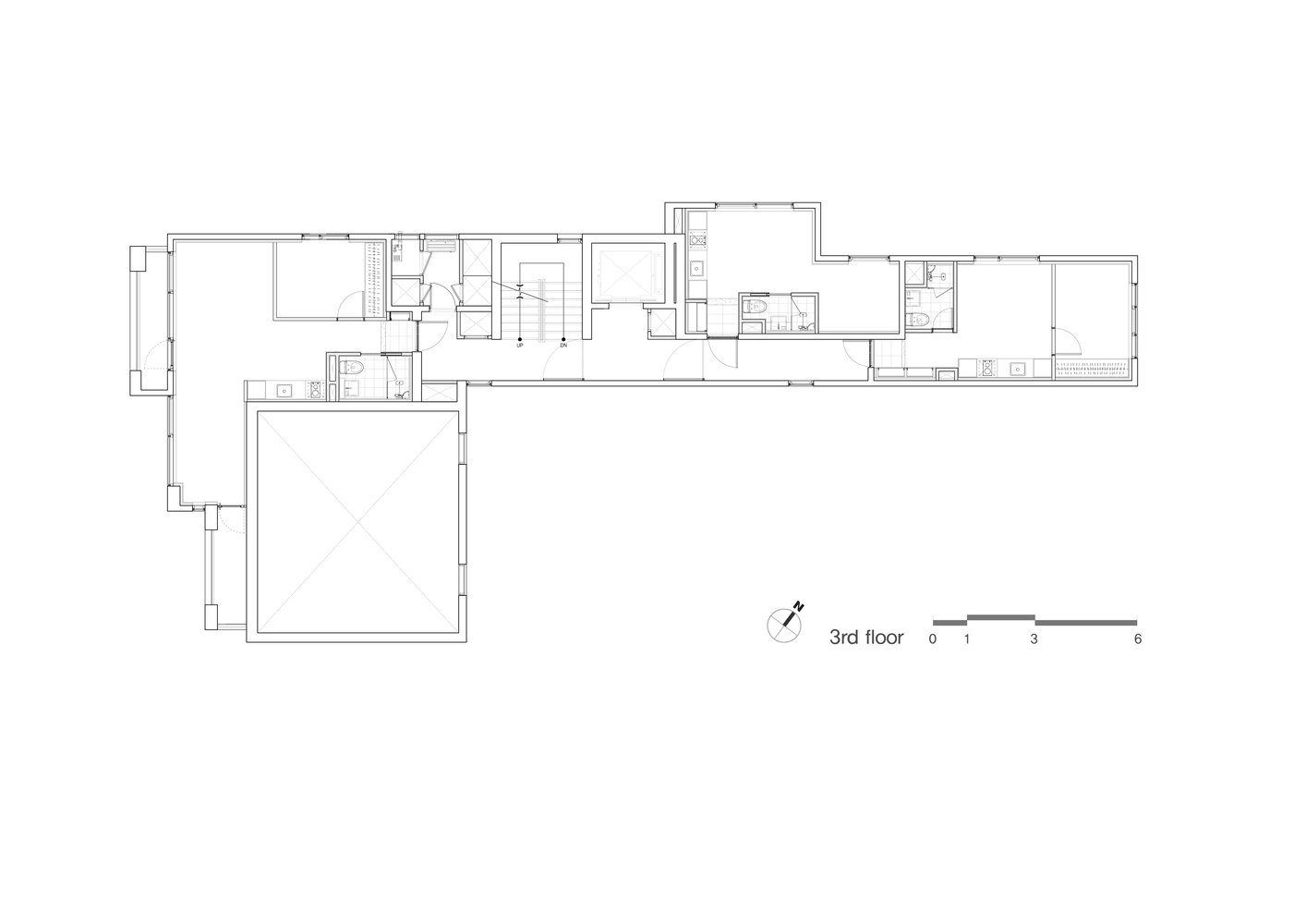
Poly2) Using slits as terraces (Terrace_poly) Tri_poly means a spatial system connected through the repetition of a triangular structure.
The vertical zig-zag patterns create triangle slits on its facades. These triangular cracks make room for balconies. The triangular structure also has become a reference line for a design that supports loads and windows. As a result, the slits which Tri_poly creates play a role in exposing the interior space to the outside and offer a resting place where people can relieve stress.
poly3) Communicating through the balconies (Viewing_poly) Tri_poly provides various types of the window where each individual space meet the outside.
The vertical architectural landscape opened on two or three sides offer vitality to the urban landscape by revealing the people’s various lifestyles to the outside.
The purpose of creating various windows and terraces may be to add abundant light and scenery to individual spaces, but the main design intention is to allow windows and terraces opened on multi-side to interfere in people’s privacy a little bit. Rather than the independence of privacy, we intend people to communicate through some interference and also reveal their stories through ‘these kinds of interference’. Through this, the scenery that we want to create is the urban landscape where the drama of our lives flows onto the facades of Tri_poly.
▼项目更多图片
客服
消息
收藏
下载
最近








































