查看完整案例


收藏

下载

翻译
Architects:e.Re studio
Area :220 m²
Year :2019
Photographs :Yudi D Hertanto
Manufacturers : AutoDesk, Google, Grohe Sanitary Fittings, Kohler, Krono Wisma Sehati, Legrand, Xing Fa Alumunium SystemAutoDesk
Lead Architect :Erwin Kusuma
Design Team : Andisti, Dana, Regina Winarni
Engineering : Christian Sunarto
Landscape : Erwin Kusuma
Collaborators : Kartono Architects
City : Kecamatan Regol
Country : Indonesia
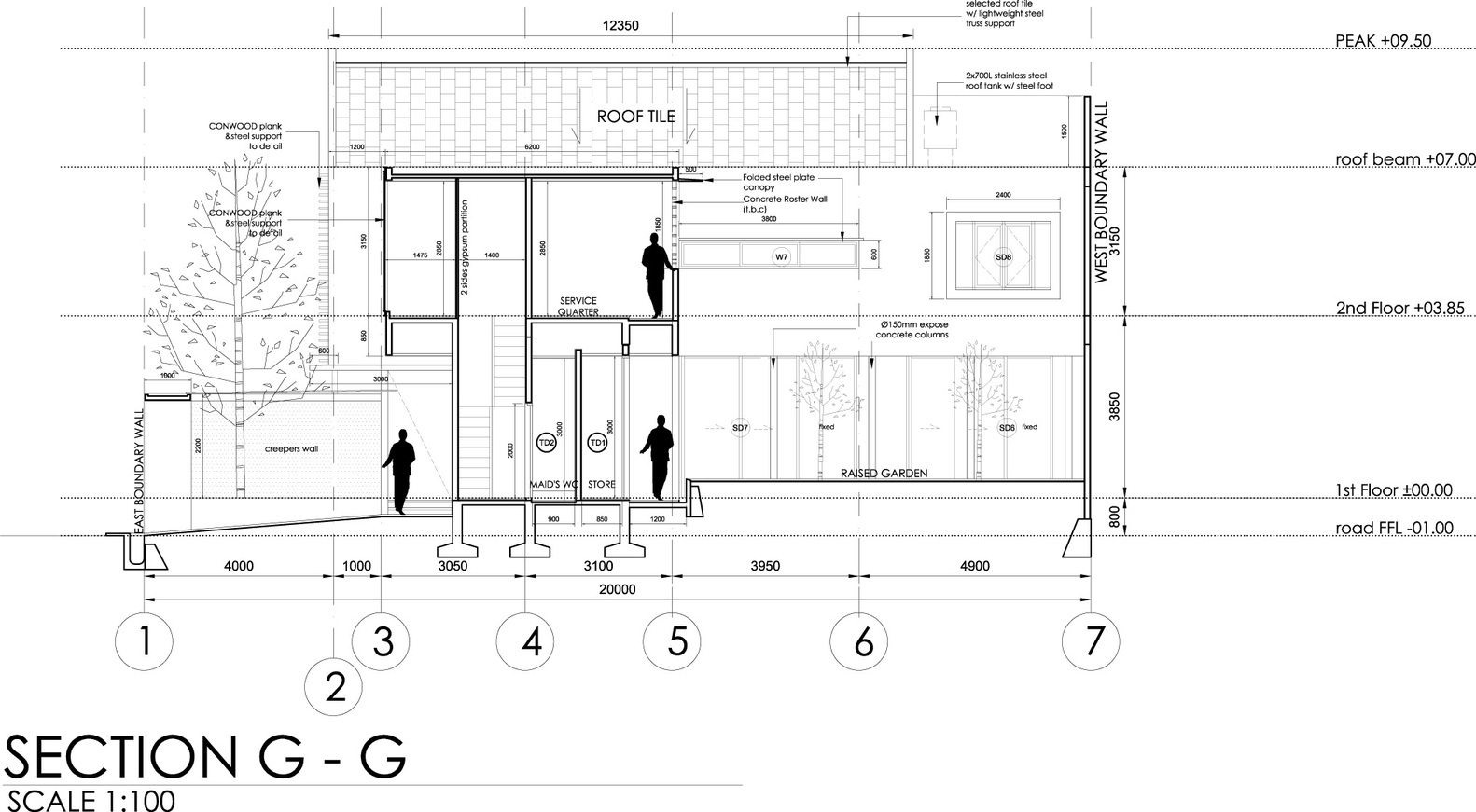
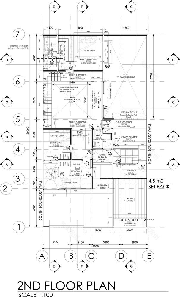
It is a medium size house project designed for a small young family. Located in a dense neighborhood of Bandung city, Indonesia. The design approach was to create a simple popular looking house with triangular shape facade.
And also to accommodate the client need for space. Every interior element offers the complexity of designs and details, contrast with a relatively plain and minimalistic front facade.
The layout also highlighted the maximum infusion of natural light through windows and featured skylights. Clients were delighted with its spacious feel, especially on the main living-dining area.
▼项目更多图片
客服
消息
收藏
下载
最近




























