知末
知末
创作上传
VIP
收藏下载
登录 | 注册有礼
知末案例   /   教育空间   /   幼儿园

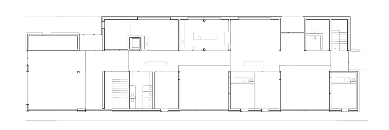
幼儿园的创意空间

2017/06/12 04:43:40
查看完整案例
微信扫一扫
收藏
下载
翻译
Architects:Simon Freie Architekten BDA
Area :1400 m²
Year :2016
Photographs :Brigida Gonzalez
幼儿园的创意空间-4
▼项目更多图片
幼儿园的创意空间-6
幼儿园的创意空间-7
幼儿园的创意空间-8
幼儿园的创意空间-9
幼儿园的创意空间-10
幼儿园的创意空间-11
幼儿园的创意空间-12
幼儿园的创意空间-13
幼儿园的创意空间-14
幼儿园的创意空间-15
幼儿园的创意空间-16
幼儿园的创意空间-17
幼儿园的创意空间-18
幼儿园的创意空间-19
幼儿园的创意空间-20
幼儿园的创意空间-21
幼儿园的创意空间-22
幼儿园的创意空间-23
幼儿园的创意空间-24
幼儿园的创意空间-25
幼儿园的创意空间-26
幼儿园的创意空间-27
南京喵熊网络科技有限公司 苏ICP备18050492号-4知末 © 2018—2020 . All photos and trademark graphics are copyrighted by their owners.增值电信业务经营许可证(ICP)苏B2-20201444苏公网安备 32011302321234号
客服
消息
收藏
下载
最近