查看完整案例

收藏

下载

翻译
Architects:Simple Projects Architecture
Area :321 m²
Year :2019
Photographs :Mansyur Hasan
Architect In Charge : Nikko Lendra
Interior Designer : Meyliza Kotama
Project Architect : Zamrul Eka
General Contractor : Barito Anugrah Sejati, Leo Purnomo
Interior Furniture Contractor : Haryanto Admodjo
Paint Specialist : Bambang Irawan
City : Surabaya
Country : Indonesia
Homey
‘HHH’ house was inspired by our childhood memories and perception of a house to begin with. As a kid, we often picture a house with a single triangular roof (pitch roof) on top of a square wall with a door and a window, and we were inspired by these basic shapes and unpretentious materials used on the houses we have seen when we were young. A vision of a simple home with cozy ambiance is the space quality that we would like to offer.
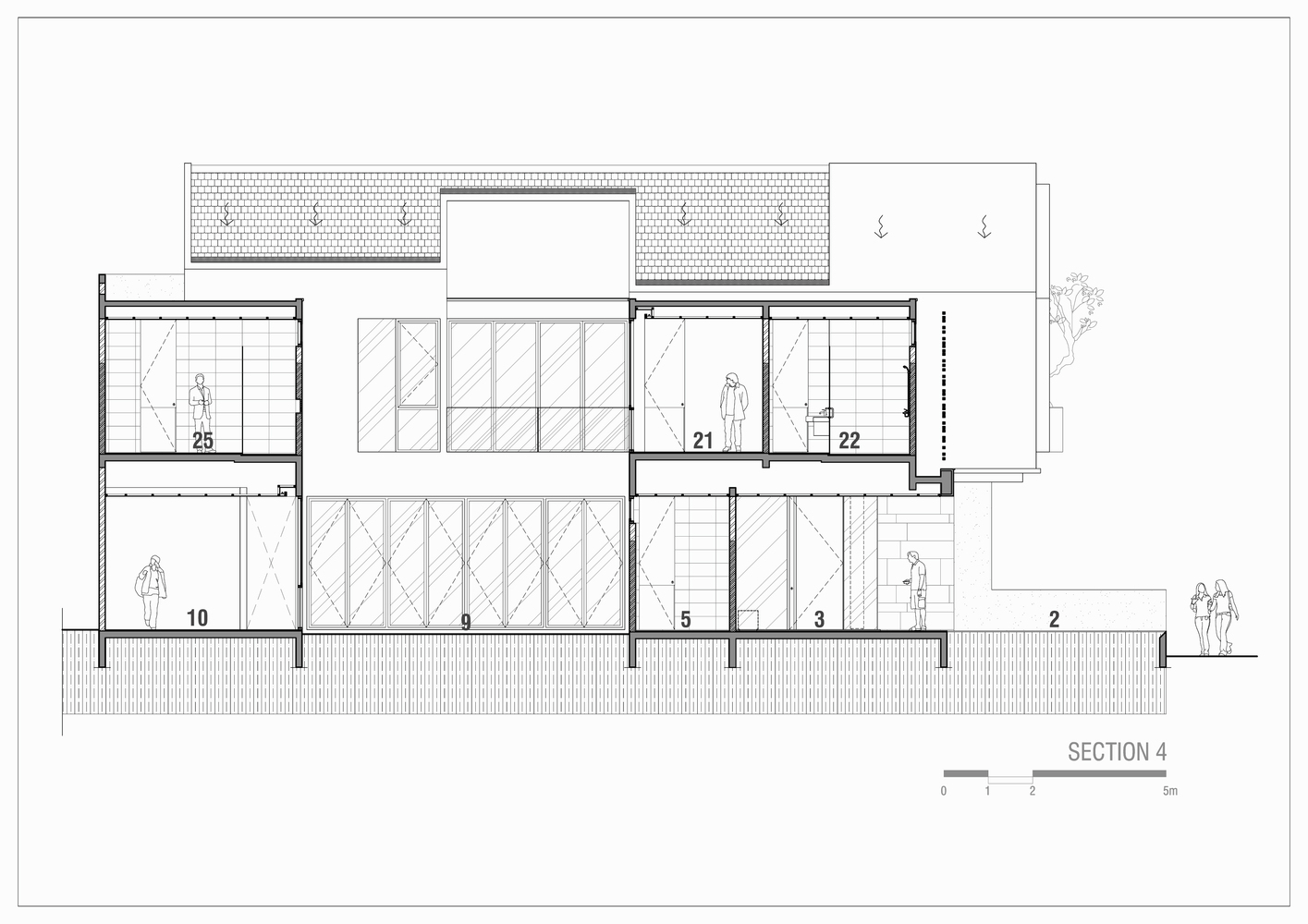
‘HHH’ house prioritizes the significant areas of the house yet striving for maximum comfort in accordance to the agreed budget and limited space available. Simultaneously, open plan area of living room-dining area-pantry, which has become the core of the house, has flexible layout plan, allowing the future residents to enjoy different activities. Through these design strategies, consequently, we managed to produce a dynamic and adaptable flow as well as generate a rather unique walkthrough experience throughout the house.
We also selectively chose the façade materials and color compositions to convey an intimate tropical modern space experience. Different shades of grey exterior paints were applied on the cantilevered upper floor façade to enhance the signature silhouette as opposed to white travertine slabs which cover most of the ground floor walls, while a white planter box on the balcony serves as a highlight to break the dimmed upper floor façade. Ultimately, grey textured cement on the boundary wall serves as a reception to connect exterior to the interior colors scheme.
Hale
We believe that a healthy air flow circulation and an effective use of daylight will add value to a cozy home. Therefore, we created a number of openings on the sides of the building to maximize these features, such as the inner courtyard located on the east side, which is exposed to daylight during most of the days and will provide orientation to the rooms. A dry garden is also inserted adjacent to the main staircase on the west end to serve as a background, with a Loc Vung (Barringtonia acutangula) as the point of interest.
Each room in the house is designed with floor-to-ceiling windows and openings to allow maximum daylight to penetrate and keep each room bright in most of the day, regardless the dark colored floor and walls. Moreover, the softscape selection for the front and inner courtyards, and in the planter box on the upper floor balcony also brings a sense of sustainable living in the house. These interactions were expected to blend the boundaries between interior and exterior, hence a better living quality.
Heed
Emphasizing on the idea of “from inside to outside”, ‘HHH’ house space experience may begin with a modest appearance yet containing many surprise elements once one embarks on the journey into the house. These surprise elements can be found from the functional space layout to the carefully selected interior materials and custom furniture, and complimented by the interaction between indoor and outdoor, which will evoke a luxurious experience after one encountered.
‘HHH’ house explores a darker shades and study different colors and materials combination to enhance the luxury feel. In general, we utilized different shades of greys in combination with gold painted metals, walnut veneers, and white granite tiles to infuse the sense of lavishness. The grey granite tiles on the floor and dark painted walls are well-balanced by the crisp white painted ceiling and carefully positioned spotlights, creating an intimate space experience as we go through. Additionally, we also carefully custom-designed all the camouflage doors, door handles, the treads of the main staircase and most of the furniture to complete our interior design concept of a value-for-money homey residence with luxurious ambiance.
This project has become our example of highly attentive and meticulously designed home. As designers, we are determined to produce a suitable design regardless of all the limitations. ‘HHH’ house has certainly been one of our proud achievements, for we are able to educate our client to appreciate that “less can be more”, and that a simple appearance can still offer a luxurious experience.
▼项目更多图片
客服
消息
收藏
下载
最近























































































