查看完整案例


收藏

下载

翻译
Architects:Collage Architecture Studio
Area :8500 ft²
Year :2017
Photographs :Shamanth Patil, Arunkumar TD
Manufacturers : AutoDesk, Chaos Group, Fundermax, Hansgrohe, Gessi, Saint-Gobain, Schneider Electric, Adobe, Nuance Studio, TrimbleAutoDesk
Landscape :Mounds & Swales, Bijoy Chacko
Consultants :Rays Consulting Engineers, Ravishankar
Architect In Charge : Swapnil Valvatkar, Pradnya Patil
Design Team : Swapnil Valvatkar, Pradnya Patil, Nandita Natesh, Surbhi Mittal
Clients : Anupama, Prashanth
City : Bangalore
Country : India
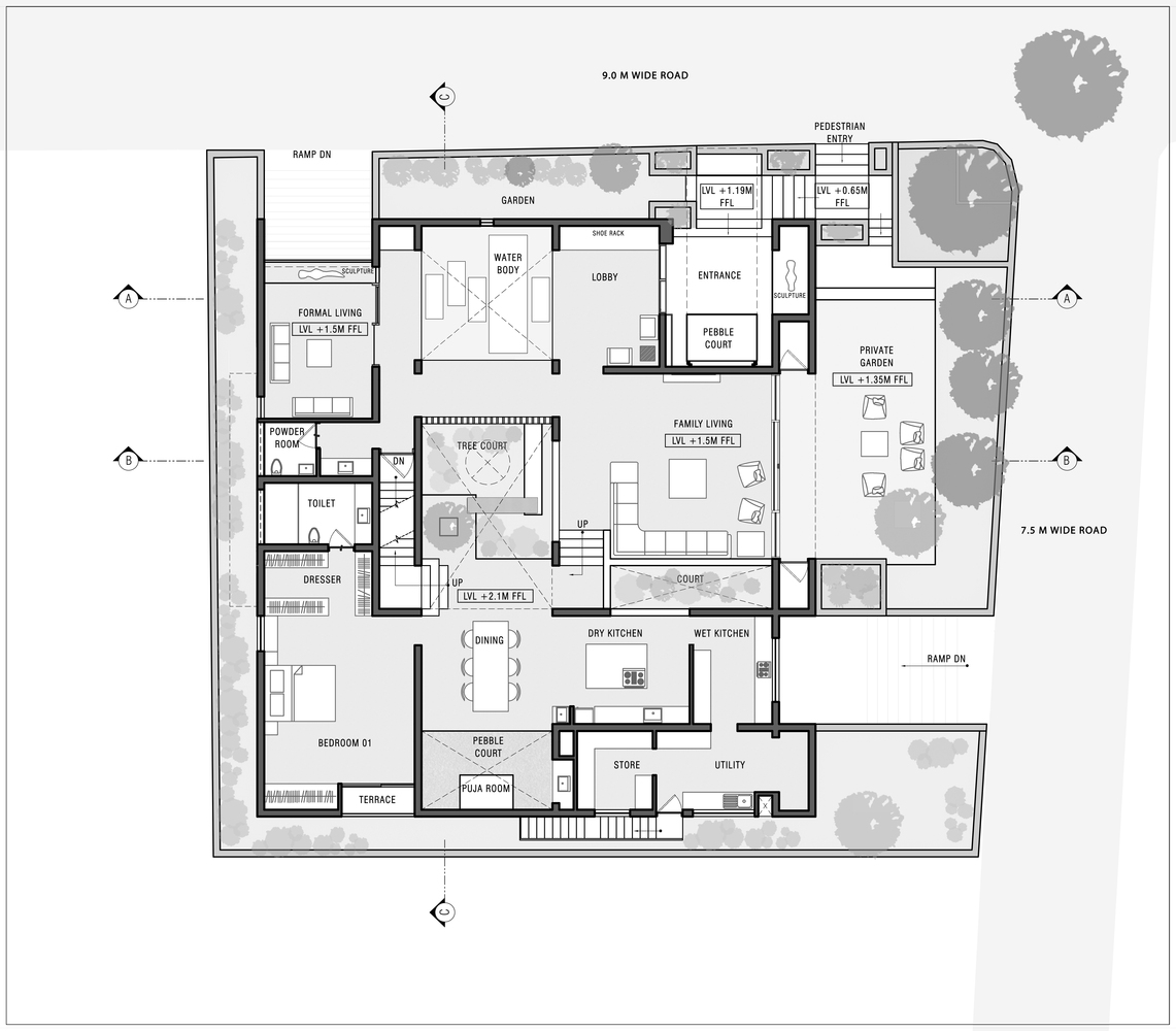
In keeping with the client’s desire for a strictly Vastu compliant house, the placement of the spaces in the house are in synch with the plan of the Vastu Purusha Mandala. Thus the biggest challenge while designing the house was to arrive at a visually appealing structure from a rigid program that dictated the specific locations of various spaces. The design of this residence aims at getting rid of the solemn and stereotyped impression of a traditional Vastu defined home, where the nine grids curb the free flowing creativity of design. Instead it focuses primarily on creating an open and active living atmosphere where the young family can grow into and flourish. This residence is an ideal illustrative of an urban home designed for a family of four.
The clients being simple and deep rooted wished to have a clean, minimalist, simple yet a modern house where nature would seamlessly tie the built and un-built together. The proposed site nests in a prime, high-end residential area, with the north and east side abutting the road. Measuring 80’x 85’, the other two sides of the site are surrounded by buildings. The design responds primarily to the context by retaining the existing trees and bringing their essence within the built spaces. Vastu grid is a loose guide upon which the living spheres are placed interspersed with size able chunks of landscape carved into the built mass. The three courtyards break the monotony of stark materials and masses that define the entire structure. Each of these courts unfolds a different experience and theme for a user.
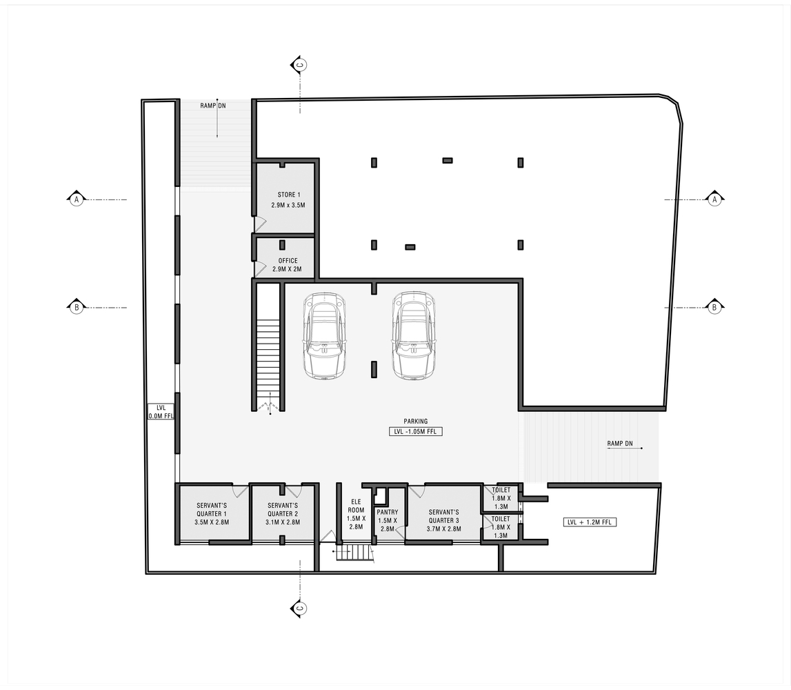
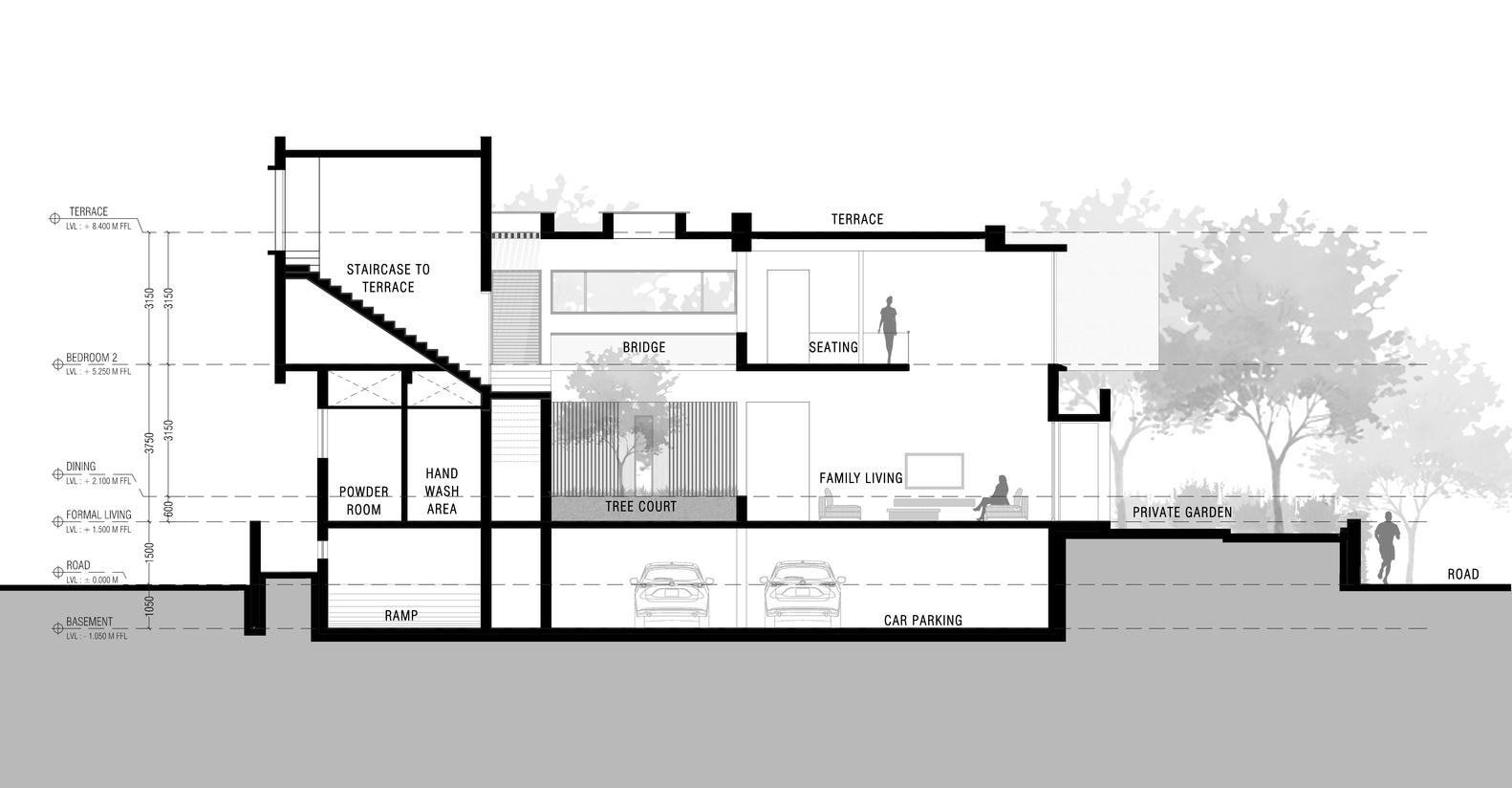
The built seems to be complimented by the existing and added greenery which is an experience in itself. Upon entering, one gets an uninterrupted vision of the house with green pockets in between. Designed around 3 courtyards as focal points, the buildings primary spaces push and pull to create a variety of spatial experiences- solid and void, light and dark. This house has been designed as a volume eliminating the enclosures for individual spaces, puncturing the mass strategically to maximize the daylight in the interior spaces and opening the house to fresh wind. Elevating the living floor plate provided space for car park and in turn helped cutting off direct visual connection to the interiors. Thus the raised plinth in a way acts as a compound wall for the house eventually merging with the landscaped area.
A central courtyard functions as a transition from a public space to private one. This double height court is the heart of the structure which is embellished with lush green flora. The built home may be simple, yet is rich in thought, detail and specification. Projecting cubes, double height spaces, courtyards amidst the delicate landscaping are complementary elements used in conjunction with the material palette. Every space is visually connected to enhance interaction within the house. A level difference is tactfully used to mark the various spaces in place of creating walls, and yet the privacy of each space is well maintained. Split level planning has been adopted, thereby providing spacious rooms arranged around the central court.
Zoning has been done horizontally and vertically providing a visual and physical connection between the spaces. Skylights have been strategically placed which aid in improving the spatial quality. The projecting balconies frame beautiful vistas of the surrounding. The material palette is kept minimal, marble flooring captures reflections while exposed concrete panels add a rustic charm to the exterior. Balanced use of wood, both in the interiors and the exteriors to pronounce warmth, escalates the sensation of luxury. The full height glazed openings provide transparency and helps capturing surrounding beauty.
The result is a residence that is a product of a perfect amalgamation between the built and the naturally existing, blend of modern design, materials and natural elements. Water, earth, sky and vegetation come together to frame and accentuate the contemporary design to create a warm, stylish and inherently comfortable modern residence. The green space is not limited to the exteriors of the building only but also dominates the spatial structure of the interior layout. All the common areas of the house which surround the courtyard like the living, dining and the kitchen areas which are the day-units are treated as exterior spaces to seem as extensions of the landscape areas into the interiors. The internal court serves a dual purpose of being a climatological feature and a strong aesthetic element.
▼项目更多图片
客服
消息
收藏
下载
最近









































