查看完整案例


收藏

下载
OMA 作为全球知名的先锋事务所,其作品一度引领时代,其掌舵人库哈斯的设计风格,更是影响了一代人的建筑思维。 近期 OMA 就落地了一个新项目「The Perigon」。 「The Perigon」坐落于美国佛罗里达州迈阿密海滩市的一个海滨场地,其建筑采用了分层住宅结构,形成七座互锁的塔楼,看起来很有「横看成岭侧成峰」的感觉。 该项目也是 OMA 在迈阿密海滩的第一个住宅项目,预计 2026 年完工。
整个建筑共 17 层,面向海的一侧看起来是一个独栋的整体,而从侧面看去整个住宅楼则是一个高低错落富有层次的形态。
建筑采用递进式设计,两边向中间逐步攀升,直到在最中间达到一个高峰。
阳台由直角和曲线结构穿插而成,这种连锁结构的形式设计,能够给每个住宅提供充足的视野。
“塔之间形状的微妙对比,有机的正交交汇,突出了它们的并置。”
底层的入口被整体抬高,且在住宅楼的前后都设计了步道路线,缩短了从住宅到海边的距离。
OMA 表示选择抬高建筑底座是为了将入口与该地区的其他房产区分开来,并将其描述为「堡垒」,犹如一堵「墙壁」阻挡了人们的视野,能够更好地保护居住者的隐私。
住宅楼的两侧还种植了大量的棕榈树,其中穿插着「交织循环」的小径,以此来呼应建筑的造型。
走进室内,大堂的设计简约而敞亮,大面积的玻璃墙扩大了视觉感,同时将采光与室外景色引入。石质的接待台与百叶样式的金属背景墙,提升了空间质感与纵深。
住宅楼内共有 83 套公寓,包含 9 套豪华套房,2 套复式公寓和 1 套顶层复式,布局从 2 居室到 4 居室都有,面积为 195㎡~670㎡。售价为 415 万美元(约 2938 万人民币)起。
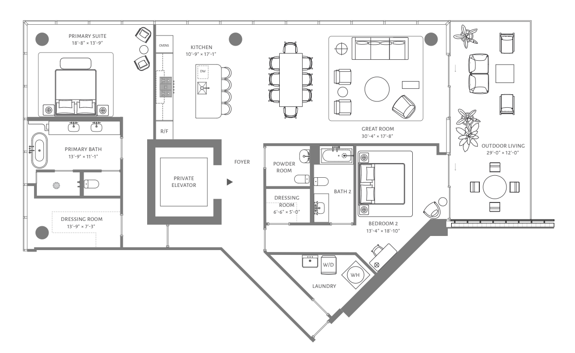
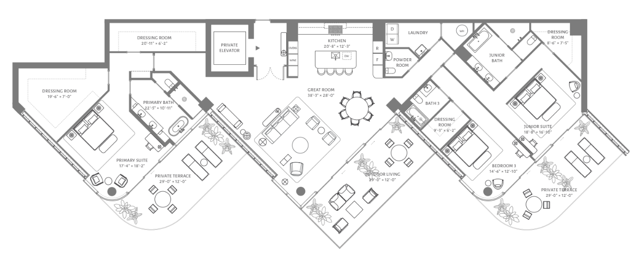
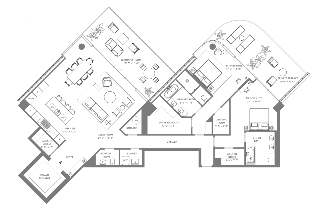
11~15 层户型图▽
大楼内的每间公寓都配备了落地玻璃窗和大露台,得益于联锁结构的建筑设计,分布在不同层次的公寓也都能够更轻松的眺望大海。
客厅色调温馨自然,墙面并不全是大白墙,浅色布艺沙发搭配柔软地毯和石质茶几,布置朴素简洁,在阳光的作用下显得极为好看。
开放式厨房以岛台为中心,形成 U 型动线,两侧做封闭式通顶橱柜满足日常储物需求,烹饪区对应的油烟机被包裹在岩板饰面内,两侧做开放式搁板,形成对称。
卧室通铺木地板为整个空间奠定了静谧基调,营造出纯粹本真的休息氛围。
卫生间设壁挂式双洗漱台,拥有更高的颜值和轻盈感。
与卫生间相连的大露台▽
住宅楼的配套设施位于低层空间,带有室外泳池、室外水疗中心、冥想休息区、健身房、鸡尾酒吧、私人餐厅、电影院和儿童游戏室等。
户外泳池水质澄澈湛蓝与远处的海水相呼应,泳池两边布置了躺椅与遮阳伞,只为给住户提供更佳的游泳体验。
泳池,一站式休闲娱乐解除身心的疲乏,带来更高的生活品质感。
设备齐全的健身房,满足住户日常健身需求▽
住户还可以享受如住宅管家,体验专门的生活礼宾服务,去招牌海滨餐厅用餐,以及在花园和冥想休息区内俯瞰大西洋的景色。
由 Gustafson Porter Bowman 打造的景观,形成一道风景屏障,不仅提升了绿化美感,也起到一定的私密性。
客服
消息
收藏
下载
最近















































