查看完整案例

收藏

下载

翻译
Architects:Studio 30 Architects
Area :185 m²
Year :2017
Photographs :Salt productions
Manufacturers : AutoDesk, Ithaca roofing, Precious Marble, The Folding Sliding Door Company, Trimble, Windows4UK.euAutoDesk
Engineering :BTA Structural Design
Landscape :Studio 30 Architects
Collaborators : Cornerstone Contractors Ltd
Country : United Kingdom
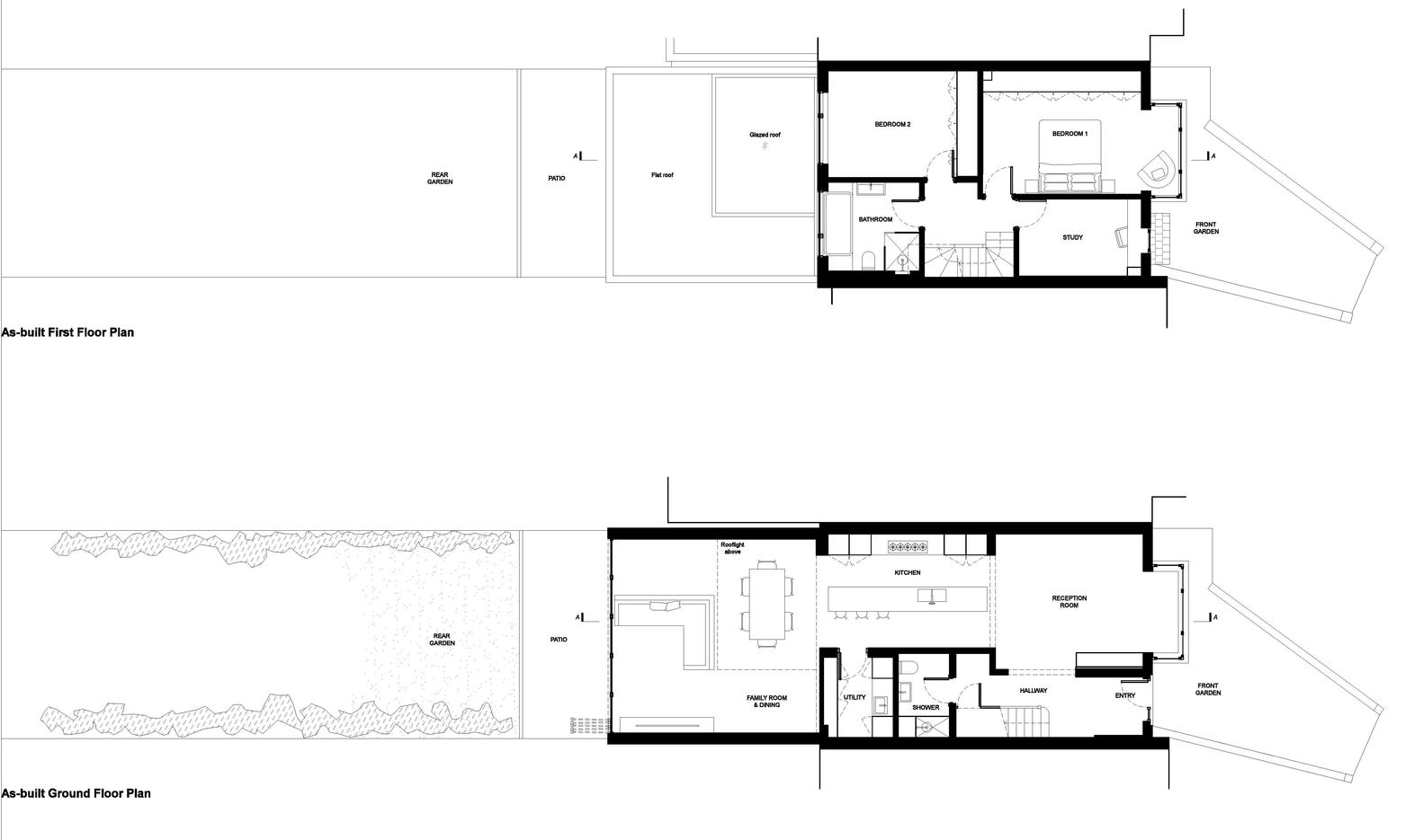
By rationalising of a confused layout and opening the inside up to the outside, a growing family creates a contemporary, open and bright home. Passing through a newly cleared entrance hall and entering the refurbished lounge, the removal of an existing wall opens up a view to the rear garden.
By circulating through it, the kitchen is placed at the heart of this new layout – reflecting the family’s living aspirations – while the naturally darker portions of the plan are allocated to less used utility spaces. The new rear extension pushes into the garden the full 6m allowed under UK Prior Approval, with a full width set of glazed sliding-folding doors and a large rooflight allowing natural daylight to flood in.
Like the layout, the existing rear façade was disorganised and of poor quality. By rebuilding both the ground floor and loft dormer extensions to full width with complimentary glazing rhythms, a coherency was brought to the elevation. At ground floor, dark blue engineering bricks clearly define the new additions while retaining the textural sophistication of well constructed masonry.
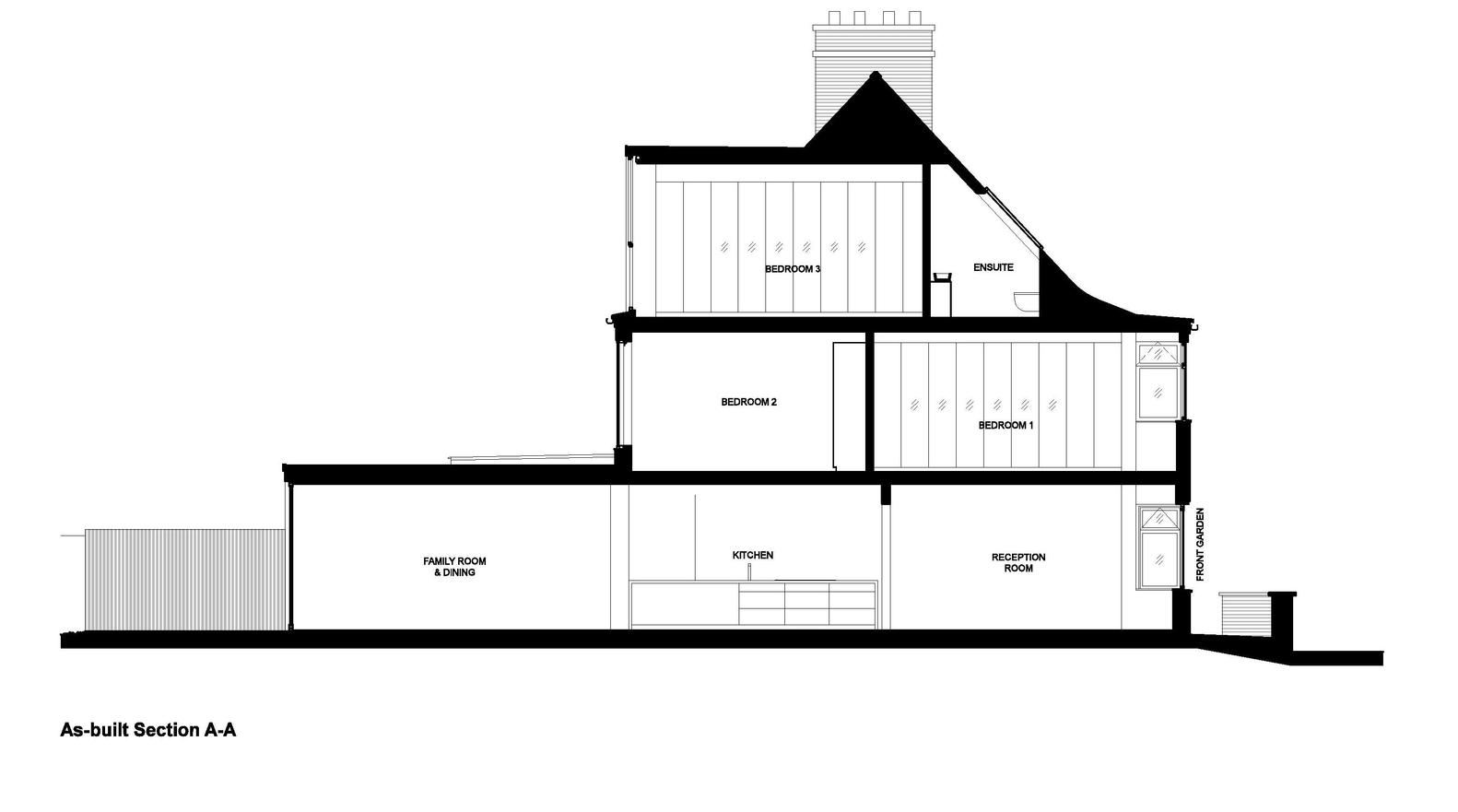
At first floor, to the rear, two new large windows with substantially lower sills open up the spaces to the outside and flood them with light, with a freestanding bath enjoying views of the garden. The loft stair hugs the party wall, creating a huge master suite.
By raising the dormer’s ceiling under the site’s Permitted Development rights, more light is allowed in – and views to the garden out – through full height glazing. New rooflights, located at the bottom of the front pitch, give the ensuite heaps more natural daylight and offer views to the wider neighbourhood.
▼项目更多图片
客服
消息
收藏
下载
最近



















