查看完整案例

收藏

下载

翻译
Architects:Andrade Morettin, GOAA - Gusmão Otero Arquitetos Associados
Area :5000 m²
Year :2016
Photographs :Pedro Vannucchi
Collaborators : Joana Mitre, Marina Novaes, Marina Pereira
Architects In Charge : Vinicius Andrade, Marcelo Morettin, Guido Otero e Ricardo Gusmão
City : Brás
Country : Brazil
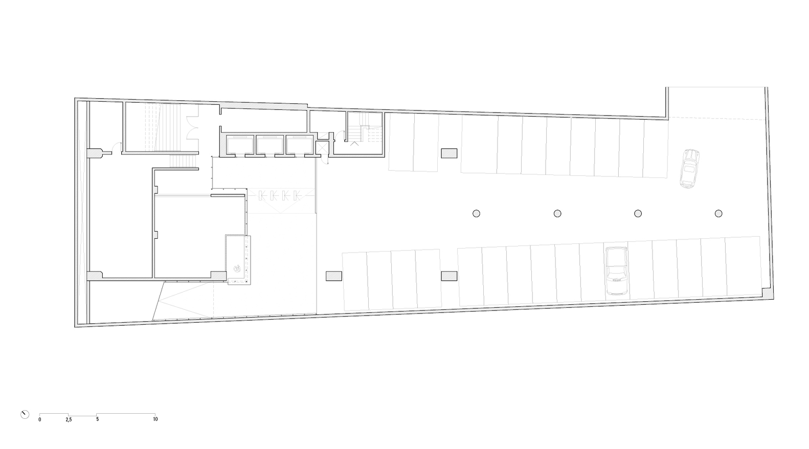
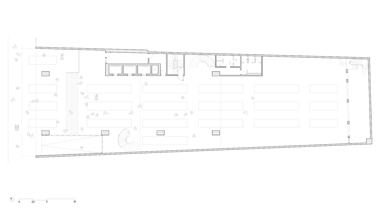
Of remarkable presence in the landscape of the Concordia, the Castelo Branco building was underutilized, its facade of monumental dimensions and animated by its brise-soleil did not reflect the abandonment of its interior. If on the one hand, the intense movement of Rangel Pestana Avenue makes it difficult to lease the large office floorplans, on the other hand, it produces such appreciation of the commercial space on the ground floor that makes impossible any intervention that would consider closing it.
The project seeks to reconcile two demands: to create a comfortable and attractive access for the office floors tenants and to maintain direct access to the retail space on the ground floor. The result is a design made with materials that are recognizable in the landscape of the region, enabling quick and clean construction and creating a clear access space. By taking advantage of an old disused ramp, the new entrance seeks to be direct and generous seeking to capture the attention of the pedestrian to the interior of the building.
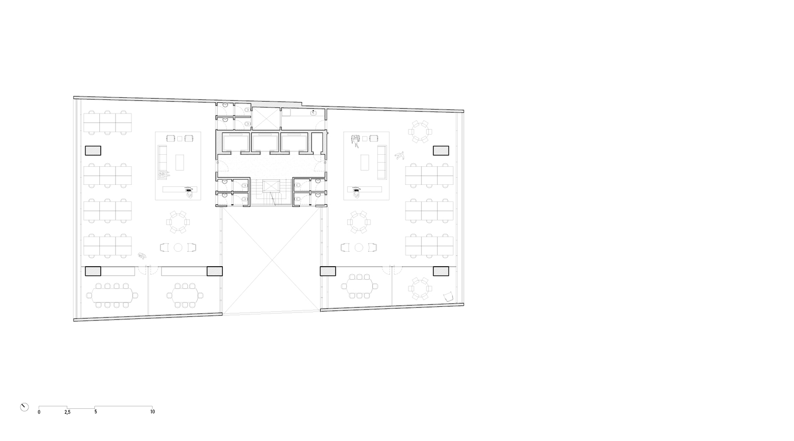
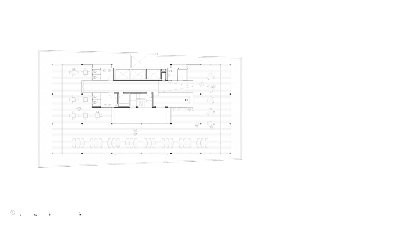
In the office spaces, minimal interventions sought to recover the existing finishes within the sets. The granite flooring in the circulation was maintained and the frames and bricks recovered to facilitate its use. In the rooftop, we proposed the installation of a pavilion made with a pre-fabricated wooden structure that would house a space for events and a restaurant. This equipment allows a public access to the panoramic view and creates a space of contemplation at the top of the metropolis of São Paulo.
▼项目更多图片
客服
消息
收藏
下载
最近
























