查看完整案例

收藏

下载

翻译
Architects:SSA Architects
Area :1000 m²
Year :2022
Photographs :Tropic Villa Studios, Jacques Herremans, Diane Durongpistikul
Project Management :9PM Project Management
Client : Anaia Villa
Country : Thailand
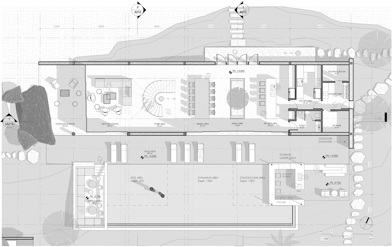
Local materials, local actors for an all-inclusive retreat luxury villa on tropical island There are times when people want to hit pause on their fast-paced lives, to detach and relax, to recuperate from the effects of a bustling city, and spend quality time with their friends and family. Private retreats that provide such an opportunity hold a special place in people’s hearts. Anaia is one such place where one would yearn to go. Located on the secluded and tropical island of Koh Pha Ngan (Thailand) is the luxury villa - Anaia, which combines entertainment, nature and wellness-based experiences. This micro-resort covers 1,000 square meters on 4,300 square meters of land. This property aims to be a modern wellness resort made with vernacular materials, using site conditions and existing topography to its advantage as an energy-efficient and sustainable building.
Anaia’s Journey of Exploration - The journey around the property unravels this resort to the visitor’s eyes. Reaching the place, the visitor circles around the resort and views it in its full glory. The "opus incertum" stone cladding, punctured with a white porch, has a large timber pivot door, opening the visitor to a world of serenity. The dining and kitchen areas make for a communal space, which leads toward the infinity pool against the backdrop of the lush tropical garden with palm trees. The main building is comprised of two stacked perpendicular blocks, with the cantilevered block supported by a signature "V" column. This volume composition ensures the shading of the pool from the sun and its protection from rain. Similarly, all the private and communal spaces light up naturally and adequately while shaded. The floating slabs arching over both ends of the infinity pool hold a pool bar on the right and a sunken pool lounge on the left. These spaces are covered with fabric gazebo atop timber posts. This design of the gazebo mimics the vista and the sensation of boats on the still sea.
The resort's character and growth unravel as the visitor traverses through the spaces and host of amenities. The modern and rectilinear forms of the resort serve as a brilliant canvas for more fluid forms within the property, such as the black spiral staircase within, the random pathways, the hammam and the plunge pool with a natural rock waterfall. This deviation encourages its guests to be at ease, relax and indulge. It makes this project a physical manifestation of Yin & Yang.
Natural Materials as Inspiration - All the stones extracted from the site form the primary vocabulary in the development of this structure. The topography of unmovable rocks defines the planning of the spaces. The bed of rocks around the main building supports the sharp upper volume while incorporating parts of immovable boulders into the interiors, acting as a partition. The yoga shala is away from the main building and takes advantage of a naturally occurring rock-bed for its footing. The plunge pool too, uses the natural bedrock as a waterfall, giving it a therapeutic touch. Smaller stones are transformed into the signature wall cladding with the expertise of local artisans and builders, forming an ever-present artwork that was six months in the making.
The vegetation conservation, as well as sensitive design, played a vital role in shaping this property. The property weaves in and around rich local vegetation of mango, frangipani, gooseberry and cashew trees and various fauna. The palm trees in the site are integrated into the design, making it an iconic view to have from the main building. This tree cover of the site blends in with the landscape and pathway design to create hidden spaces, an added incentive for exploration to the guests.
Interiors - Where wellness is the X-factor for this resort, only a minimalist design fits the bill. In this case, interiors are minimalist with earthen finishes, a neutral color palette with black accents, custom-made decorative lighting, and bespoke furniture. These elements impart a serene, de-cluttered environment for the guest to feel as soon as they walk in. Upon exploring further, a hidden door leads guests to the lounge and cinema room. Unlike its somber interiors, this space has a colorful, maximalist design. With bright custom mahjong sofas against the dark backdrop acoustic cladding and ceiling and desaturated nature-inspired wallcovering, this space provides an opportunity for escapism for its guests. Two additional pavilions below the main building built upon the expansive land serve as an open gathering space. It consists of four guest bedrooms, each en-suite bathroom fostering connections with nature, with open sky bathtubs or outdoor tropical showers. Bathing spaces with clutter-free customized washbasins made of terrazzo and open-air bathtubs.
Challenges - Due to the global pandemic, project management on a complex site like this required precise monitoring to maintain the highest standards and ambitions. The planned extension of the construction timelines around COVID-19 with virtual reporting helped in maintaining the smooth progress of the site work.
Sustainability - The goal of the project lies beyond its purpose as a wellness-entertainment retreat. For Stage 1, a hybrid solar system will help attain energy efficiency with this, the global footprint of the property is also being analyzed and monitored. For Stage 2, water supply from the existing water well supplements is utilized in the functioning of the resort. All the grey water goes through treatment tanks and is used for gardening. The harvested rainwater too will be treated before domestic use. This design perfectly executes the structure by taking advantage of the site's environmental and climatic context to reap its best value for sustainable results.
▼项目更多图片
客服
消息
收藏
下载
最近





























