查看完整案例

收藏

下载

翻译
Architects:CAW Arquitectos
Area :3767 ft²
Year :2021
Photographs :Pablo Casals
Lead Architect :Rodrigo Werner Sánchez
Associate Architect : Juan Pablo Cacciuttolo
Counterpart Minvu : Miguel Humire Flores, Francisco Lizana Carvajal
Architecture Project Development : Domingo Bravo Acuña, Matias Martinez, Valentina Polanco
City : Mejillones
Country : Chile
The Mejillones Community Headquarters project was born after the “I want my neighborhood” program, an initiative developed by the Chilean government to improve the life quality of more than 300 vulnerable neighborhoods throughout the country. This popular meeting space corresponds to a project prioritized by the same residents of the Salvador Allende villa. After years of negotiations, they managed to obtain the land strategically located at the head of their neighborhood.
Keywords · Neighborhood, Urban regeneration, Social architecture, Public space, Chile. The Salvador Allende villa is located on the outskirts of the city of Mejillones, a town on the coastal plain, 65 kilometers north of the city of Antofagasta, in the middle of the Atacama Desert. Historically, Mejillones has been related to strong mining activity, since it was a shipping port for different products since the XIX century. In recent decades, industrial activity has intensified with the installation of coal-fired thermoelectric plants, among others, which are constantly polluting the sea and the air by the use of hydrocarbon spills and particulate material resulting from combustion. Therefore, Mejillones has been declared a sacrifice zone, leading residents from different areas to group together and take coordinated actions against the extractive industry. In this context, a space that works as a meeting point for the community, that also works as an area to do their daily activities and social interaction, appeared as urgent. These gave rise to creating a neighborhood council and its role to solve problems with authorities (as seen on Decree No. 58 of 1997, about neighborhood associations and community organizations).
Skins and good weather. In addition to the environmental problem, given its desert climate, Mejillones presents strong solar radiation and winds from the SW that sometimes carry particulate material and dust. This is why the proposal infrastructure raises the idea of multiple skins-layers that deflect and filter the wind, in addition to providing shade. A perimeter of intermediate spaces is formed, ventilating and protecting from the sun, working as patios and circulations, taking advantage of the good weather of the coastal desert, with temperatures above 15° all year.
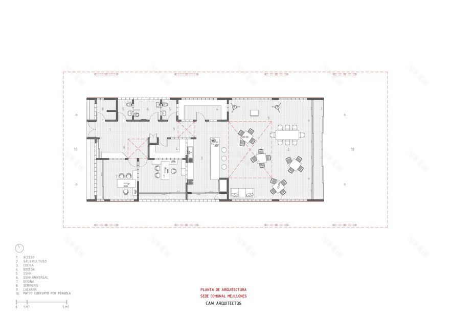
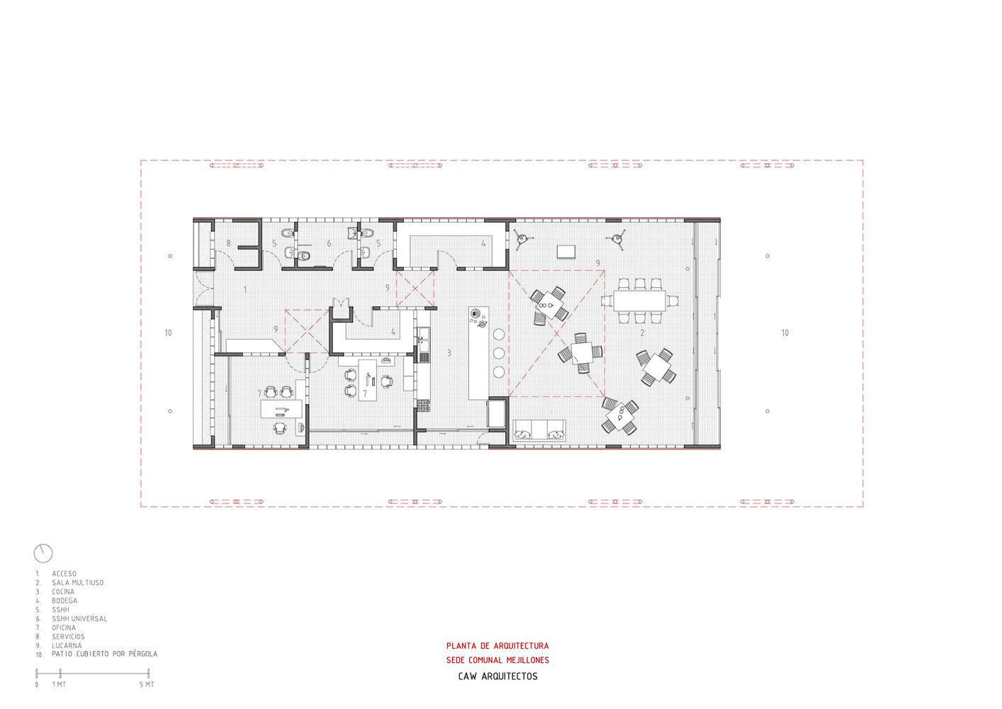
Relationship in the neighborhood. One of the most relevant points discussed with the community was the location and orientation of the multipurpose room. Given the experience of the neighbors with this space, the requirement was to move it as far as possible from the nearby houses and orient it towards the west, where there is no presence of homes. This is because multiple meetings are held during the week, especially at night, after working hours. These meetings involve workshops with music that creates noise levels which are not compatible with residential areas. In addition to reorienting the space towards the other side of the town, the offices and bathrooms were distributed in between, generating an acoustic buffer.
The Lighthouse and the bioclimatic atrium. The building, presenting a strong use at night, worked on the idea of a large skylight as a lighthouse projected towards the neighborhood. At night, when the headquarters are in activity, they reflect the interior light, warning the neighbors and inviting them to participate. With daylight, the skylight works as a bio-climatic atrium by opening its windows in altitude, generating cross ventilation that helps with the cooling, and providing additional overhead light to the multipurpose room.
The red color of the facades was chosen in line with the urban language of the city, since it is present in most of the public heritage buildings, such as the municipality, the maritime government, and the library. The diagonal wood as “Treillage” and the brass correspond to materials used during the saltpeter mining era in the region. Finally, the concrete block responds to the most economical and available material in the region, which is installed on the edges and performs the function of the lattice.
As the second stage of work, it is contemplated to use the continuation of the property located to the north "arrowhead" as a small park and community garden, which will contribute to increasing the level of freshness of the place, consolidating the desire of the neighbors to create an "Oasis community”.
▼项目更多图片
客服
消息
收藏
下载
最近



































