查看完整案例


收藏

下载

翻译
Architects:CAW Arquitectos
Area :180 m²
Year :2016
Photographs :Nico Saieh
Collaborators : Ignacio Urrutia, Diego Manzo
Structure : Alberto Ramirez C.
Author : Rodrigo Werner S.
City : Limache
Country : Chile
The Alto de San Francisco House corresponds to a weekend home, located in the hillside of The Andes mountain range near the Alto San Francisco valley, at a height of 1555 meters over the sea level.
The house is located in the south hillside of the Valley. From this point it's possible to obtain excellent views to the Mochoen Hill, the river and the San Francisco valley, as well as the summits of the Nevados 3 Puntas.
The weather condition was considered the starting point for the project. The strongly contrasted weather between summer (+34ºc) and winter (-10ºc) and the lack of natural light in the cold season due to the shadow produced by the hills and mountains that surround the valley.
One of the most important requests of the family was to make the most of the views down the hill, where the river and the valley can be appreciated at a close distance, and in a far view it's possible to appreciate the Chacabuco mountains and the Aconcagua valley to the south. In this way it was possible to propose a galzed facade to the south (views) and large windows in two levels to the north (light). The windows are designed to avoid the entrance of direct sunlight during summer but taking the most advantage of the natural light during winter.
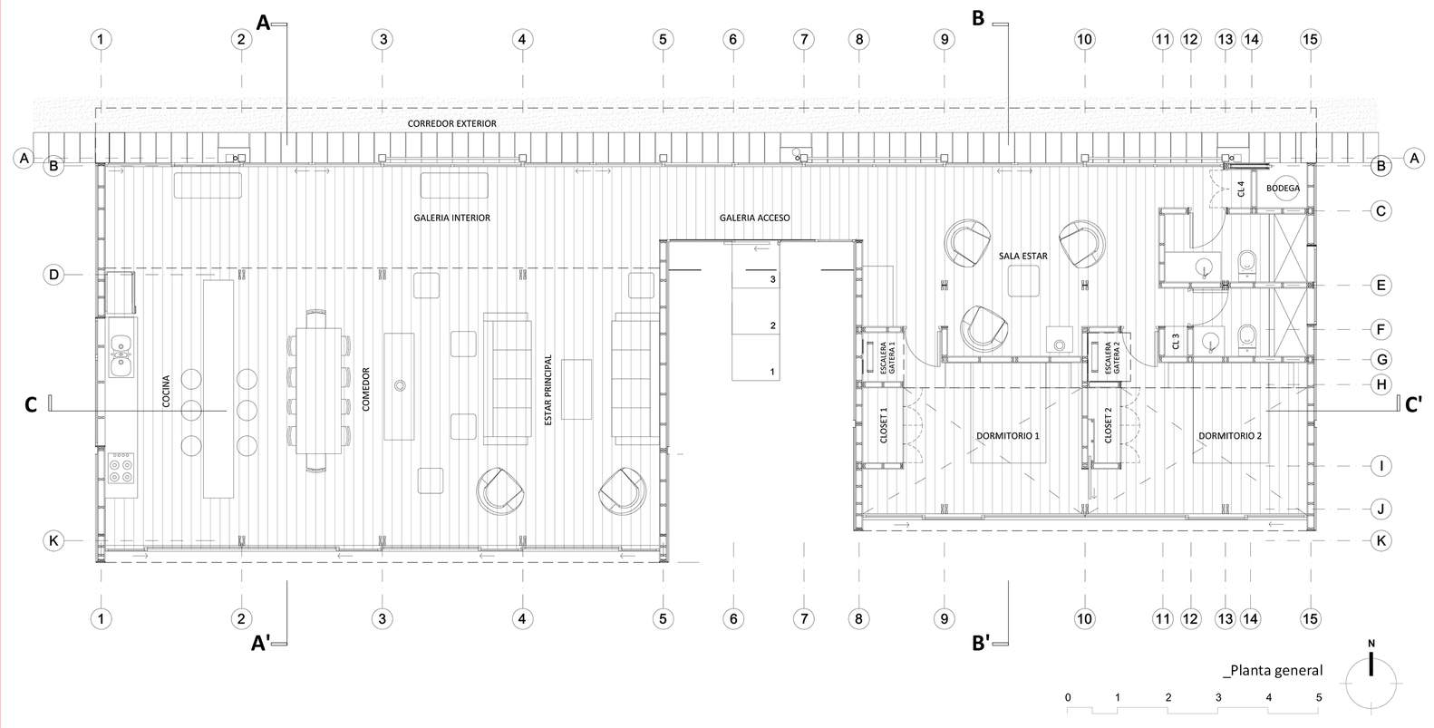
Two pavilions are proposed according to the programatic layout of the spaces. The east pavilion contains the bedrooms, family room and the bathrooms. Bedrooms will take advantage of the double height of the windows to the north, using those as attics and viewpoints of the snowy summits. At the same time, natural lighting is allowed to generate solar radiation during winter. The west pavilion is proposed as a big space for the family to gather.
The two pavilions are connected by a northern corridor which contains the main access and also serves as eaves for bioclimatic control.
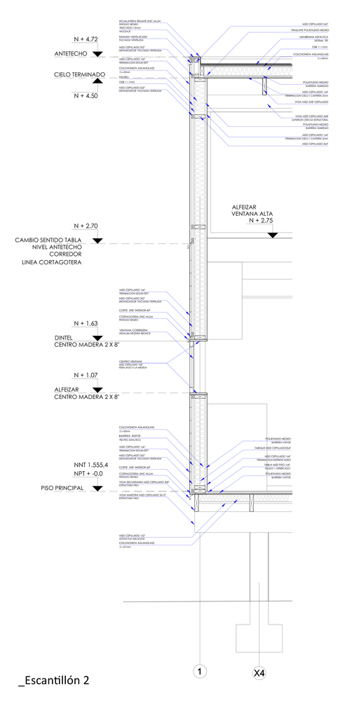
The materiality corresponds entirely to pine wood MSD L=3.2m in diverse formats and sections.
The roofs are designed with a minimum slope, structured with trusses of high altitude that accumulate snow in winter, which is used as contribution to the thermal insulation. The snow is drained through open channels included in the eastern and western facades of the pavilions.
▼项目更多图片
客服
消息
收藏
下载
最近































