查看完整案例


收藏

下载

翻译
Architects:Bojaus Arquitectura
Area :880 m²
Year :2021
Photographs :Montse Zamorano
Manufacturers : FocusFocus
Lead Architects :Ignacio Senra, Elisa Sequeros
Structure :Bernabéu Ingenieros
Technical Architect : Ignacio Buzzanca
Collaborator : Jorge Gabaldón
Installations : Valladares
City : Madrid
Country : Spain
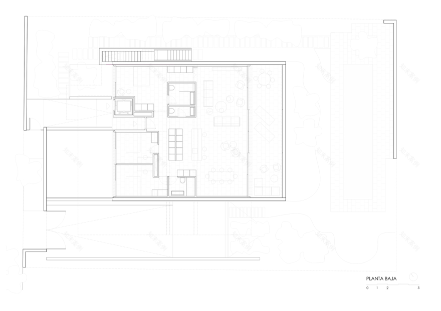
Located in a suburban area of Madrid characterized by single-family houses, the 800 sq. m. plot and urban regulations allowed the construction of three semi-detached houses. Instead of this, a three-story building with one house per floor is proposed. Compared to the characteristic semi-detached houses of the neighborhood, with small floor areas and organized in three and even four floors, this building alternatively proposes spacious houses organized on a single floor with large terraces, XL windows, and a shared garden. Therefore, circulation and server spaces are eliminated (stairs, corridors, distributors, and foyers) and the entire surface is gained for living areas.
The project develops a generic model for house stacking in which each house occupies the entire floor of the building. Each house displaces and rotates from the position of the one below, generating a series of terraces that spiral up, avoiding looking down the one immediately below. The communication core is fragmented into an elevator that passes through the houses and an exterior stair that surrounds them as it ascends. These two elements vary their position on the different floors due to displacements and rotations. Each house is therefore different. Although they all share the same typological scheme, they are adapted to their specific position within the complex.
The structure made of exposed concrete slabs and walls is solved without pillars or supports apart from the outer envelope. The outer case is therefore the whole structure, obtaining free plans of 13.5x13.5m. The walls, which constitute the facades, cover the span functioning as XL beams. These walls, that counterbalanced their direction on each floor like a house of cards, ensure the stability of the whole building. The slabs thus rest on their four sides (two supported and two hung from the walls of the upper floor). Two beams divide the plan into 3 bands and complete the structure. It is in fact the structure that, in addition to determining the spatial configuration of the terraces and the whole volume, determines the functional organization of the dwellings. The central strip delimited by the beams includes all the services, hiding mechanical facilities above a wooden technical ceiling. The two outer bands arrange bedrooms and living areas respectively, allowing concrete slabs to be released from ceilings and facilities, and recovering the whole 3m. height.
▼项目更多图片
客服
消息
收藏
下载
最近


























