查看完整案例


收藏

下载

翻译
Architects:Maly Krasota Design
Area :70 m²
Year :2020
Photographs :Dmitriy Sergienko
Lead Architects :Krasota Iryna, Maly Oleksandr
City : Kharkiv
Country : Ukraine
Maly Krasota Design studio has developed a project for a new flower cafe in Kharkiv - ARKA flower shop - a place where you can not only buy a bouquet, choose the decor for your home, but also just drink coffee. The name "Arka" (Eng. “arch”) – came from the first flower shop, which was located in Kyiv, literally in the arch - the passage to the courtyard of the building.
Therefore, for the new store, it was decided to use the shape of an arch in the interior elements. Showcases for decoration, mirrors, and decorative panels have been specially developed for this. The store is located in the basement. And it was necessary to completely get away from the feeling of the dungeon. Space should be light and airy despite the lack of windows and natural light.
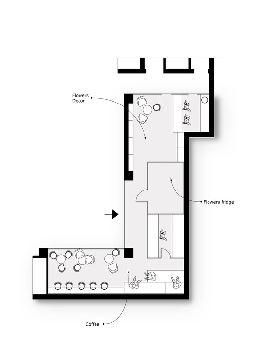
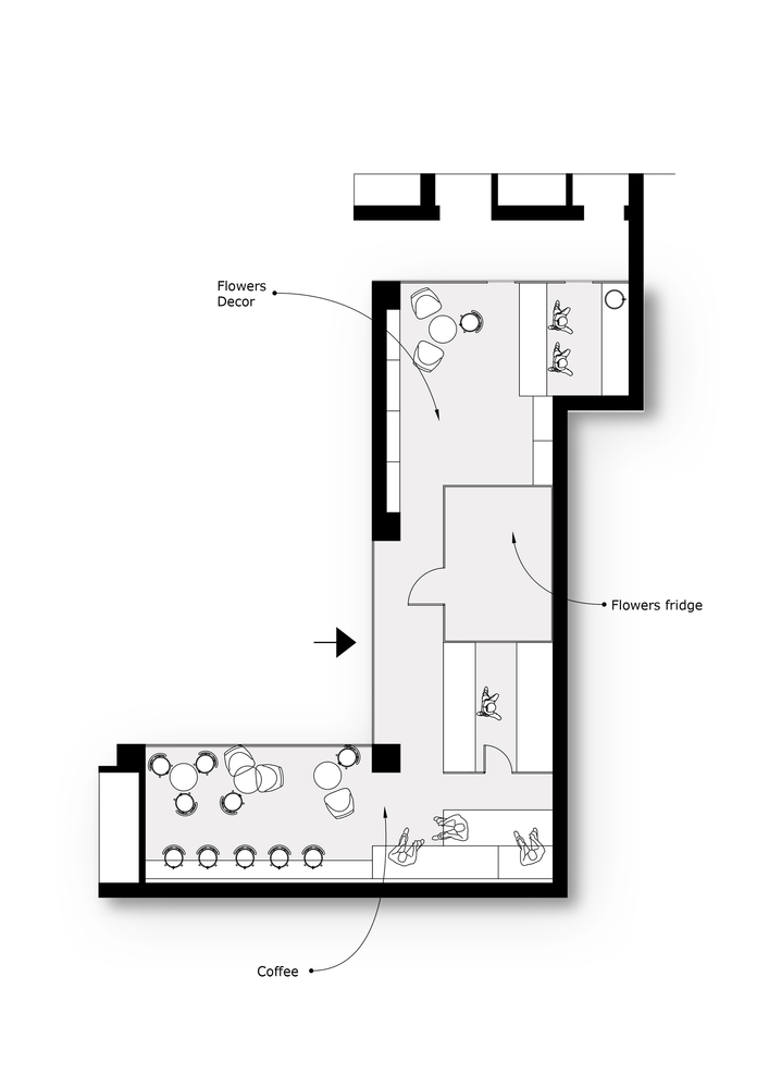
The layout is quite simple and consists of two zones - a flower and decor shop and a coffee shop. Color range - pink-beige, with nuanced transitions between materials. One of the main attention-grabbing elements of the space is the flower refrigerator. Located in the middle of two zones, at the entrance, this refrigerator is made in the form of a greenhouse with stained-glass windows - in the elements of which there are also arched elements. The basis of the furniture elements is taken from simple geometric shapes: cube, cylinder, and circle. For example, an additional seating area for the cafe is made of pink cubes.
The furniture was specially designed and selected so that it could be freely moved. And space could be transformed for holding masterclasses and special events. A variety of ball-shaped pendant lights have been used for lighting. And also a lot of furniture lights and neon signs. That made the space filled with light and enhanced the decorative effect of the area.
▼项目更多图片
客服
消息
收藏
下载
最近
























