查看完整案例

收藏

下载

翻译
Architects:DG Estudio
Area :98 m²
Year :2020
Photographs :Mariela Apollonio
Design Team : Isabel Roger Sánchez, Daniel González López
City : Valencia
Country : Spain
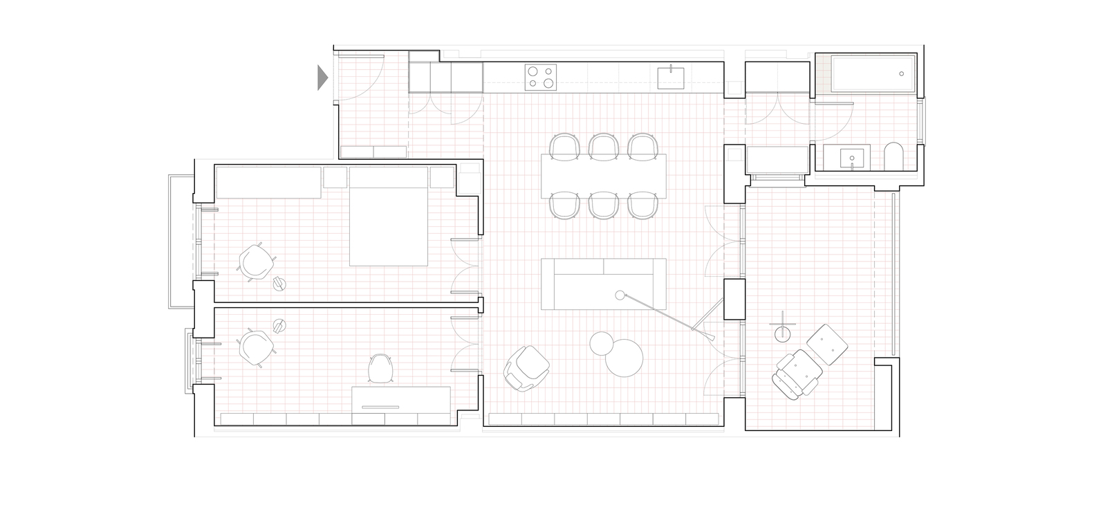
Creating a new, more functional, open, and bright distribution was the main objective of our intervention. The house is located on the top floor of one of the types listed buildings of the El Cabanyal fishing district that have managed to maintain their original essence despite the passing of the years.
We create a house where the height changes depending on the spaces and their importance, the section work being fundamental in the development of the project. The house is made up of a series of spaces that surprise us with their changes in height when we walk through it. The central space whose maximum height is close to five meters is the most important space of the house, the day area. A large modular Multistrux bookcase, designed in 1961 by the Spanish firm Multimueble presides over the living room, which makes the books and personal objects of the writer that will inhabit the house the protagonists of this large space.
From this room where we find the kitchen, living room, and dining room we can access the rest of the spaces. Two materials stand out in the performance, the wood and the reddish-toned ceramic material that accompanies the sequence of heights with its changes of direction.
▼项目更多图片
客服
消息
收藏
下载
最近






















