查看完整案例

收藏

下载

翻译
Architects:Vertentes Arquitetura
Area :283 m²
Year :2017
Photographs :Leo Giantomasi
Sustainability :Ecocasa Tecnologias Ambientais
Structure :GEPEC
Constructor : Fernando Nishida
Translation : Gabriel Kuajara
Architect In Charge : Adriano Couto
Team : Rafael Misato, Denis Comandule
City : Piracicaba
Country : Brazil
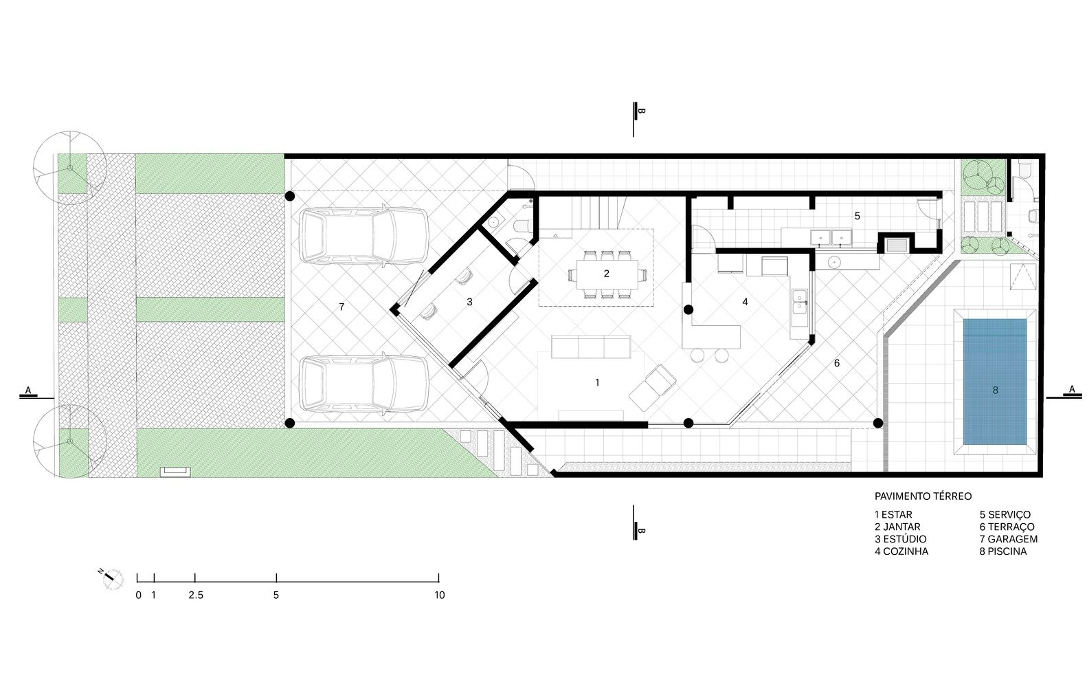
In recent years, a residential typology knew as "condo standard" has become commonplace in Brazilian interior cities. Restrictive internal codes of construction regarding setbacks, pavement numbers, and construction techniques, force the adoption of similar design concepts, which is reflected inhomogeneity that sometimes is poor of lines and styles. In this residence, located in the city of Piracicaba (160 km from São Paulo), the initial scenario was similar: narrow terrain, need for wide backs in all directions, impossibility to enjoy the rooftop as a visitable terrace, obligatory lateral walls, among other rules. Initial dialogues with clients (a newly married couple) pointed to a house following more practical than extravagant architecture. They idealized, above all, a comfortable, well-ventilated and illuminated house, with a good distribution of rooms, favoring the integration of spaces.
Designing a house that respected these initial parameters, observing all the norms of subdivision regulations, without succumbing to an extreme aesthetic or to non-orthodox constructive solutions was the challenge of this project. How to equalize these guidelines without falling, at the same time, into a common ditch in terms of architecture and constructive solutions? Basically, this project was given a sense of movement. Something able to counteract the rigidity of the obligatory setbacks and the orthogonal lines of the neighboring constructions, giving natural personality to the house. On the ground floor, where the living and leisure rooms are located, the most relevant masonry sets were rotated at 45 angle-degree, avoiding overtaking the projection of the upper pavement or to disengage from the structural (orthogonal) mesh.
This allowed creating a dynamic sense for the facades while generating interesting situations regarding the distribution and communication among internal spaces. The second floor, where the sleeping area is located, constitutes a block of perpendicular lines built on the threshold of the lateral and frontal limits of the terrain, incorporating the roof of the garage. The rigidity of the straight lines, in this case, was intentional, facilitating the distribution of the upper rooms and also the progress of the construction work, seeking a geometric contrast with the ground floor. The concept of movement for the second floor was incorporated through the movable slatted panels, installed on the balconies, facing external masonry.
Made of aluminum, they allow light and privacy control, as well as giving the facades prominence in terms of movement and color. To fulfill the clients’ wish for a light and airy house, large window, and door spans were designed, as well as a rectangular skylight over the staircase. These resources allow the house to be well supplied with natural light and ventilation the whole year. If a clean aesthetic characterizes the house exterior, without adornments, and marked by the strength of the geometric volumes, the internal aesthetic was a result of an active collaboration from the clients during the specification phases. Defined in common agreement, materials and color tones followed the clients’ personal tastes, bringing the project closer to the construction initially desired by the owners.
▼项目更多图片
客服
消息
收藏
下载
最近
































