查看完整案例

收藏

下载

翻译
Architects:Yoshichika Takagi + associates
Year :2020
Architect In Charge : Yoshichika Takagi + Associates
City : Sapporo
Country : Japan
Tohaku Hasegawa’s “Shorin-zu (Pine Trees)” is delicately and boldly drawn with much blank space left on the canvas. It looks incomplete but is very attractive because of the existence of the blank space (ground), on which we can imagine and envision various things that are not actually drawn. The relationship between the figure and the ground in Western art is also a topic close to the above. Lucio Fontana’s “Attese (Spatial Concepts: Expectation)” was made by accurately cutting the painted canvas to create the ground in the figure, building a new relationship between the figure and the ground.
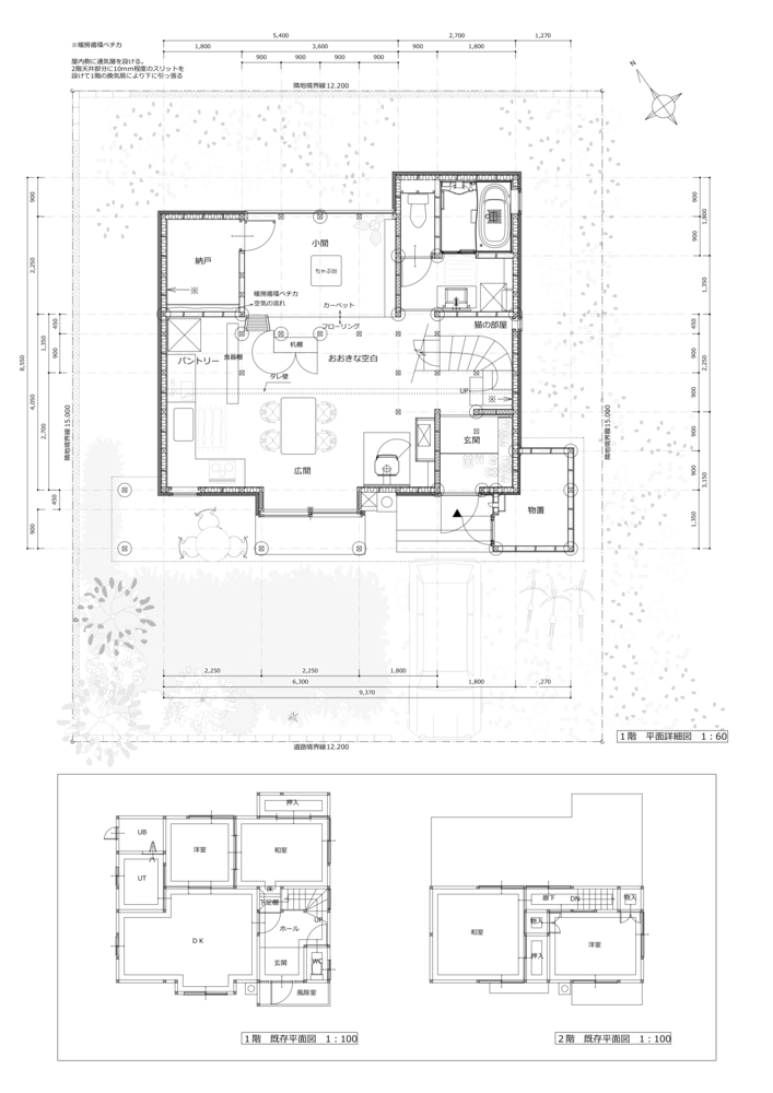
By the way, renovation can be the work of drawing a new picture on a canvas filled with figures. So, is it possible to acquire-dly create a blank space/ground in the existing architecture full of figures (like Fontana)? There is a place name Fukui in Sapporo of Hokkaido, which is derived from the fact that the people of Fukui Prefecture settled there. We renovated a house that was built there forty years ago. The building was pretty small and didn’t have enough space, considering the demands of a married couple and a child (and two cats).
Therefore, in addition to the stairs and the landing, we inserted an R wall that linearly cuts the longer direction of the building so that a 1.5 tatami mat size of stairwell could break open the cramped atmosphere. Then we installed a clerestory on the R wall and overlapped the curved study models to create a mild and uniform light. As a result, the building has gained the light environment that is unique to northern provinces, where there is little change in light and shade that depend on the axis of time.
The whole house has been finished with larch plywood because cats are supposed to sharpen their nails there. The living room that has a low ceiling and a ground window is designed to have a low center of gravity with a low dining table called Chabudai on a carpet. The dining room has a wood-burning stove, filled with energetic lifestyle. In contrast, there is a space with a high ceiling and a long, thin and white R wall that has abstract impression. It has created blank space and made the possibility of being eroded by peripheral activities.
▼项目更多图片
客服
消息
收藏
下载
最近

























