查看完整案例

收藏

下载

翻译
Architects:Dyvik Kahlen
Area :200 m²
Year :2013
Photographs :Antoine Espinasseau
Lead Architects :Christopher Dyvik, Max Kahlen
City : London
Country : United Kingdom
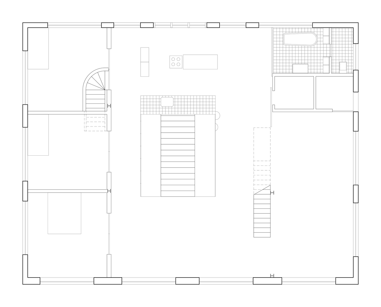
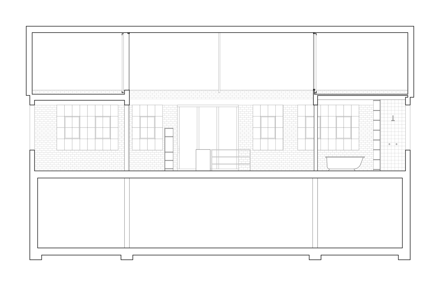
This conversion of a former warehouse into a live/work unit for an artist and his family is overlooking Paddington Old Cemetery in London. Five rooms were created inside the open space on the first floor. A continuous array of windows along all four facades define the quality of this space and set the rhythm of the new rooms, maintaining the light and generous feel of the original space.
The main living area is arranged around a large central staircase that leads up from the entrance on the ground floor. Towards one side large double doors, continuing the sequence of windows, lead to three bedrooms. Towards the other side, a series of columns define the transition to the living area as well as the bathroom and a larder. Two sliding doors are arranged along this threshold which allows you to close or open these rooms towards the central space.
The idea was to create a sequence of different sized rooms that, through their immediate relationship and large doors, let light and views across the entire house while allowing private a cosy moments in an otherwise raw and generous warehouse.
▼项目更多图片
客服
消息
收藏
下载
最近



































