查看完整案例


收藏

下载

翻译
Architects:Pi architects
Area :2650 m²
Year :2020
Photographs :Deed Studio
Design Team : Mozhgan Aafshar, Amene Akbari, Elmira Khani, Hedie Tadayon, Ayoob Abootorabi
Clients : Mr. Attarpour, Mr. Attarpour
City : Mashhad
Country : Iran
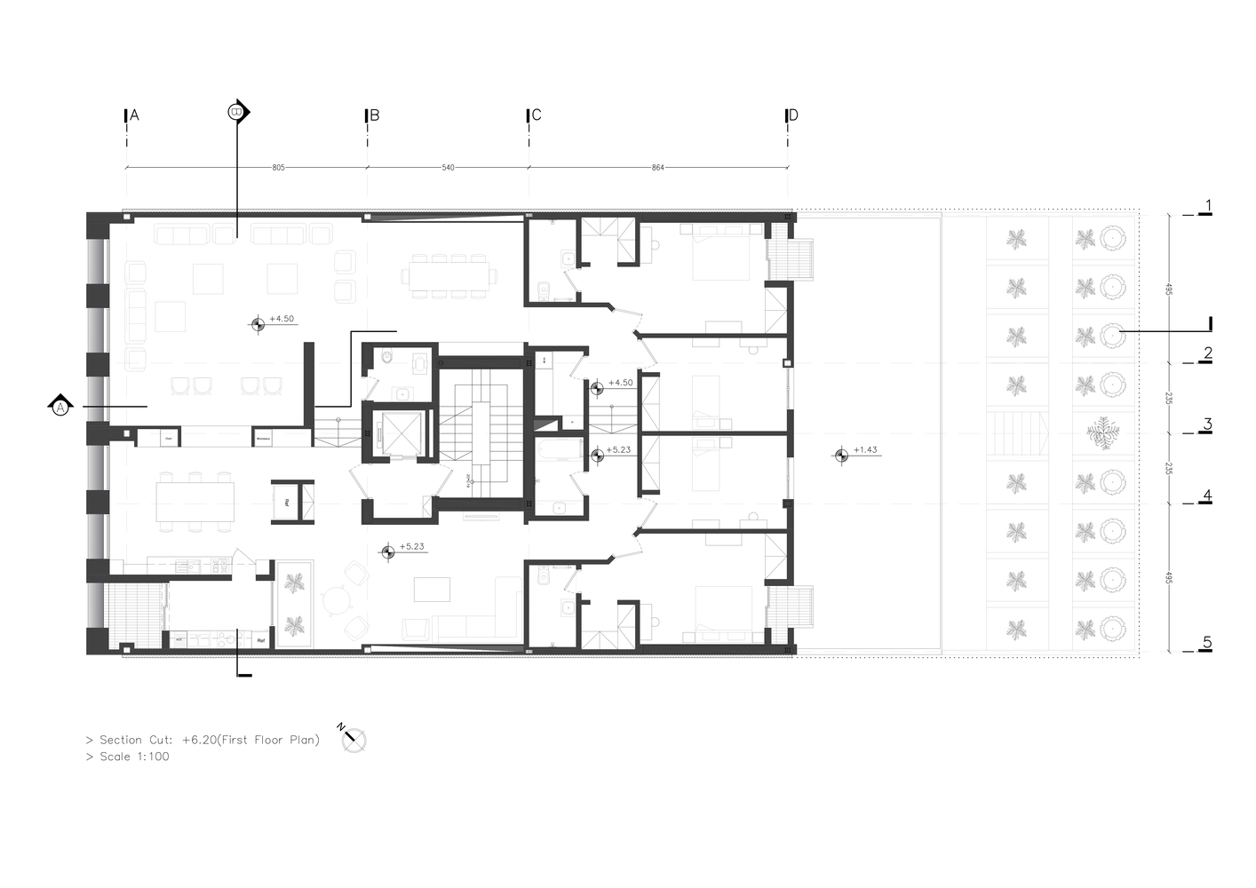
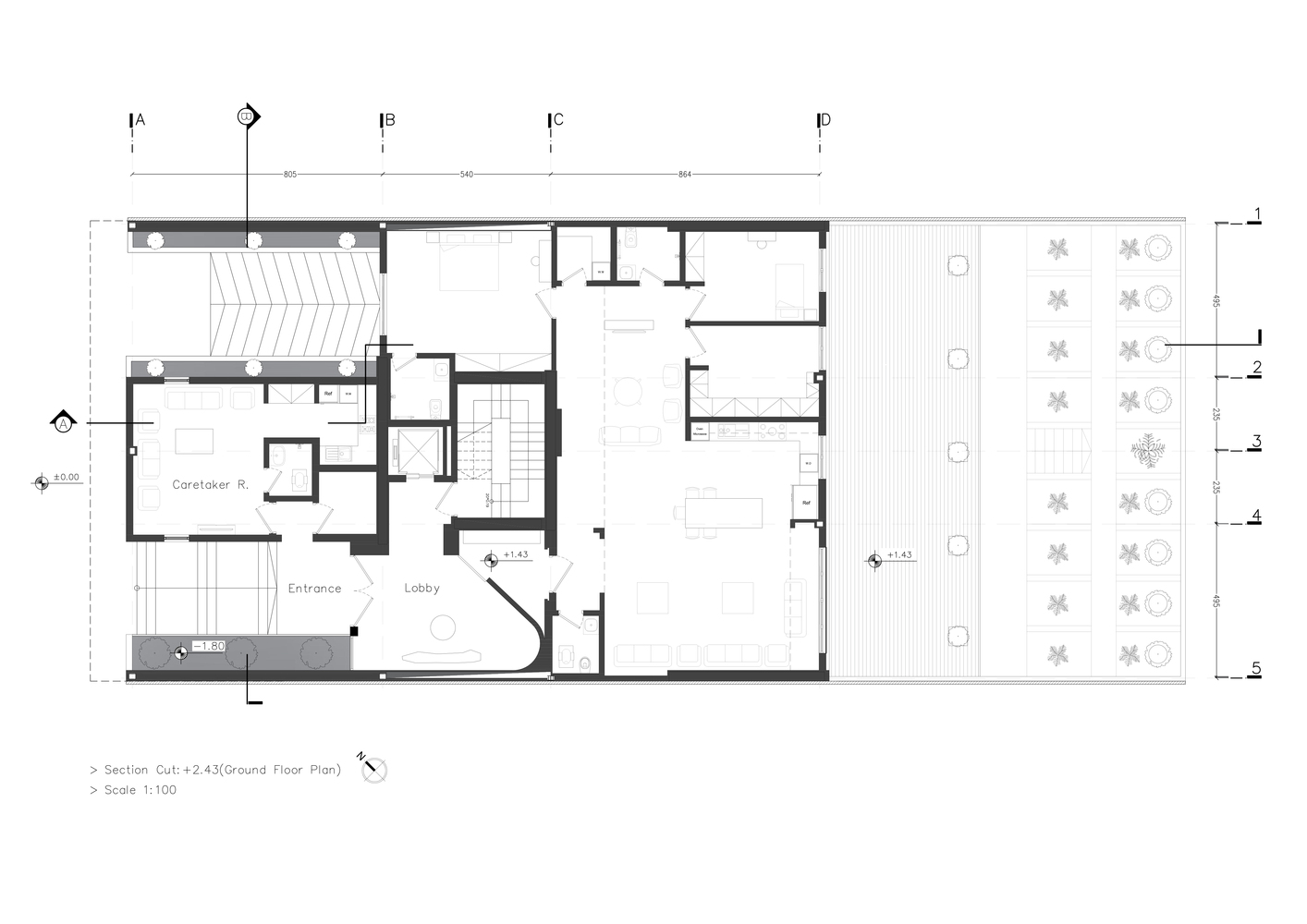
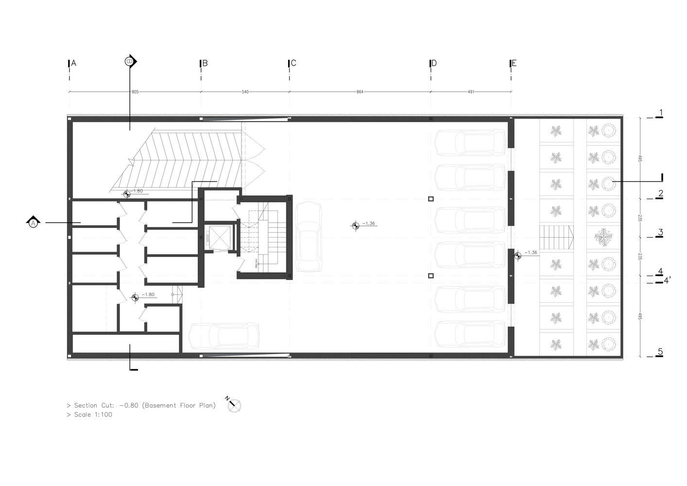
The subject of the project was the designing of a residential unit of approximately 300 square meters area for the parents of a family, and four units of 150 square meters area for children and a possible surplus in the construction license on a 510 square meter land for sale.
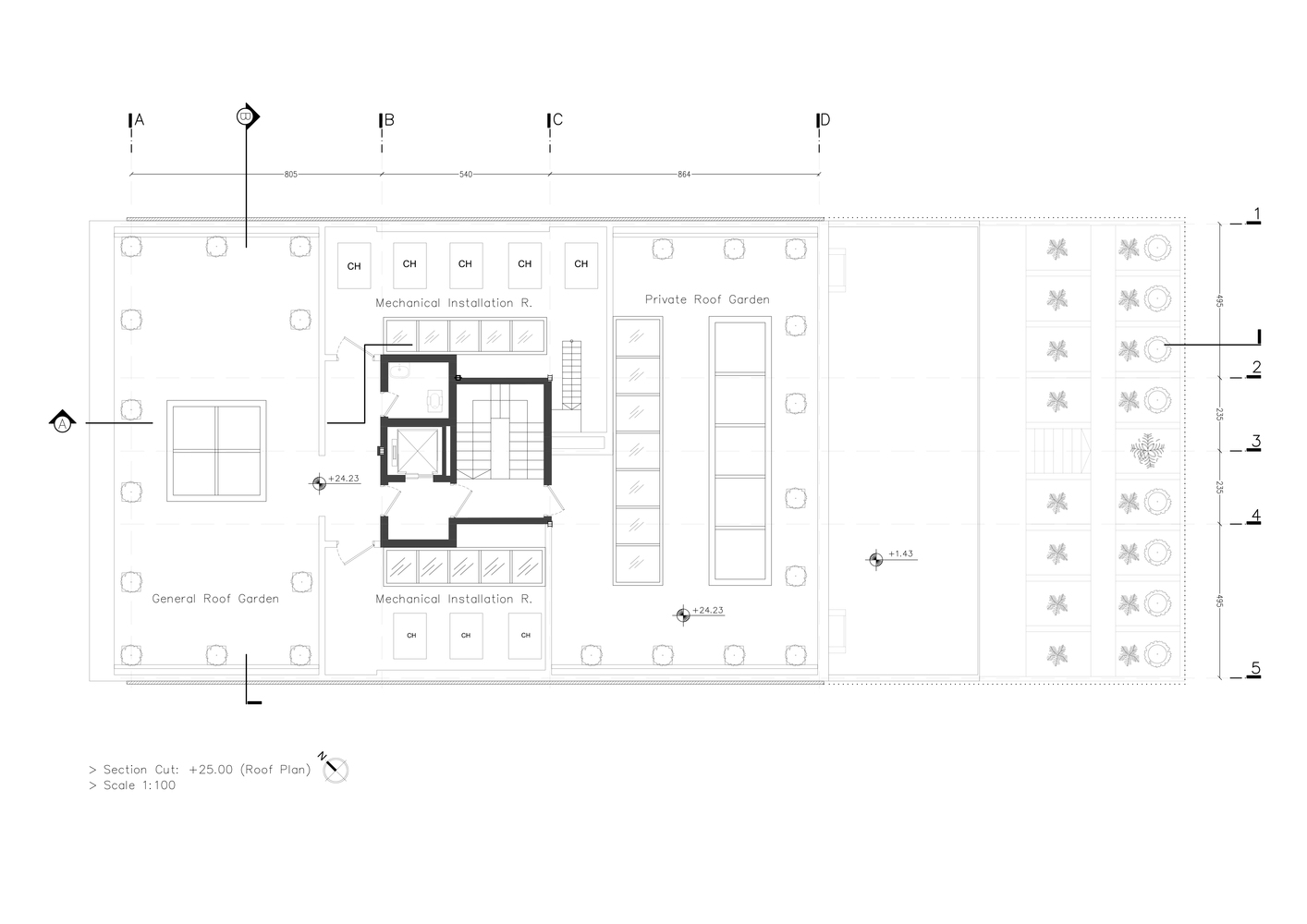
Proper separation of two-unit floors from each other and the rebuilding of a common front space of elevator without damaging single-unit floors were considered as the main design challenges. Therefore, the prevalent pattern of residential apartments of endemic modernism of Tehran in the fifties and sixties, which is known as the “Khorjini” design in Mashhad, was considered as the framework of the project.
Later, in order to reduce this level difference in single-story floors, increasing and decreasing the height of the floors led to the creation of a duplex unit of eighty square meters in the middle of the building with of surplus marketable space which compensated for the reduction of the middle void area in the yard view and the increase of the common front space of the elevator.
Afterwards an attempt was made to recreate this above mentioned pattern by applying the other parameters of the current modern apartment pattern such as designing semi-open space in floors, positive and negative spaces in facades, and separation of private and public spaces in architecture plans.
▼项目更多图片
客服
消息
收藏
下载
最近
















































