查看完整案例


收藏

下载

翻译
Architects:Atelier 106
Area :1378 ft²
Year :2020
Photographs :Do Mal o Menos
Lead Architects :Marta Galvão Teles, Filipa Taborda, Ana Lucia Santana
Construction : Cayabima - Marco Sampaio
Marazzi Ceramic Coatings : JRBotas - Tiago Botas
Kitchen : koklatt miguel - Miguel Veiga Santos
Engineering Specialties Hydrostructures : Hugo Campos
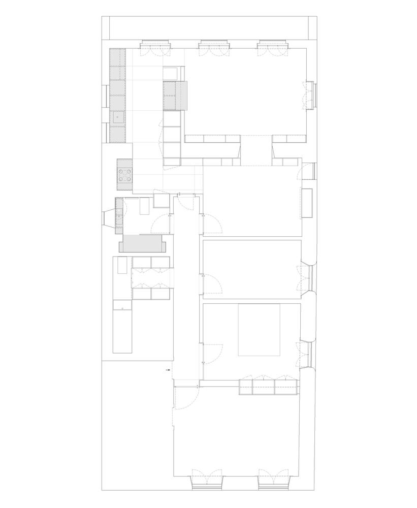
Program : Apartamento T3
City : Lisbon
Country : Portugal
The Project House Campo de Ourique aims to recover an apartment that, thanks to the development of the city and its modern requirements, saw the rise from both sides of two new buildings with garages. At that moment the very history of that neighborhood was unknown, demonstrating clear marks of the times of construction and metamorphosis that define it.
The remaining heritage showed serious signs of prolonged deterioration and illustrated a time and a family individuality that wanted to be preserved and transported to the new generations, but with the urgency of a profound intervention that would stop its degradation.
The purpose of the project was to enable an alteration that enhanced the existing one, namely the ceilings worked, the decorative frames between the ceiling and the walls, or the old crockery cabinets, thus managing to recover and establish a reading with new elements that emerge discreetly, but essentially such as the iron that reinforces the structure, the carpentry of right lines and others. With the necessary autonomy, the new design merges into the logic of the whole, of the house.
It was chosen to redo all the walls and pavement, recovering the peculiar materials such as the pinned running board and the stucco worked with molds made on site and the lioz stone. The spaces became wider and more fluid, inviting a more contemporary experience.
▼项目更多图片
客服
消息
收藏
下载
最近































