查看完整案例

收藏

下载

翻译
Architects:Werkt Studio
Area :182 m²
Year :2020
Photographs :Asbjørn S. Falck
Lead Architects :Tobias Mürsch, Miroslava Casas
City : Værløse
Country : Denmark
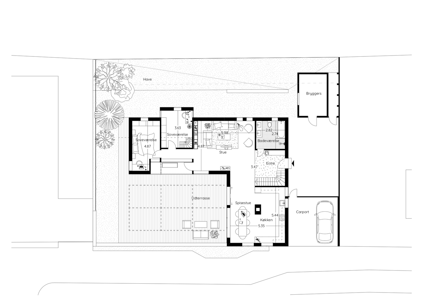
This house from the ’80s is located inside a residential area on the outskirts of Copenhagen. The family of 5 not only needed more but also better spaces, so they came to us for an extension and a renovation of their home. What first inspired the project was the placement of the house, oriented towards the south, looking over a lake and surrounded by nature. After trying various volumes and shapes for the extension, we came up with this succession of Birdhouses that decrease in size as you moved away from the main house. The idea was to divide the entire house into different houses allowing their children to visit and stay without disturbing the natural flow and functionality of the house.
The house had already an extension, which was demolished. The program required the addition of several rooms and renovation of the existing spaces. As you come in, you are received by a spacious entrance and an overall look of the living room and the big triangular windows. The kitchen is placed directly towards the terrace, which is accessed by a 4-meter folding door.
The idea was to open the kitchen and living room to the south making a wooden terrace and allowing the outside- inside line to blur. Following down the living room, a small corridor with windows from floor to ceiling takes you to two sleeping rooms, one of them with a loft. The second floor features the master bedroom with a bathroom and a sauna.
The architects also designed the inbuilt furniture and staircases with additional storage. The materials used for this project directly related to the area, surrounded by similar houses, all built the same. Made out of yellow bricks, the main house remained untouched. The existing brown roof tiles were changed to yellow, allowing it to stand out and be seen from the distance. Following the Birdhouse concept, the extension was cladded in shingles, giving it a light and cosy look.
▼项目更多图片
客服
消息
收藏
下载
最近


































