查看完整案例

收藏

下载

翻译
Architects:Hadi Teherani Architects
Area :24500 m²
Year :2019
Photographs :Jörg Hempel
Lead Architects :Christian Bergmann
City : Frankfurt am Main
Country : Germany
The complex urban repair performed in an exclusive location in the heart of Frankfurt shifts its surroundings to a new dimension. Not least due to a subtly attuned canon of impressively profiled three-dimensional façades and the unusual density and interlinkage of new urban functions. Not only gastronomic options, retail businesses, and around 60 apartments can be found here: above and beyond them there are residential offers for short- and long-term visitors to the newly value-enhanced banking metropolis.
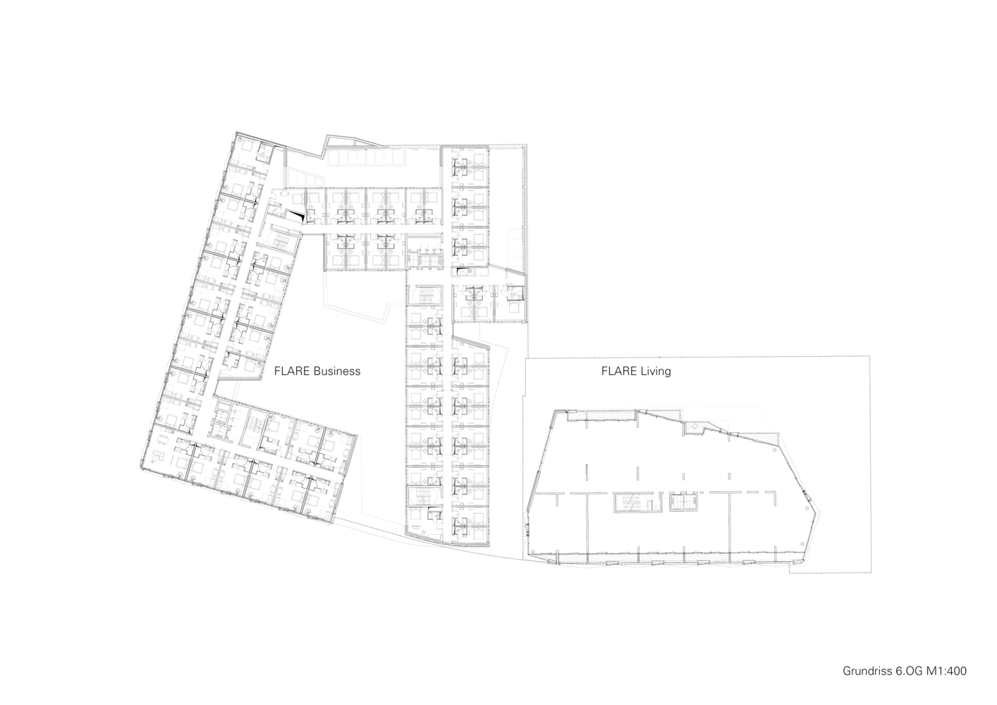
The ensemble consists of two structures, FLARE Living and FLARE Business atop a mutual three-story underground car park. In an urbanistic sense, the project uses a block perimeter development in the direction of Eschenheim Tower, a former city gate, to include a key traffic axis. The residential building is stationed as a “solitaire” towards the PalaisQuartier complex, thereby creating new pedestrian thoroughfares to the MyZeil shopping mall. At the same time, the well-coordinated building composition caused a new urban quarter with an address of its own to arise. Though the draft draws on existing stylistic elements, it interprets them anew.
One characteristic factor is the three-dimensional façade structures made of large-scale ceramic elements. Their dynamic geometry results from the interplay of varying protrusions and recesses with sharp edges and slanted areas, as well as an interstitial alignment that, depending on the outdoor viewing angle, has surprising effects. This composition gives the surfaces a special depth which, when seen from indoors, creates the desired high quality to linger.
The constructively demanding façade was realized by Hadi Teherani Architects in cooperation with the Central Technical Division of Ed. Züblin AG and the firm Lithodecor. Extensive prefabrication proved to be a substantial factor in the resulting success. Each segment is produced from eight individual pieces that were suspended, aligned, and affixed at the factory. Assembly at the construction site occurred “straight from the truck”. This type of prefab production decisively increased the quality of the workmanship.
FLARE OF FRANKFURT has been certified “DGNB Gold” by DGNB, the German Sustainable Building Council. The heating supply takes place via district heating from the city and waste heat recovery.
▼项目更多图片
客服
消息
收藏
下载
最近


































