查看完整案例

收藏

下载

翻译
Architects:Atelier Starzak Strebicki
Area :86 m²
Year :2016
Photographs :Mateusz Bieniaszczyk
Manufacturers : Hansgrohe, Duravit, Nemetschek, Secto, Zangra, AQform, Adobe, Franke, HIDROBOX, Trimble, WinckelmansHansgrohe
Design Team : Jola Starzak, Dawid Strębicki, Katarzyna Leśniewska, Anna Śmierzchalska, Vera Reimann
City : Poznan
Country : Poland
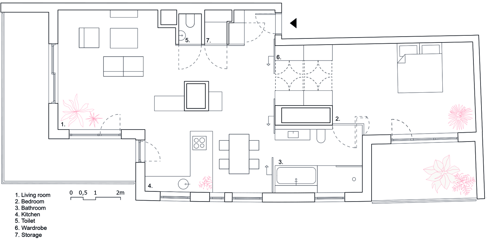
The apartment with a view located on the seventh floor is a result of combining two flats. Its space is divided into two main and at the same time interpenetrating zones: intimate and daily.
The first one includes a bedroom, a bathroom, and a wardrobe, the second one embraces a living room, a kitchen, a dining room as well as an entry zone together with a toilet and a utility room. Mobile walls in the form of sliding doors allow the user to configure private and public spaces depending on his/her changing needs.
The apartment is defined by muted colours that create a background for particular elements of the interior. The atmosphere of the apartment is completed by an ashen floor as well as the blue, pink, white, and green mosaic arranged in the spaces of the bathroom, kitchen, and entry zone.
▼项目更多图片
客服
消息
收藏
下载
最近




















