查看完整案例


收藏

下载

翻译
Architects:Nicolas Dahan
Area :280 m²
Year :2019
Photographs :Vincent Leroux, Jean-Luc Guérin
Project Management : Nicolas Dahan, Cyril Magnier, Amélie Rémevier
Project Execution : Actiom, Benoit Bufferand
Wood Engineering : Cesma, Nicolas Dogniaux
City : Soulac-sur-Mer
Country : France
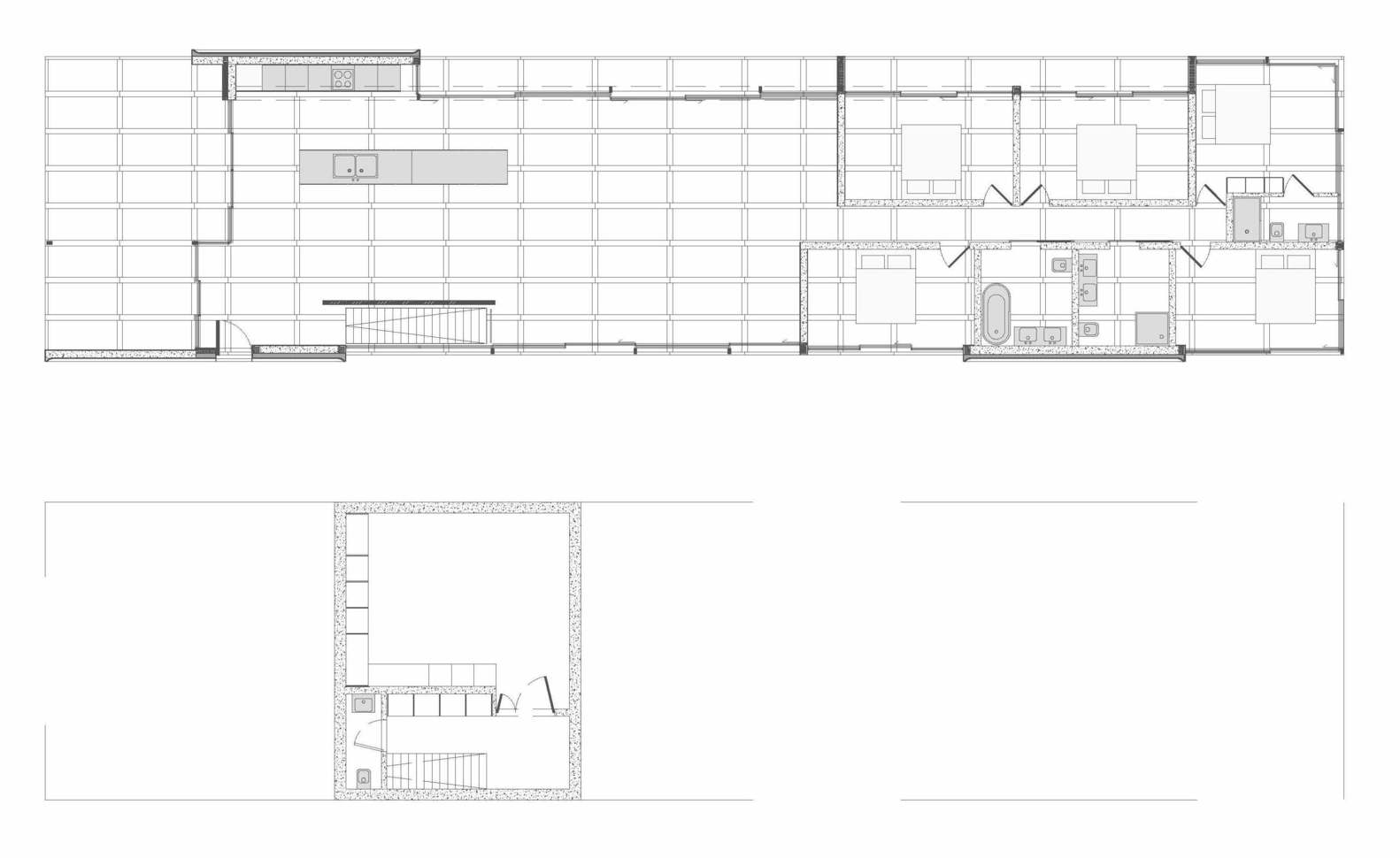
“A space to live and move within the pine forest”. With this 250m2 family home, the French architect Nicolas Dahan signs a see-through haven inviting the beauty of its surrounding environment inside, which is seamlessly built using expert wood engineering techniques. The floor and the ceiling mirror each other’s dimensions, breaking down all notions of hierarchy. Eyesight glides between pine trees and interior perspectives, feet wander with ease from the warm sand outside onto the supple okoume wood flooring indoors.
“To enter the pine forest is to enter the house. The site itself is integral to the architecture. The pine and oak trees provide shelter from strong winds. The ocean, though not visible, is so close that the sound of the surf rhythms the day. Nature runs through the bedrooms and the living room. The house is built where the air flows”, describes Nicolas Dahan. Redefining the idea of the threshold, the architect hasn’t created a traditional front entrance. To enter the house you stride right into the 130m2 living space or into one of the 5 rooms sitting on the 4000m2 pine forest.
The roof is comprised of 136 larch caissons, the floor is made of 136 okoume wood panels, perfect symmetry aligns this architectural sandwich. The main inspiration for space stems from the single-story American villa, and the floor and the ceiling require engineering skills developed by John Lautner’s vision for open architecture.
“We had to install a depot on-site to shelter the construction, the level of precision required to build the roof did not allow for any humidity. The larch has been sanded down to acquire a finish usually reserved to furniture. There are no screws and no apparent nails. The use of shadow joints offers a unique sense of fluidity both inside and outside of the house. The central 16m long beam is worthy of a gymnasium, yet its finishes are done in such a way that it becomes part the domestic space.” explains Nicolas Dahan.
Catching the light is a luxury. “The standard height for sliding glass doors is 2,20m, here they reach beyond 3 meters high. This is a sign of luxury. The magic offered by Brazilian villas that we see in magazines relies on large-scale made to measure glass surfaces. Only 5 contractors in the world are able to offer such large volumes of glass, capable of the lightness of gliding. The result, invisible to the uncultured eye, is unique. The shadows of the pine forest, projected onto the interior wooden surfaces, accompany the inhabitants with different degrees of intensity all throughout the day. The bedrooms and living room make the most of all four cardinal directions, north, east, south, and west.
Luxury comes at a cost and with constraints: holding down a roof that would otherwise fly off as of the first storm. “Two-thirds of the house is built using glass walls that are too light to hold down the roof in heavy weather. We have been obliged to weigh it down with metal and to anchor the house with cement walls. It is the perfect example of the sensitive nature of this type of construction. We have pushed wood and glass to their limits, in such a way that they reveal their strengths and weaknesses. The house is a member of the family in the Japanese sense, a member that must be taken care of.
Wood is a terrific material, it is supple yet ultimately has its weaknesses. For it to become as strong as cement, it must be helped, weighed down, sanded, varnished. Long after construction, the house will continue to live on its own”.
▼项目更多图片
客服
消息
收藏
下载
最近












































