查看完整案例


收藏

下载

翻译
Architects:Fernanda Mejía, uno más uno
Area :1808 ft²
Year :2019
Photographs :Alexis Herrera
Manufacturers : AutoDesk, Cemex, Comex, Perdura, Trimble NavigationAutoDesk
Lead Architects :Omar Almaguer, Hiram Pozaada, Fernanda Mejía, José Jiménez
Design Team : José Jiménez
Engineering : Grupo Constructor Frontal
Consultants : Grupo Constructor Frontal
Collaborators : Fernanda Mejía, Xavier Álvarez Del Castillo
City : Zapopan
Country : Mexico
Building the void.Casa Solares is located in the urban setting of Zapopan Jalisco. A two-storey family house within the Solares residential complex.
With a certain proportion between the adjacent dwellings, the plot lacks privacy towards the street, which is also its main facade oriented to the southwest. This conditioning results in a great opportunity since it determines the design and introverted character of the project, where the architecture opens towards the interior.
The compositional process is based on the simultaneousness of the axes on both levels of the house. The volumetric proposal, based on a contemporary architectural language, consists of the continuity of pure prisms as a starting point; a white cubic volume, on a base of masonry walls. The dialogue between architectural abstraction and tradition.
The apparent simplicity of the white prism increases its spatial complexity in the interior. The geometry sculpted by the path of natural daylight on the main façade results in a transitional atmosphere of interior and exterior spaces, where the intended visuals are established with the silhouette of the tree as a contemplative piece while ensuring the privacy of the spaces.
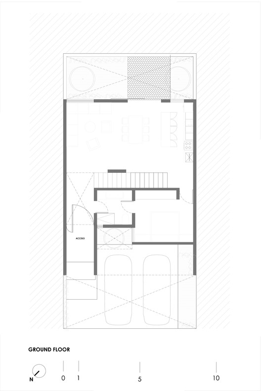
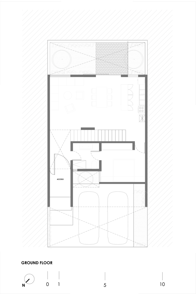
The project consists of 168 square meters of construction on two levels. With a luminous double-height entrance, the day area is located on the ground floor: kitchen, living and dining room connected to the garden providing spaciousness and visual continuity to the most public spaces of the house. This first level also has a studio/bedroom that contemplates the possibility of living in one single level, in case it is necessary for the owners.
The stairs as a sculptural piece are framed by a reinforced concrete wall, favouring the effect of zenithal lights and cast shadows.
The night area is on the second level. The distribution programme gives a hierarchy to the spaces according to the geometry of the house. The master bedroom, with a dressing room and a bathroom, is located at the rear, opening to the northwest to provide lighting and ventilation, while maintaining the privacy of the spaces. Next, there is a small utility room. At the front of the house you will find a bedroom and a bathroom wrapped in the sobriety of the façade.
▼项目更多图片
客服
消息
收藏
下载
最近
































