查看完整案例

收藏

下载

翻译
Architects :estudio AM arquitectos
Area :384 m²
Year :2018
Manufacturers : AutoDesk, Enscape, American Blinds, Cuprum, Dimadec, Grupo Tenerife, Hampton Bay, Helvex, Interceramic, TekaAutoDesk
Lead Architect :Santiago Martín del Campo, Gerala Ángeles
Design Team : Jonatan Torres Vargas
City : Cancún
Country : Mexico
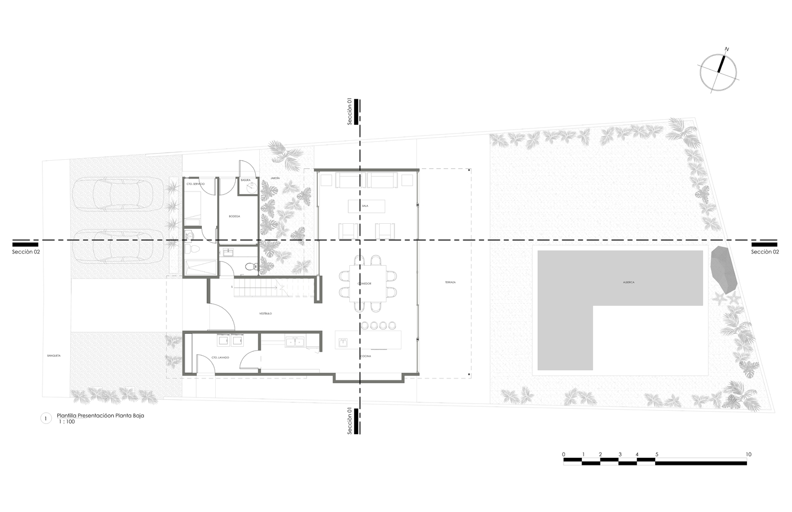
The Golondrinas 34 house was designed with the intention of incorporating the interior public areas with the gardens that provide lighting, cross-ventilation and visuals. The sobriety of colours and the use of few materials reflect a refined design, characterizing the project while letting the users and the vegetation give life to the house.
A rock that functions as the head of the pool can be seen from the access through the lobby. Covered with moss and ferns it gives the garden a feeling of humidity, having a character of a unique element that has been there from before the construction of everything that surrounds it. The kitchen as a social area is integrated with the living room and the terrace in such a way that it promotes the general coexistence of the users of the house in a single space formed by areas of different dynamics.
The exterior lighting highlights the depth of the lot and specific elements of the vegetation. On the main facade, the beam of light is projected towards two stone elements, accentuating the shadows it generates due to its texture. These elements hold the balcony of a bedroom in cantilever. Upstairs as part of the optimization of the surfaces is a TV room, which also functions as an access lobby to three bedrooms, in order not to have unnecessary circulation areas. Each room enjoys the integration and warmth of wood thanks to their dressing rooms.
▼项目更多图片
客服
消息
收藏
下载
最近



























