查看完整案例

收藏

下载

翻译
Architects:Juliana Risso Arquitetura
Area :2019 m²
Year :2019
Photographs :Felipe Araujo
Architect In Charge : Juliana Risso
Project Year : Marcelo Panico
Construtor : Rocha Construtora
Landscape : Alex Hanazaki
Lighting : Lucenera
Structure : Mario Alberto Ferriani e Hugo Ferriani
AC : 3D ar condicionado
Interior Project : Juliana Risso
City : Ribeirão Preto
Country : Brazil
I think flexibility in architecture goes beyond aesthetically functional patterns. The contemporary interior is defined by the mutation capacity of the domestic and in response to such premises, the house is conceived as a holder of multiple overlapping scenarios, which allow the adaptability of use over time to be maximum. An essential house is imagined, in which the service elements are reduced to a minimum in favor of free, open, and flexible spaces. Definitely, the objective is that the house maximizes the opportunities of use so that its inhabitants live as they want and not as the residence imposes.
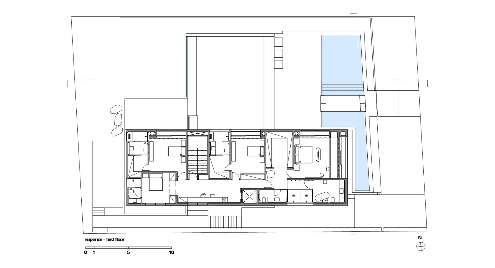
Located in an urban plot of 1000m2, the project consists of a set of volumes that overlap in order to create maximum integration between the environments and the amplitude of the spaces. Garage, storage, and technical areas are located in the underground area, under the projection of the construction, in order to guarantee the maximum permitted occupation for the lot. The house fits into the land and at the same time rises in relation to it, allowing to release the ground floor and middle floor, at the middle level of the land.
The social and leisure areas are located on the ground floor, which opens completely to the garden and the pool, integrating harmoniously with the living and dining areas, bar, and library. The volume brings in its roof the green roof, which efficiently integrates the house into the landscape and works as a sustainable solution for thermal balance.
The upper floor, constructed in exposed concrete, accommodates the master suite, the office, and the children's suites. This private and intimate area has balconies with a view and access to the green roof of the intermediate floor. Thus, the residence makes the best possible advantage of the view of vegetation. This floor stands out from the rest of the house when projecting in a swing-like shape.
From the technical process, it is highlighted the complex details and execution of the engineers in relation to the reinforced concrete structure and of the carpenters involved in the wooden molds for the process of concreting the upper floor.
▼项目更多图片
客服
消息
收藏
下载
最近






































