查看完整案例

收藏

下载

翻译
Architects:ARGE suetil, Soppelsa Architekten, weberbrunner architekten ag
Area :53000 m²
Year :2018
Photographs :Beat Bühler
Manufacturers : AutoDesk, Glutz, Regent, Zumtobel, Adobe, Alucobond, Hamotec, Implenia Holzbau, Kone, Microsoft Office, Pamax, Sanica, Schenker Storen, Schweizer, StoramaAutoDesk
Lead Architects :ARGE suetil - weberbrunner architekten ag + SOPPELSA ARCHITEKTEN
Consultants :Bakus Bauphysik & Akustik
Landscape :Lorenz Eugster Landschaftsarchitektur und Städtebau GmbH
Engineering :Timbatec Holzbauingenieure Schweiz AG, Dr. J. Grob & Partner AG
Design Team : ARGE suetil - weberbrunner architekten ag, SOPPELSA ARCHITEKTEN
Clients : Allianz Suisse Immobilien AG, Implenia Schweiz AG
City : Winterthur
Country : Switzerland
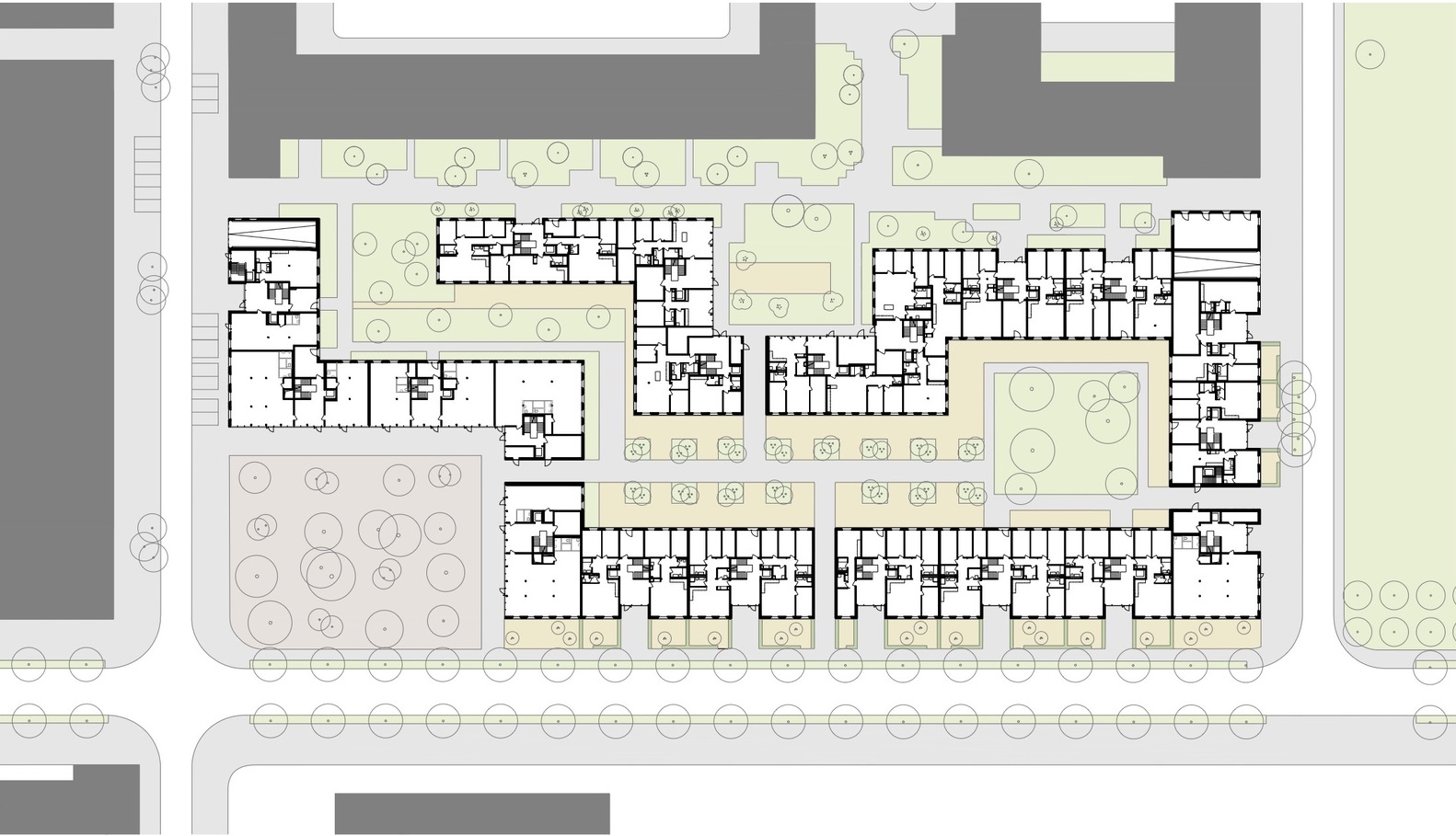
Weberbrunner in collaboration with soppelsa architekten won the commissioned study "Housing development with commercial areas in Neuhegi, Winterthur" in November 2013. According to the tender, around 300 residential units, ground floor public-oriented commercial space, and an underground car park with around 200 parking spaces were to be built on two plots.
The meandering perimeter block figure creates an urban pocket park on Sulzer-Allee, defines an inner courtyard divided into three areas, and forms the final key element in the “hybrid cluster” master planning scheme.
Through the pronounced terracing of the two upper penthouse floors, the building is classically divided into three sections: the extra-high ground floor as plinth, two to three full storeys of apartments with loggias, and the shifting terrace apartments on the fourth and fifth floors. As a result, the building volume is particularly structured and the facades are brought to life. The loggias were reinterpreted; by adding windows, the loggia becomes an extension of the living area with year-round usability. An intermediate climate is created within the insulated perimeter allowing the loggia to be used as an exterior space in summer and as a sunroom in winter.
The basement, ground floor and staircases are constructed in cast-in-place concrete. The remaining floors and exterior walls are built in wood. The facades use storey-high windows of varying widths to subtly animate the building. By slanting the window reveals to the outside, the rooms behind are especially well lit. The floor-to-ceiling proportions resemble French balconies and allow the residents to step directly up to the facade.
180 different apartments - 80 percent rented, 20 percent owner-occupied - and a mix of typologies lends the former industrial site in Winterthur-Neuhegi a new residential character. "sue&till" is currently the largest timber construction in Central Europe.
▼项目更多图片
客服
消息
收藏
下载
最近


































