查看完整案例


收藏

下载

翻译
Architects:wipe
Area :272 m²
Year :2018
Photographs :Toshiyuki Yano
Structural Design :Komatsu Structural Design
Architect In Charge : Takashi Nabeshima, Kazuyuki Teraoka
Design Team : wipe
City : Suginami City
Country : Japan
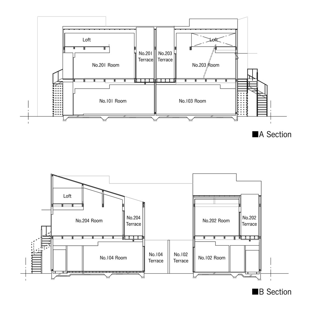
A house opened to the sky - This apartment complex is located in a dense urban area in Tokyo. We have lost our privacy because of the smart phones and SNS that connect everyone anywhere and anytime in the present day. I think we need an architecture that gives us time to slowly communicate with ourselves when we go home after a tired day.
This architecture strengthens the privacy by closing the façade in narrow front roads and densely urban area. Conversely, This architecture has each own private courtyard terrace that open up to the sky in the inside. Residents look up at the sky, and they relax here. This isolated space creates the slow and relaxing time. It is a space to communicate with themselves.
The coexistence of the closed exterior and the open interior gives them the comfortable time and environment to communicate with themselves, and recharge their mind and body. This architecture cures their smartphone and SNS addiction of the present illnesses. And I hope it will be an opportunity to rethink what a truly happy and affluent life is.
▼项目更多图片
客服
消息
收藏
下载
最近































