查看完整案例


收藏

下载

翻译
Architects:Jahnke-Ledant Architects
Area :1500 m²
Year :2018
Photographs :JLA
Manufacturers : Atlas Concorde, Reynaers Aluminium, Flos, Forbo Flooring Systems, pro climaAtlas Concorde
Lead Architects :Peter Jahnke, Bruno Ledant
Structural Engineering :Bureau d'etudes Lemaire
Lighting :2Lite
Lightning : 2Lite
Furniture Design : Cubics
Photographs : JLA
City : Méan
Country : Belgium
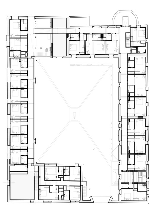
In 1990 the famed golfer and golf course architect, Gary Player, designed a golf course that was built on the grounds of the original ‘chateau ferme’. This chateau, which was constructed between 1745 and 1826, and golf course rests in the bucolic Belgian countryside and is regarded as one of the most beautiful in Belgium with its commanding views and natural setting. The chateau had been only partially occupied for services with more than half left vacant and unused for decades. Under new ownership, the transformation of the facility was completed in 2018 that breathes new life into the building through a reorganization of the entire structure, which includes the incorporation of a new 35-room hotel.
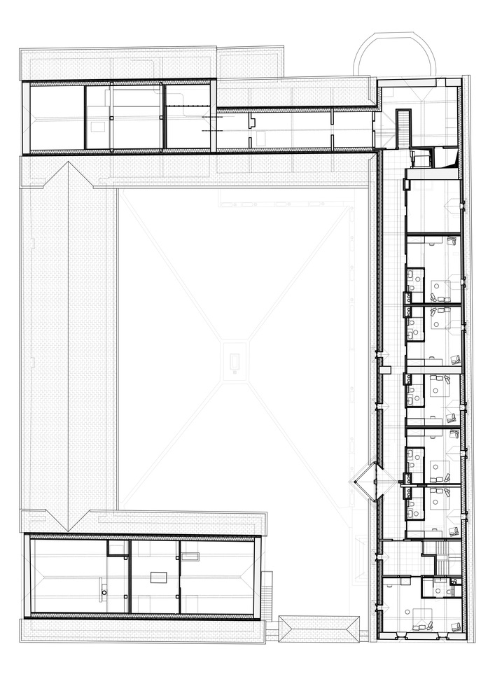
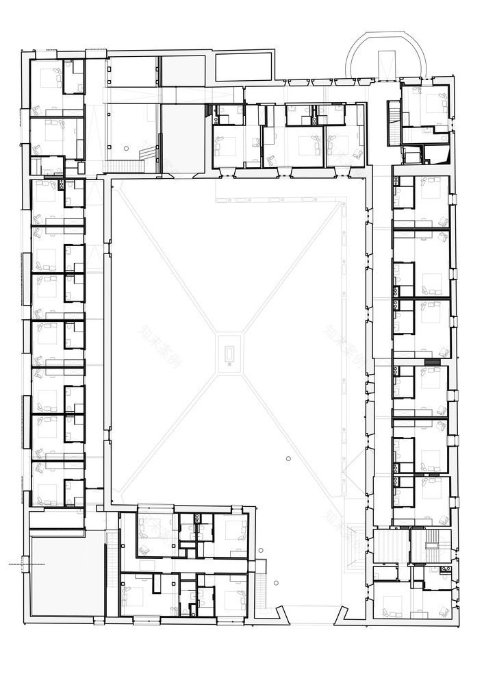
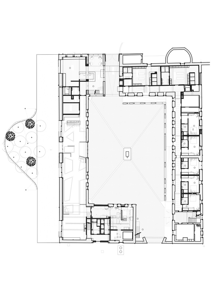
A critical planning decision moved all public functions of the existing clubhouse to the vacant south wing to capitalize on solar exposure and to strengthen the link between activities within the building and the golf course. Reception, pro-shop, restaurant/bar and breakfast area are all now located in the south wing and large openings link this space to an enormous terrace that bends between the 9th and 18th greens. Vaulted spaces were created in the entry and restaurant, celebrating the building’s grand volumes and ancient textures. The guests’ breakfast area is placed in the south-east corner and bathed in morning light. The 35 hotel rooms are carefully laid out over the second floor of the south wing and on 3 floors in the northern structure. An analytical graphic of each golf hole at Five Nations adorns one wall in each of the guest rooms.
For centuries, the south façade remained a monolithic, uninterrupted stone wall. As many large openings were required in this facade, we incorporated a metal claustra, layering façade and windows to tie these openings together, acting as a brise-soleil for rooms with larger openings. The motif of the claustra is directly derived from the stacked stone patterns of the original façade.
▼项目更多图片
客服
消息
收藏
下载
最近





























