知末
知末
创作上传
VIP
收藏下载
登录 | 注册有礼

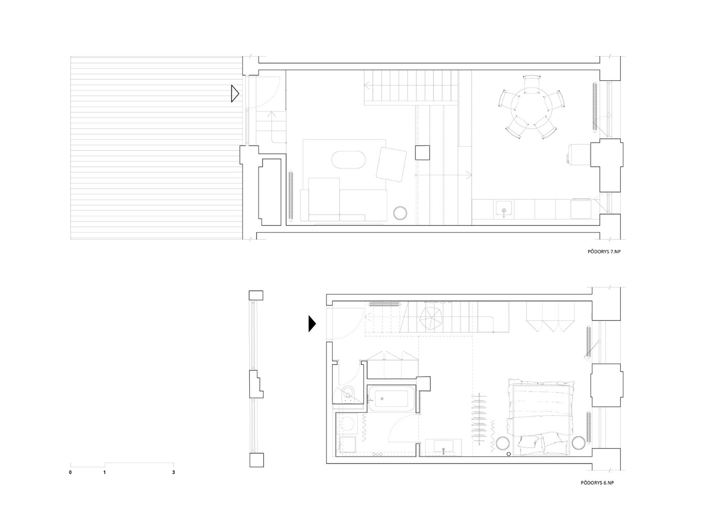
73 平米工业风公寓,极致空间利用

2019/07/05 10:44:30
查看完整案例
微信扫一扫
收藏
下载
翻译
Architects:Juraj Hubinský, Kuklica x Smerek Architekti
Area :73 m²
Year :2018
Photographs :Lousy Auber
Manufacturers :  AutoDesk, Foscarini, HAY, TrimbleAutoDesk
73 平米工业风公寓,极致空间利用-5
▼项目更多图片
73 平米工业风公寓,极致空间利用-7
73 平米工业风公寓,极致空间利用-8
73 平米工业风公寓,极致空间利用-9
73 平米工业风公寓,极致空间利用-10
73 平米工业风公寓,极致空间利用-11
73 平米工业风公寓,极致空间利用-12
73 平米工业风公寓,极致空间利用-13
73 平米工业风公寓,极致空间利用-14
73 平米工业风公寓,极致空间利用-15
73 平米工业风公寓,极致空间利用-16
73 平米工业风公寓,极致空间利用-17
73 平米工业风公寓,极致空间利用-18
73 平米工业风公寓,极致空间利用-19
73 平米工业风公寓,极致空间利用-20
73 平米工业风公寓,极致空间利用-21
73 平米工业风公寓,极致空间利用-22
73 平米工业风公寓,极致空间利用-23
73 平米工业风公寓,极致空间利用-24
73 平米工业风公寓,极致空间利用-25
73 平米工业风公寓,极致空间利用-26
73 平米工业风公寓,极致空间利用-27
73 平米工业风公寓,极致空间利用-28
73 平米工业风公寓,极致空间利用-29
73 平米工业风公寓,极致空间利用-30
73 平米工业风公寓,极致空间利用-31
73 平米工业风公寓,极致空间利用-32
73 平米工业风公寓,极致空间利用-33
73 平米工业风公寓,极致空间利用-34
73 平米工业风公寓,极致空间利用-35
73 平米工业风公寓,极致空间利用-36
73 平米工业风公寓,极致空间利用-37
73 平米工业风公寓,极致空间利用-38
南京喵熊网络科技有限公司 苏ICP备18050492号-4知末 © 2018—2020 . All photos and trademark graphics are copyrighted by their owners.增值电信业务经营许可证(ICP)苏B2-20201444苏公网安备 32011302321234号
客服
消息
收藏
下载
最近