查看完整案例

收藏

下载

翻译
Architects:Atelier WOA, Vincent Lavergne Architecture Urbanisme
Area :6800 m²
Year :2018
Photographs :Arnaud Delente, Julien Hourcade
Manufacturers : AutoDesk, Sto, Sfel, PREFA FranceAutoDesk
Engineering :INCET, CCVH
Architect In Charge : Pierre Maurette
Clients : ADOMA
City : Villiers-sur-Marne
Country : France
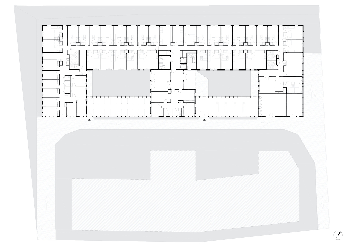
This operation of demolition-rebuilding of the Hautes-Noues social housing project, which will offer living quarters to over 9,650 people in the process of integration, fits into the current dynamic of renovation at work in the municipality of Villiers-sur-Marne. To take into account the future densification of the terrain, the new housing project is located at the back of the lot behind the existing one. Three evenly-spaced avant-corps on the street façade soften the effect that too harsh a frontality would have created.
In the outdoor public spaces surrounding the building as well as the interior spaces that open onto each other, emphasis is placed on bringing residents together. The social housing complex is indeed designed around common areas and private spaces with true interiority. The project also includes a clear and noticeable landscape element: the building’s morphology responds both to the urban outskirts project and provides for the creation of interior gardens which the units open onto.
With 2,400 m3 of wooden structure for only 45 tons of steel, the project currently represents the largest wood construction in France, with a floor surface of 6,836 m2. Using dry construction systems such as wood allows for rapid construction and drastically reduces the production deadline: many elements are prefabricated and ready for on-site installation. The association of traditional building techniques (post and beam systems) with innovative expertise such as the alliance of wood, metal and concrete, contribute to the improvement of building performance.
▼项目更多图片
客服
消息
收藏
下载
最近































































